Get the free Online SIGN Permit Application - Rochester, MN ...
Show details
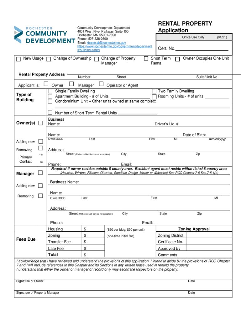
RENTAL PROPERTY ApplicationCommunity Development Department 4001 West River Parkway, Suite 100 Rochester, MN 559017090 Phone: 5073282600 Email: rbsrental@rochestermn.gov https://www.rochestermn.gov/government/department
We are not affiliated with any brand or entity on this form
Get, Create, Make and Sign online sign permit application
Edit your online sign permit application form online
Type text, complete fillable fields, insert images, highlight or blackout data for discretion, add comments, and more.
Add your legally-binding signature
Draw or type your signature, upload a signature image, or capture it with your digital camera.
Share your form instantly
Email, fax, or share your online sign permit application form via URL. You can also download, print, or export forms to your preferred cloud storage service.
Editing online sign permit application online
To use our professional PDF editor, follow these steps:
1
Log in to account. Click Start Free Trial and register a profile if you don't have one yet.
2
Upload a document. Select Add New on your Dashboard and transfer a file into the system in one of the following ways: by uploading it from your device or importing from the cloud, web, or internal mail. Then, click Start editing.
3
Edit online sign permit application. Rearrange and rotate pages, add new and changed texts, add new objects, and use other useful tools. When you're done, click Done. You can use the Documents tab to merge, split, lock, or unlock your files.
4
Save your file. Select it from your list of records. Then, move your cursor to the right toolbar and choose one of the exporting options. You can save it in multiple formats, download it as a PDF, send it by email, or store it in the cloud, among other things.
pdfFiller makes dealing with documents a breeze. Create an account to find out!
Uncompromising security for your PDF editing and eSignature needs
Your private information is safe with pdfFiller. We employ end-to-end encryption, secure cloud storage, and advanced access control to protect your documents and maintain regulatory compliance.
How to fill out online sign permit application
How to fill out online sign permit application
01
Visit the official website of the sign permit application.
02
Create an account or login if you already have one.
03
Navigate to the 'Permits' section and select 'Sign Permit Application'.
04
Fill out the required information in the online form, such as your name, address, contact details, and sign specifications.
05
Upload any necessary documents or drawings related to the sign permit application.
06
Review the information you provided and make any necessary edits or corrections.
07
Submit the online sign permit application.
08
Pay any applicable fees for the permit application.
09
Wait for the application to be processed. You may receive updates or notifications via email or through the online portal.
10
Once approved, you will be issued the sign permit, which you can download or collect from a designated location.
11
Follow any additional instructions provided, such as installing the sign within a certain timeframe or obtaining inspections.
12
Keep a copy of the sign permit for your records.
Who needs online sign permit application?
01
Anyone who intends to display a sign or advertisement in a specific area requires an online sign permit application. This applies to individuals, businesses, organizations, and government agencies who wish to install signs for various purposes, including promotions, directions, identification, or information. It is important to consult with local authorities or the sign permit application website to determine the specific requirements and regulations for sign permits in your area.
Fill
form
: Try Risk Free
For pdfFiller’s FAQs
Below is a list of the most common customer questions. If you can’t find an answer to your question, please don’t hesitate to reach out to us.
How can I manage my online sign permit application directly from Gmail?
In your inbox, you may use pdfFiller's add-on for Gmail to generate, modify, fill out, and eSign your online sign permit application and any other papers you receive, all without leaving the program. Install pdfFiller for Gmail from the Google Workspace Marketplace by visiting this link. Take away the need for time-consuming procedures and handle your papers and eSignatures with ease.
How do I make changes in online sign permit application?
pdfFiller allows you to edit not only the content of your files, but also the quantity and sequence of the pages. Upload your online sign permit application to the editor and make adjustments in a matter of seconds. Text in PDFs may be blacked out, typed in, and erased using the editor. You may also include photos, sticky notes, and text boxes, among other things.
How do I complete online sign permit application on an Android device?
On an Android device, use the pdfFiller mobile app to finish your online sign permit application. The program allows you to execute all necessary document management operations, such as adding, editing, and removing text, signing, annotating, and more. You only need a smartphone and an internet connection.
What is online sign permit application?
Online sign permit application is a digital form that allows individuals or businesses to apply for a permit to install a sign.
Who is required to file online sign permit application?
Any individual or business looking to install a sign may be required to file an online sign permit application.
How to fill out online sign permit application?
To fill out the online sign permit application, applicants must provide information about the sign, its location, and any necessary supporting documents.
What is the purpose of online sign permit application?
The purpose of the online sign permit application is to ensure that signs are installed safely and in compliance with local regulations.
What information must be reported on online sign permit application?
Information such as the type of sign, dimensions, location, and installation method must be reported on the online sign permit application.
Fill out your online sign permit application online with pdfFiller!
pdfFiller is an end-to-end solution for managing, creating, and editing documents and forms in the cloud. Save time and hassle by preparing your tax forms online.
Online Sign Permit Application is not the form you're looking for?Search for another form here.
Relevant keywords
Related Forms
If you believe that this page should be taken down, please follow our DMCA take down process
here
.
This form may include fields for payment information. Data entered in these fields is not covered by PCI DSS compliance.