Get the free www.codot.govprojectsarchived-project-sitesCOLORADO DEPARTMENT OF TRANSPORTATION GOO...
Show details
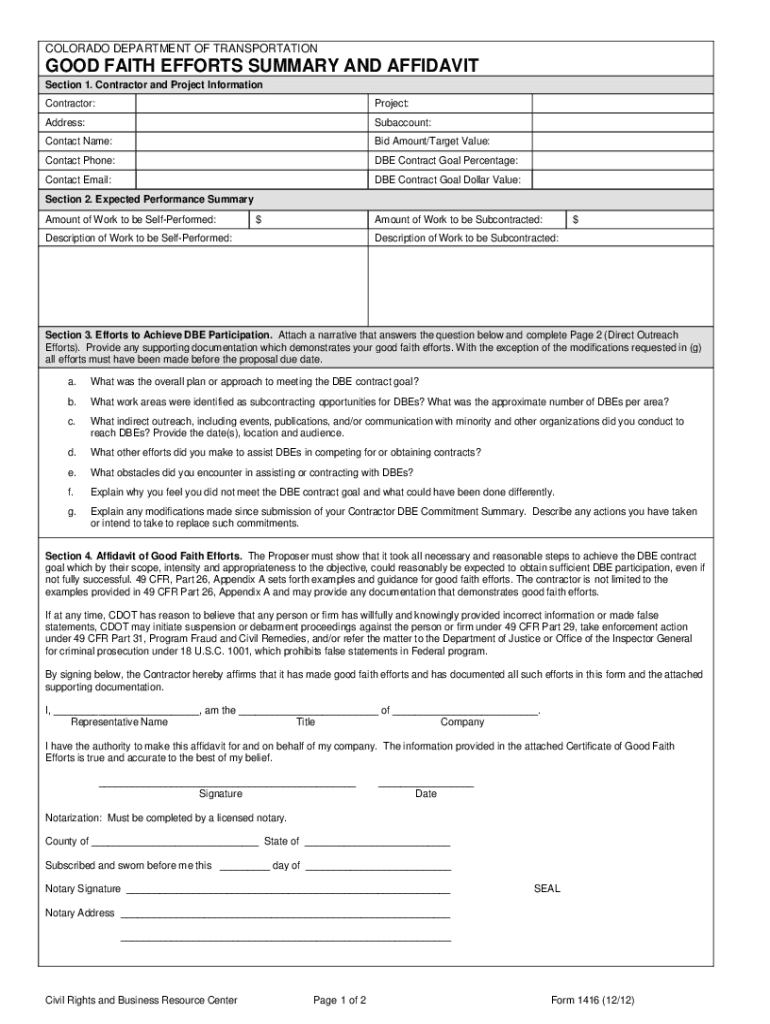
COLORADO DEPARTMENT OF TRANSPORTATIONGOOD FAITH EFFORTS SUMMARY AND AFFIDAVIT Section 1. Contractor and Project Information Contractor:Project:Address:Subaccount:Contact Name:Bid Amount/Target Value:Contact
We are not affiliated with any brand or entity on this form
Get, Create, Make and Sign wwwcodotgovprojectsarchived-project-sitescolorado department of transportation
Edit your wwwcodotgovprojectsarchived-project-sitescolorado department of transportation form online
Type text, complete fillable fields, insert images, highlight or blackout data for discretion, add comments, and more.
Add your legally-binding signature
Draw or type your signature, upload a signature image, or capture it with your digital camera.
Share your form instantly
Email, fax, or share your wwwcodotgovprojectsarchived-project-sitescolorado department of transportation form via URL. You can also download, print, or export forms to your preferred cloud storage service.
How to edit wwwcodotgovprojectsarchived-project-sitescolorado department of transportation online
Follow the guidelines below to benefit from the PDF editor's expertise:
1
Log in to your account. Click on Start Free Trial and sign up a profile if you don't have one.
2
Prepare a file. Use the Add New button to start a new project. Then, using your device, upload your file to the system by importing it from internal mail, the cloud, or adding its URL.
3
Edit wwwcodotgovprojectsarchived-project-sitescolorado department of transportation. Rearrange and rotate pages, insert new and alter existing texts, add new objects, and take advantage of other helpful tools. Click Done to apply changes and return to your Dashboard. Go to the Documents tab to access merging, splitting, locking, or unlocking functions.
4
Save your file. Choose it from the list of records. Then, shift the pointer to the right toolbar and select one of the several exporting methods: save it in multiple formats, download it as a PDF, email it, or save it to the cloud.
pdfFiller makes dealing with documents a breeze. Create an account to find out!
Uncompromising security for your PDF editing and eSignature needs
Your private information is safe with pdfFiller. We employ end-to-end encryption, secure cloud storage, and advanced access control to protect your documents and maintain regulatory compliance.
How to fill out wwwcodotgovprojectsarchived-project-sitescolorado department of transportation
How to fill out wwwcodotgovprojectsarchived-project-sitescolorado department of transportation
01
Go to the website www.codot.gov/projects/archived-project-sites/colorado-department-of-transportation
02
Look for the section or tab that says 'Filling Out Forms' or something similar
03
Click on that section to access the instructions on how to fill out the forms
04
Read the instructions carefully and gather all the necessary information and documents
05
Start filling out the forms by entering the required information accurately
06
Double-check your entries to ensure accuracy
07
Save or print a copy of the filled-out forms for your records
08
Submit the completed forms as per the instructions provided
Who needs wwwcodotgovprojectsarchived-project-sitescolorado department of transportation?
01
The Colorado Department of Transportation (CDOT) is needed by various stakeholders including:
02
- Residents of Colorado who rely on the transportation infrastructure
03
- Commuters who use roads, highways, and public transportation systems
04
- Construction and engineering companies involved in transportation projects
05
- Government agencies and policymakers responsible for transportation planning and development
06
- Road safety organizations and advocacy groups
07
- Other entities involved in the transportation industry such as logistics companies and freight carriers.
Fill
form
: Try Risk Free
For pdfFiller’s FAQs
Below is a list of the most common customer questions. If you can’t find an answer to your question, please don’t hesitate to reach out to us.
Can I edit wwwcodotgovprojectsarchived-project-sitescolorado department of transportation on an iOS device?
Use the pdfFiller mobile app to create, edit, and share wwwcodotgovprojectsarchived-project-sitescolorado department of transportation from your iOS device. Install it from the Apple Store in seconds. You can benefit from a free trial and choose a subscription that suits your needs.
How do I complete wwwcodotgovprojectsarchived-project-sitescolorado department of transportation on an iOS device?
pdfFiller has an iOS app that lets you fill out documents on your phone. A subscription to the service means you can make an account or log in to one you already have. As soon as the registration process is done, upload your wwwcodotgovprojectsarchived-project-sitescolorado department of transportation. You can now use pdfFiller's more advanced features, like adding fillable fields and eSigning documents, as well as accessing them from any device, no matter where you are in the world.
Can I edit wwwcodotgovprojectsarchived-project-sitescolorado department of transportation on an Android device?
The pdfFiller app for Android allows you to edit PDF files like wwwcodotgovprojectsarchived-project-sitescolorado department of transportation. Mobile document editing, signing, and sending. Install the app to ease document management anywhere.
What is www.codot.gov/projects/archived-project-sites/colorado department of transportation?
www.codot.gov/projects/archived-project-sites/colorado department of transportation is a website for archived project sites related to the Colorado Department of Transportation.
Who is required to file www.codot.gov/projects/archived-project-sites/colorado department of transportation?
Contractors, consultants, and vendors who have worked on projects with the Colorado Department of Transportation may be required to file information on the archived project sites.
How to fill out www.codot.gov/projects/archived-project-sites/colorado department of transportation?
To fill out www.codot.gov/projects/archived-project-sites/colorado department of transportation, users may need to provide project details, completion reports, and other relevant information as required by the Colorado Department of Transportation.
What is the purpose of www.codot.gov/projects/archived-project-sites/colorado department of transportation?
The purpose of www.codot.gov/projects/archived-project-sites/colorado department of transportation is to maintain a record of past projects, information, and documentation for reference and compliance purposes.
What information must be reported on www.codot.gov/projects/archived-project-sites/colorado department of transportation?
Information such as project timelines, budgets, completion reports, and any other relevant data related to projects with the Colorado Department of Transportation may need to be reported on the archived project sites.
Fill out your wwwcodotgovprojectsarchived-project-sitescolorado department of transportation online with pdfFiller!
pdfFiller is an end-to-end solution for managing, creating, and editing documents and forms in the cloud. Save time and hassle by preparing your tax forms online.
Wwwcodotgovprojectsarchived-Project-Sitescolorado Department Of Transportation is not the form you're looking for?Search for another form here.
Relevant keywords
Related Forms
If you believe that this page should be taken down, please follow our DMCA take down process
here
.
This form may include fields for payment information. Data entered in these fields is not covered by PCI DSS compliance.