Get the free Including suburb or 5 Whelan Street, APOLLO BAY VIC 3233
Show details
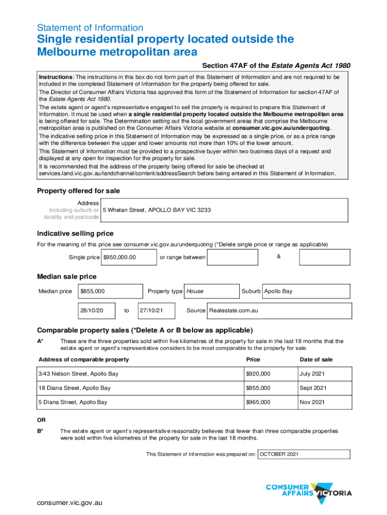
Statement of InformationSingle residential property located outside the Melbourne metropolitan area Section 47AF of the Estate Agents Act 1980 Instructions: The instructions in this box do not form
We are not affiliated with any brand or entity on this form
Get, Create, Make and Sign including suburb or 5
Edit your including suburb or 5 form online
Type text, complete fillable fields, insert images, highlight or blackout data for discretion, add comments, and more.
Add your legally-binding signature
Draw or type your signature, upload a signature image, or capture it with your digital camera.
Share your form instantly
Email, fax, or share your including suburb or 5 form via URL. You can also download, print, or export forms to your preferred cloud storage service.
Editing including suburb or 5 online
Use the instructions below to start using our professional PDF editor:
1
Log in to account. Start Free Trial and sign up a profile if you don't have one.
2
Upload a document. Select Add New on your Dashboard and transfer a file into the system in one of the following ways: by uploading it from your device or importing from the cloud, web, or internal mail. Then, click Start editing.
3
Edit including suburb or 5. Add and replace text, insert new objects, rearrange pages, add watermarks and page numbers, and more. Click Done when you are finished editing and go to the Documents tab to merge, split, lock or unlock the file.
4
Save your file. Select it from your list of records. Then, move your cursor to the right toolbar and choose one of the exporting options. You can save it in multiple formats, download it as a PDF, send it by email, or store it in the cloud, among other things.
pdfFiller makes working with documents easier than you could ever imagine. Try it for yourself by creating an account!
Uncompromising security for your PDF editing and eSignature needs
Your private information is safe with pdfFiller. We employ end-to-end encryption, secure cloud storage, and advanced access control to protect your documents and maintain regulatory compliance.
How to fill out including suburb or 5
How to fill out including suburb or 5
01
To fill out including suburb or 5, follow these steps:
02
Start by locating the section that requires the input of suburb or 5.
03
Enter the suburb or the 5-digit zip code in the designated field.
04
Double-check the accuracy of the entered information to ensure it is correct.
05
If there are any other required fields related to suburb or 5, fill them out accordingly.
06
Finally, review the entire form for any mistakes or missing information before submitting it.
Who needs including suburb or 5?
01
Anyone who is required to provide their address or location details may need to include suburb or 5.
02
This could be individuals filling out forms, applications, or registrations for various purposes such as:
03
- Applying for a job
04
- Registering for a service or subscription
05
- Filing official documents
06
- Applying for licenses or permits
07
Including suburb or 5 helps ensure accurate and specific location information is provided.
Fill
form
: Try Risk Free
For pdfFiller’s FAQs
Below is a list of the most common customer questions. If you can’t find an answer to your question, please don’t hesitate to reach out to us.
How can I edit including suburb or 5 from Google Drive?
It is possible to significantly enhance your document management and form preparation by combining pdfFiller with Google Docs. This will allow you to generate papers, amend them, and sign them straight from your Google Drive. Use the add-on to convert your including suburb or 5 into a dynamic fillable form that can be managed and signed using any internet-connected device.
How can I send including suburb or 5 to be eSigned by others?
Once your including suburb or 5 is ready, you can securely share it with recipients and collect eSignatures in a few clicks with pdfFiller. You can send a PDF by email, text message, fax, USPS mail, or notarize it online - right from your account. Create an account now and try it yourself.
Can I edit including suburb or 5 on an iOS device?
Yes, you can. With the pdfFiller mobile app, you can instantly edit, share, and sign including suburb or 5 on your iOS device. Get it at the Apple Store and install it in seconds. The application is free, but you will have to create an account to purchase a subscription or activate a free trial.
What is including suburb or 5?
Including suburb or 5 refers to the process of adding a suburb or locality to a given area or region.
Who is required to file including suburb or 5?
Filing including suburb or 5 may be required by individuals, businesses, or organizations located in a specific area.
How to fill out including suburb or 5?
To fill out including suburb or 5, one must provide accurate information about the suburb or locality being added, along with any relevant details.
What is the purpose of including suburb or 5?
The purpose of including suburb or 5 is to ensure that all relevant information about a specific area is accurately documented and maintained.
What information must be reported on including suburb or 5?
Information such as the name of the suburb or locality, its geographic location, population statistics, and any unique characteristics may need to be reported on including suburb or 5.
Fill out your including suburb or 5 online with pdfFiller!
pdfFiller is an end-to-end solution for managing, creating, and editing documents and forms in the cloud. Save time and hassle by preparing your tax forms online.
Including Suburb Or 5 is not the form you're looking for?Search for another form here.
Relevant keywords
Related Forms
If you believe that this page should be taken down, please follow our DMCA take down process
here
.
This form may include fields for payment information. Data entered in these fields is not covered by PCI DSS compliance.