
Get the free Count.y of Riverside Peter Aldana Assessor-County Clerk ...
Show details
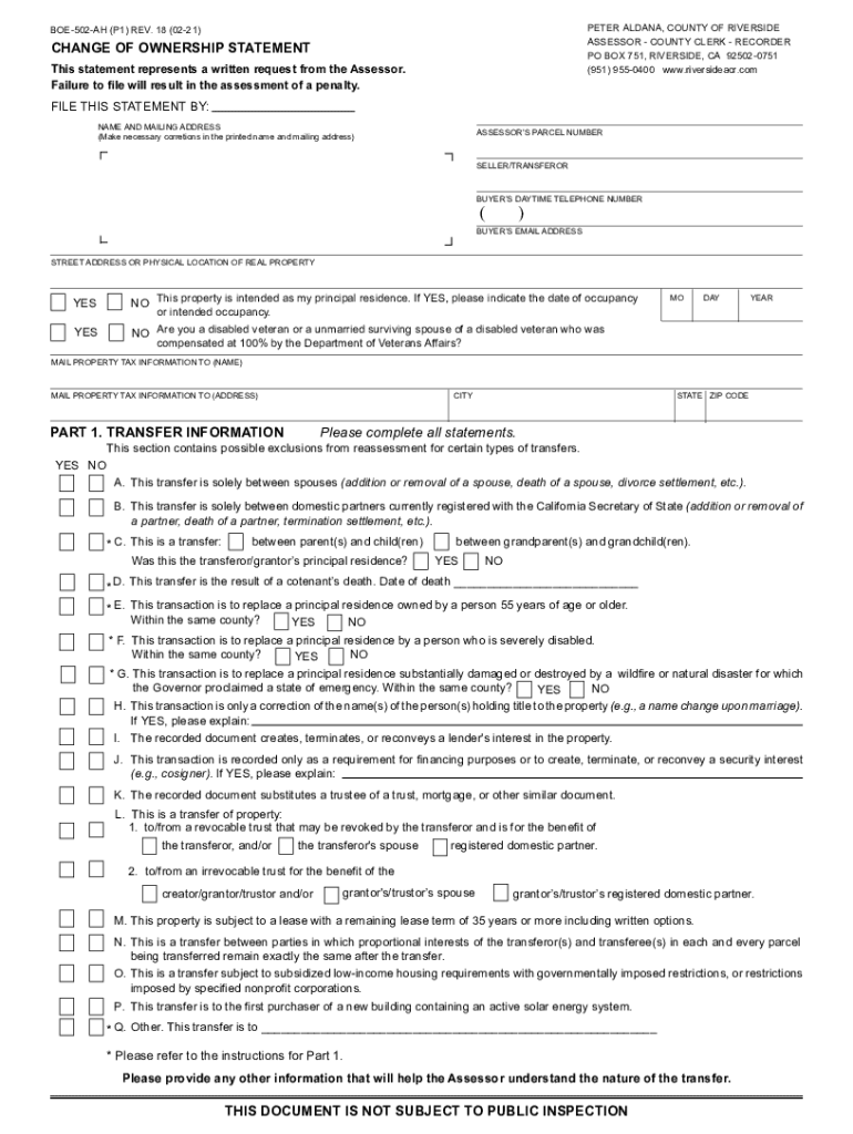
PETER ADANA, COUNTY OF RIVERSIDE ASSESSOR COUNTY CLERK RECORDER PO BOX 751, RIVERSIDE, CA 925020751 (951) 9550400 www.riversideacr.comBOE502AH (P1) REV. 18 (0221)CHANGE OF OWNERSHIP STATEMENT This
We are not affiliated with any brand or entity on this form
Get, Create, Make and Sign county of riverside peter

Edit your county of riverside peter form online
Type text, complete fillable fields, insert images, highlight or blackout data for discretion, add comments, and more.

Add your legally-binding signature
Draw or type your signature, upload a signature image, or capture it with your digital camera.

Share your form instantly
Email, fax, or share your county of riverside peter form via URL. You can also download, print, or export forms to your preferred cloud storage service.
Editing county of riverside peter online
To use the professional PDF editor, follow these steps below:
1
Log in. Click Start Free Trial and create a profile if necessary.
2
Upload a document. Select Add New on your Dashboard and transfer a file into the system in one of the following ways: by uploading it from your device or importing from the cloud, web, or internal mail. Then, click Start editing.
3
Edit county of riverside peter. Add and replace text, insert new objects, rearrange pages, add watermarks and page numbers, and more. Click Done when you are finished editing and go to the Documents tab to merge, split, lock or unlock the file.
4
Get your file. Select your file from the documents list and pick your export method. You may save it as a PDF, email it, or upload it to the cloud.
It's easier to work with documents with pdfFiller than you could have believed. Sign up for a free account to view.
Uncompromising security for your PDF editing and eSignature needs
Your private information is safe with pdfFiller. We employ end-to-end encryption, secure cloud storage, and advanced access control to protect your documents and maintain regulatory compliance.
How to fill out county of riverside peter

How to fill out county of riverside peter
01
To fill out the County of Riverside Peter form, follow these steps:
02
Obtain a copy of the form. You can usually find it on the official website of the County of Riverside or at their local government offices.
03
Read the instructions carefully to understand the information you need to provide and any specific requirements or guidelines.
04
Start by entering your personal details, such as your full name, address, contact information, and social security number if requested.
05
Next, fill in the specific details relating to Peter. This may include his full name, date of birth, relationship to you, and any other relevant information.
06
Provide any supporting documents or evidence that may be required along with the form, such as identification or proof of relationship.
07
Review the completed form to ensure all the information is accurate and complete.
08
Sign and date the form where indicated.
09
Make copies of the completed form and any supporting documents for your records.
10
Submit the form and any required documents to the designated office or address. Check the instructions for information on how to submit the form, whether in person, by mail, or electronically.
11
Wait for confirmation or further instructions from the County of Riverside regarding the processing of your Peter form.
Who needs county of riverside peter?
01
Anyone who requires specific services or benefits provided by the County of Riverside may need the assistance of Peter. This could include individuals seeking assistance with social services, legal matters, public health, housing, employment, or other areas where the County of Riverside has jurisdiction.
02
Additionally, Peter may be needed by individuals or organizations looking to access resources, information, or support that is provided by the County of Riverside.
03
It is important to consult the County of Riverside's official resources or contact their offices directly to determine the exact requirements and eligibility criteria for accessing Peter's services.
Fill
form
: Try Risk Free
For pdfFiller’s FAQs
Below is a list of the most common customer questions. If you can’t find an answer to your question, please don’t hesitate to reach out to us.
How do I modify my county of riverside peter in Gmail?
You may use pdfFiller's Gmail add-on to change, fill out, and eSign your county of riverside peter as well as other documents directly in your inbox by using the pdfFiller add-on for Gmail. pdfFiller for Gmail may be found on the Google Workspace Marketplace. Use the time you would have spent dealing with your papers and eSignatures for more vital tasks instead.
How can I modify county of riverside peter without leaving Google Drive?
People who need to keep track of documents and fill out forms quickly can connect PDF Filler to their Google Docs account. This means that they can make, edit, and sign documents right from their Google Drive. Make your county of riverside peter into a fillable form that you can manage and sign from any internet-connected device with this add-on.
Where do I find county of riverside peter?
The premium subscription for pdfFiller provides you with access to an extensive library of fillable forms (over 25M fillable templates) that you can download, fill out, print, and sign. You won’t have any trouble finding state-specific county of riverside peter and other forms in the library. Find the template you need and customize it using advanced editing functionalities.
What is county of riverside peter?
County of Riverside Peter is a legal document that must be filed by certain individuals in Riverside County.
Who is required to file county of riverside peter?
Individuals who meet certain criteria set forth by Riverside County are required to file the County of Riverside Peter.
How to fill out county of riverside peter?
County of Riverside Peter can be filled out online or submitted in person at the designated government office.
What is the purpose of county of riverside peter?
The purpose of County of Riverside Peter is to collect specific information from individuals for legal and administrative purposes in Riverside County.
What information must be reported on county of riverside peter?
County of Riverside Peter typically requires personal information, income details, and other relevant data depending on the individual's situation.
Fill out your county of riverside peter online with pdfFiller!
pdfFiller is an end-to-end solution for managing, creating, and editing documents and forms in the cloud. Save time and hassle by preparing your tax forms online.

County Of Riverside Peter is not the form you're looking for?Search for another form here.
Relevant keywords
Related Forms
If you believe that this page should be taken down, please follow our DMCA take down process
here
.
This form may include fields for payment information. Data entered in these fields is not covered by PCI DSS compliance.