Get the free FORMS TO BE RETURNED TO: policy.consultationiow.gov.uk ...
Show details
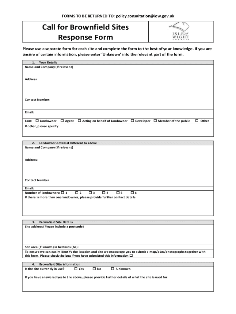
FORMS TO BE RETURNED TO: policy.consultation@iow.gov.ukCall for Brownfield Sites Response Form Please use a separate form for each site and complete the form to the best of your knowledge. If you
We are not affiliated with any brand or entity on this form
Get, Create, Make and Sign forms to be returned
Edit your forms to be returned form online
Type text, complete fillable fields, insert images, highlight or blackout data for discretion, add comments, and more.
Add your legally-binding signature
Draw or type your signature, upload a signature image, or capture it with your digital camera.
Share your form instantly
Email, fax, or share your forms to be returned form via URL. You can also download, print, or export forms to your preferred cloud storage service.
Editing forms to be returned online
In order to make advantage of the professional PDF editor, follow these steps:
1
Set up an account. If you are a new user, click Start Free Trial and establish a profile.
2
Prepare a file. Use the Add New button to start a new project. Then, using your device, upload your file to the system by importing it from internal mail, the cloud, or adding its URL.
3
Edit forms to be returned. Rearrange and rotate pages, add and edit text, and use additional tools. To save changes and return to your Dashboard, click Done. The Documents tab allows you to merge, divide, lock, or unlock files.
4
Save your file. Select it from your records list. Then, click the right toolbar and select one of the various exporting options: save in numerous formats, download as PDF, email, or cloud.
pdfFiller makes working with documents easier than you could ever imagine. Create an account to find out for yourself how it works!
Uncompromising security for your PDF editing and eSignature needs
Your private information is safe with pdfFiller. We employ end-to-end encryption, secure cloud storage, and advanced access control to protect your documents and maintain regulatory compliance.
How to fill out forms to be returned
How to fill out forms to be returned
01
Begin by reading the instructions provided with the form to understand its requirements.
02
Gather all the necessary information and documents that you will need to fill out the form.
03
Start by filling out your personal details such as name, address, date of birth, etc. Make sure to provide accurate and up-to-date information.
04
Follow the form's instructions for each section or field, providing the requested information or marking the appropriate checkboxes.
05
Double-check your entries to ensure that they are correct and complete.
06
If there are any supporting documents required, make sure to attach them securely to the form.
07
Review the completed form once again to ensure that nothing is missing or incorrect.
08
Sign and date the form where necessary.
09
Make a copy of the filled-out form for your records before returning it.
10
Send the completed form to the designated recipient by mail, email, or hand-delivery as instructed.
Who needs forms to be returned?
01
Various individuals and organizations may need forms to be returned, depending on the specific context. Some examples include:
02
- Individuals applying for government benefits or services
03
- Students applying for admission to educational institutions
04
- Job seekers submitting job applications
05
- Taxpayers filing their tax returns
06
- Patients providing medical history or consent forms
07
- Participants registering for events or programs
08
- Customers completing order or service request forms
09
- Employees filling out employment-related forms
10
- Legal entities submitting licensing or registration forms
11
- Survey respondents providing feedback or data
Fill
form
: Try Risk Free
For pdfFiller’s FAQs
Below is a list of the most common customer questions. If you can’t find an answer to your question, please don’t hesitate to reach out to us.
How can I modify forms to be returned without leaving Google Drive?
By integrating pdfFiller with Google Docs, you can streamline your document workflows and produce fillable forms that can be stored directly in Google Drive. Using the connection, you will be able to create, change, and eSign documents, including forms to be returned, all without having to leave Google Drive. Add pdfFiller's features to Google Drive and you'll be able to handle your documents more effectively from any device with an internet connection.
How do I edit forms to be returned in Chrome?
Get and add pdfFiller Google Chrome Extension to your browser to edit, fill out and eSign your forms to be returned, which you can open in the editor directly from a Google search page in just one click. Execute your fillable documents from any internet-connected device without leaving Chrome.
How do I complete forms to be returned on an iOS device?
Install the pdfFiller app on your iOS device to fill out papers. Create an account or log in if you already have one. After registering, upload your forms to be returned. You may now use pdfFiller's advanced features like adding fillable fields and eSigning documents from any device, anywhere.
What is forms to be returned?
Forms to be returned refer to specific documents or tax forms that need to be submitted to the relevant authorities, usually for reporting income, expenses, or other financial information.
Who is required to file forms to be returned?
Individuals, businesses, or organizations that meet certain criteria established by tax authorities, such as earning a specific level of income or engaging in particular transactions, are required to file these forms.
How to fill out forms to be returned?
To fill out forms to be returned, one should obtain the correct form, carefully read the instructions provided, gather the necessary information, and fill in the required fields accurately before submitting it to the relevant authority.
What is the purpose of forms to be returned?
The purpose of forms to be returned is to report financial information to the tax authorities, ensuring compliance with tax laws and to determine tax liabilities or eligibility for certain benefits.
What information must be reported on forms to be returned?
Common information that must be reported includes income earned, expenses incurred, personal identification details, and any deductions or credits claimed.
Fill out your forms to be returned online with pdfFiller!
pdfFiller is an end-to-end solution for managing, creating, and editing documents and forms in the cloud. Save time and hassle by preparing your tax forms online.
Forms To Be Returned is not the form you're looking for?Search for another form here.
Relevant keywords
Related Forms
If you believe that this page should be taken down, please follow our DMCA take down process
here
.
This form may include fields for payment information. Data entered in these fields is not covered by PCI DSS compliance.