
Get the free Service Company Wet Chemical - Fire Protection Certification - fireprotection asttbc
Show details
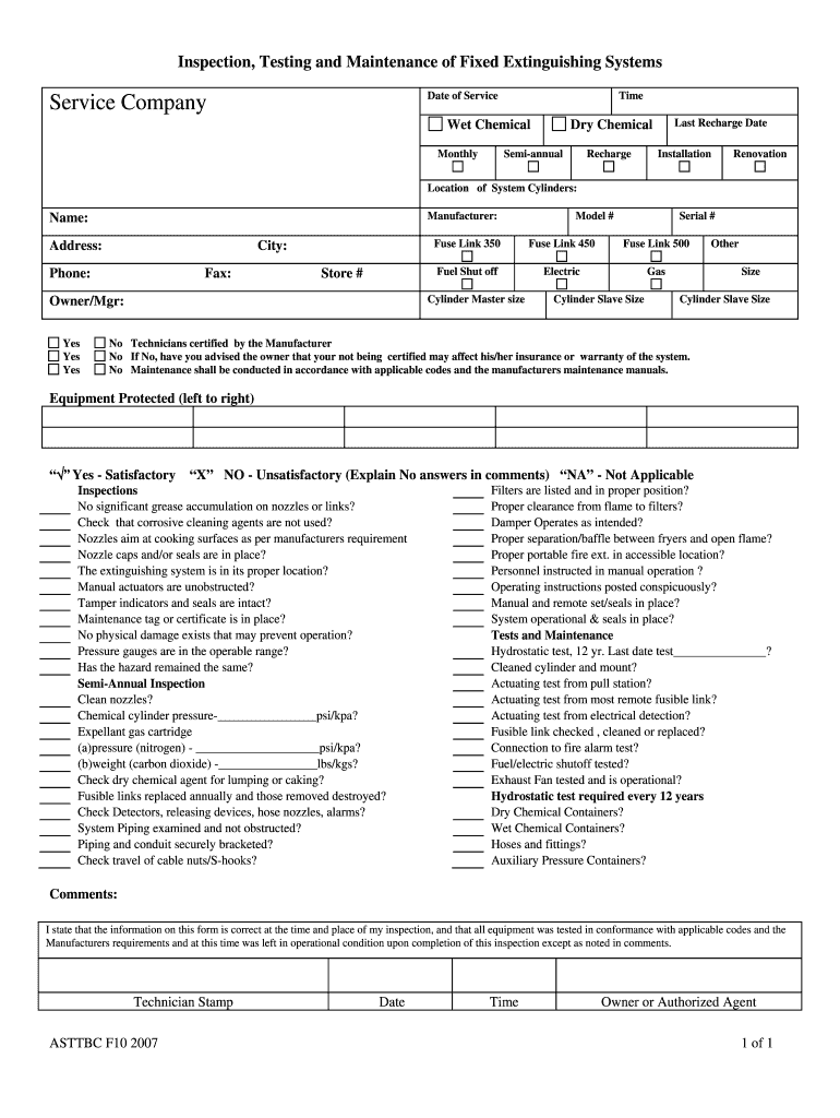
Inspection, Testing and Maintenance of Fixed Extinguishing Systems Date of Service Company Time Wet Chemical Monthly Last Recharge Date Dry Chemical Semiannual Recharge Installation Renovation Location
We are not affiliated with any brand or entity on this form
Get, Create, Make and Sign service company wet chemical

Edit your service company wet chemical form online
Type text, complete fillable fields, insert images, highlight or blackout data for discretion, add comments, and more.

Add your legally-binding signature
Draw or type your signature, upload a signature image, or capture it with your digital camera.

Share your form instantly
Email, fax, or share your service company wet chemical form via URL. You can also download, print, or export forms to your preferred cloud storage service.
Editing service company wet chemical online
To use our professional PDF editor, follow these steps:
1
Log in. Click Start Free Trial and create a profile if necessary.
2
Simply add a document. Select Add New from your Dashboard and import a file into the system by uploading it from your device or importing it via the cloud, online, or internal mail. Then click Begin editing.
3
Edit service company wet chemical. Rearrange and rotate pages, add and edit text, and use additional tools. To save changes and return to your Dashboard, click Done. The Documents tab allows you to merge, divide, lock, or unlock files.
4
Save your file. Choose it from the list of records. Then, shift the pointer to the right toolbar and select one of the several exporting methods: save it in multiple formats, download it as a PDF, email it, or save it to the cloud.
pdfFiller makes working with documents easier than you could ever imagine. Register for an account and see for yourself!
Uncompromising security for your PDF editing and eSignature needs
Your private information is safe with pdfFiller. We employ end-to-end encryption, secure cloud storage, and advanced access control to protect your documents and maintain regulatory compliance.
How to fill out service company wet chemical

How to fill out service company wet chemical:
01
Ensure you have the necessary protective gear, including gloves and goggles.
02
Carefully read and understand the instructions provided by the manufacturer of the wet chemical.
03
Dilute the wet chemical according to the recommended ratio with water or another specified solvent.
04
Use a calibrated measuring device to accurately measure the appropriate amount of wet chemical.
05
Slowly and carefully pour the wet chemical into the designated container, taking care not to spill or splash.
06
Securely seal the container to prevent any leakage or contamination.
07
Clearly label the container with the name of the wet chemical, the date it was filled, and any other relevant information.
08
Store the filled container in a cool, dry, and well-ventilated area, away from sources of heat or ignition.
09
Keep a record of when the wet chemical was filled and any other necessary documentation for future reference or inspection.
Who needs service company wet chemical:
01
Restaurants and food establishments that require extinguishing systems for commercial kitchens.
02
Industrial facilities that use wet chemical systems to suppress fires involving flammable liquids or materials.
03
Maintenance and service companies that specialize in installing, inspecting, and maintaining fire suppression systems.
Fill
form
: Try Risk Free
For pdfFiller’s FAQs
Below is a list of the most common customer questions. If you can’t find an answer to your question, please don’t hesitate to reach out to us.
How can I get service company wet chemical?
With pdfFiller, an all-in-one online tool for professional document management, it's easy to fill out documents. Over 25 million fillable forms are available on our website, and you can find the service company wet chemical in a matter of seconds. Open it right away and start making it your own with help from advanced editing tools.
Can I create an electronic signature for the service company wet chemical in Chrome?
As a PDF editor and form builder, pdfFiller has a lot of features. It also has a powerful e-signature tool that you can add to your Chrome browser. With our extension, you can type, draw, or take a picture of your signature with your webcam to make your legally-binding eSignature. Choose how you want to sign your service company wet chemical and you'll be done in minutes.
How do I edit service company wet chemical on an iOS device?
Use the pdfFiller mobile app to create, edit, and share service company wet chemical from your iOS device. Install it from the Apple Store in seconds. You can benefit from a free trial and choose a subscription that suits your needs.
What is service company wet chemical?
Service company wet chemical refers to a company that specializes in providing wet chemical services, such as kitchen hood cleaning or fire suppression system maintenance.
Who is required to file service company wet chemical?
Service companies that offer wet chemical services are required to file service company wet chemical.
How to fill out service company wet chemical?
Service company wet chemical forms can typically be filled out online or submitted through mail, following specific instructions provided by the regulatory authorities.
What is the purpose of service company wet chemical?
The purpose of service company wet chemical is to ensure that companies providing wet chemical services adhere to safety and maintenance regulations.
What information must be reported on service company wet chemical?
Service company wet chemical forms typically require information about the company's services, contact information, certifications, and compliance with safety regulations.
Fill out your service company wet chemical online with pdfFiller!
pdfFiller is an end-to-end solution for managing, creating, and editing documents and forms in the cloud. Save time and hassle by preparing your tax forms online.

Service Company Wet Chemical is not the form you're looking for?Search for another form here.
Relevant keywords
Related Forms
If you believe that this page should be taken down, please follow our DMCA take down process
here
.
This form may include fields for payment information. Data entered in these fields is not covered by PCI DSS compliance.