Get the free Building & Safety Department DEMOLITION 110 S 14th St ...
Show details
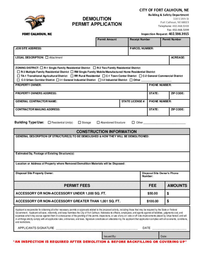
CITY OF FORT CALHOUN, NE Building & Safety DepartmentDEMOLITION PERMIT APPLICATION110 S 14th St Fort Calhoun, NE 68023 Telephone: 402.468.5303 Fax: 402.468.5399Inspection Request: 402.598.3915 Permit
We are not affiliated with any brand or entity on this form
Get, Create, Make and Sign building ampamp safety department
Edit your building ampamp safety department form online
Type text, complete fillable fields, insert images, highlight or blackout data for discretion, add comments, and more.
Add your legally-binding signature
Draw or type your signature, upload a signature image, or capture it with your digital camera.
Share your form instantly
Email, fax, or share your building ampamp safety department form via URL. You can also download, print, or export forms to your preferred cloud storage service.
Editing building ampamp safety department online
Follow the guidelines below to benefit from a competent PDF editor:
1
Register the account. Begin by clicking Start Free Trial and create a profile if you are a new user.
2
Upload a document. Select Add New on your Dashboard and transfer a file into the system in one of the following ways: by uploading it from your device or importing from the cloud, web, or internal mail. Then, click Start editing.
3
Edit building ampamp safety department. Rearrange and rotate pages, add and edit text, and use additional tools. To save changes and return to your Dashboard, click Done. The Documents tab allows you to merge, divide, lock, or unlock files.
4
Get your file. Select your file from the documents list and pick your export method. You may save it as a PDF, email it, or upload it to the cloud.
With pdfFiller, it's always easy to work with documents. Try it!
Uncompromising security for your PDF editing and eSignature needs
Your private information is safe with pdfFiller. We employ end-to-end encryption, secure cloud storage, and advanced access control to protect your documents and maintain regulatory compliance.
How to fill out building ampamp safety department
How to fill out building ampamp safety department
01
Collect all necessary documents and forms required by the building and safety department.
02
Fill out the application form with accurate and detailed information about the building project.
03
Provide any supporting documentation or drawings required for review.
04
Pay the applicable fees for the building permit.
05
Submit the completed application and documents to the building and safety department either in person or online.
06
Await review and approval from the building and safety department.
07
If any changes or additional information are requested, provide them promptly.
08
Once approved, obtain the building permit and adhere to any further instructions or inspections required by the department.
09
Throughout the construction process, maintain communication with the building and safety department as needed.
10
Upon completion of the project, schedule a final inspection with the department to ensure compliance with regulations.
Who needs building ampamp safety department?
01
Anyone involved in a building project must interact with the building and safety department.
02
This includes architects, engineers, contractors, developers, homeowners, or any individuals or organizations responsible for constructing or renovating a building.
03
The building and safety department ensures that construction projects adhere to building codes, safety regulations, and zoning laws to protect the well-being of the community.
04
Therefore, those who need to fill out building and safety department forms and comply with their guidelines are essential stakeholders in construction projects.
Fill
form
: Try Risk Free
For pdfFiller’s FAQs
Below is a list of the most common customer questions. If you can’t find an answer to your question, please don’t hesitate to reach out to us.
How can I modify building ampamp safety department without leaving Google Drive?
People who need to keep track of documents and fill out forms quickly can connect PDF Filler to their Google Docs account. This means that they can make, edit, and sign documents right from their Google Drive. Make your building ampamp safety department into a fillable form that you can manage and sign from any internet-connected device with this add-on.
How can I fill out building ampamp safety department on an iOS device?
Install the pdfFiller app on your iOS device to fill out papers. Create an account or log in if you already have one. After registering, upload your building ampamp safety department. You may now use pdfFiller's advanced features like adding fillable fields and eSigning documents from any device, anywhere.
How do I fill out building ampamp safety department on an Android device?
On Android, use the pdfFiller mobile app to finish your building ampamp safety department. Adding, editing, deleting text, signing, annotating, and more are all available with the app. All you need is a smartphone and internet.
What is building ampamp safety department?
The Building and Safety Department is a local government agency responsible for ensuring that construction and building safety regulations are followed, promoting safe building practices, and performing inspections.
Who is required to file building ampamp safety department?
Property owners, contractors, and developers involved in construction or renovation projects typically are required to file with the Building and Safety Department.
How to fill out building ampamp safety department?
To fill out the form for the Building and Safety Department, you need to complete the application by providing details about the proposed construction, including the project scope, location, and owner information, along with any required documentation.
What is the purpose of building ampamp safety department?
The purpose of the Building and Safety Department is to ensure compliance with building codes and safety standards, protect the health and safety of the public, and maintain the quality of the built environment.
What information must be reported on building ampamp safety department?
The information typically required includes project details (location, scope, and purpose), applicant information (contractor and owner details), and any relevant plans or documentation such as engineering studies or environmental assessments.
Fill out your building ampamp safety department online with pdfFiller!
pdfFiller is an end-to-end solution for managing, creating, and editing documents and forms in the cloud. Save time and hassle by preparing your tax forms online.
Building Ampamp Safety Department is not the form you're looking for?Search for another form here.
Relevant keywords
Related Forms
If you believe that this page should be taken down, please follow our DMCA take down process
here
.
This form may include fields for payment information. Data entered in these fields is not covered by PCI DSS compliance.