
Get the free Solicitud De Vacaciones, Ap, Dv D As Adicionales De Libre ...
Show details
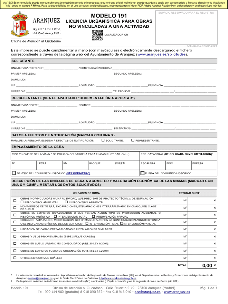
AVIS! Ester formulation suede SER complimented electrnicamente e impress para SU entrée official. Animism, suede guarders copra con SU contend y firmware digitalmente (hacienda \” CLIC\” sober
We are not affiliated with any brand or entity on this form
Get, Create, Make and Sign solicitud de vacaciones ap

Edit your solicitud de vacaciones ap form online
Type text, complete fillable fields, insert images, highlight or blackout data for discretion, add comments, and more.

Add your legally-binding signature
Draw or type your signature, upload a signature image, or capture it with your digital camera.

Share your form instantly
Email, fax, or share your solicitud de vacaciones ap form via URL. You can also download, print, or export forms to your preferred cloud storage service.
How to edit solicitud de vacaciones ap online
Follow the steps down below to benefit from the PDF editor's expertise:
1
Create an account. Begin by choosing Start Free Trial and, if you are a new user, establish a profile.
2
Upload a document. Select Add New on your Dashboard and transfer a file into the system in one of the following ways: by uploading it from your device or importing from the cloud, web, or internal mail. Then, click Start editing.
3
Edit solicitud de vacaciones ap. Text may be added and replaced, new objects can be included, pages can be rearranged, watermarks and page numbers can be added, and so on. When you're done editing, click Done and then go to the Documents tab to combine, divide, lock, or unlock the file.
4
Save your file. Choose it from the list of records. Then, shift the pointer to the right toolbar and select one of the several exporting methods: save it in multiple formats, download it as a PDF, email it, or save it to the cloud.
Dealing with documents is always simple with pdfFiller.
Uncompromising security for your PDF editing and eSignature needs
Your private information is safe with pdfFiller. We employ end-to-end encryption, secure cloud storage, and advanced access control to protect your documents and maintain regulatory compliance.
How to fill out solicitud de vacaciones ap

How to fill out solicitud de vacaciones ap
01
Obtain a solicitud de vacaciones ap form from your employer or human resources department.
02
Fill out your personal information, including your name, employee ID, and contact information.
03
Indicate the dates you are requesting for your vacation and the number of days you will be taking off.
04
Provide a reason for your vacation request, such as family vacation or personal time off.
05
Sign and date the form to certify that the information provided is accurate.
06
Submit the completed solicitud de vacaciones ap form to your employer or human resources department for approval.
Who needs solicitud de vacaciones ap?
01
Any employee who wants to request vacation time needs to fill out a solicitud de vacaciones ap form. This form helps the employer keep track of employee vacation requests and ensures that the appropriate staffing arrangements can be made during the requested time off.
Fill
form
: Try Risk Free
For pdfFiller’s FAQs
Below is a list of the most common customer questions. If you can’t find an answer to your question, please don’t hesitate to reach out to us.
How can I modify solicitud de vacaciones ap without leaving Google Drive?
By combining pdfFiller with Google Docs, you can generate fillable forms directly in Google Drive. No need to leave Google Drive to make edits or sign documents, including solicitud de vacaciones ap. Use pdfFiller's features in Google Drive to handle documents on any internet-connected device.
How do I make changes in solicitud de vacaciones ap?
With pdfFiller, you may not only alter the content but also rearrange the pages. Upload your solicitud de vacaciones ap and modify it with a few clicks. The editor lets you add photos, sticky notes, text boxes, and more to PDFs.
How can I edit solicitud de vacaciones ap on a smartphone?
You can easily do so with pdfFiller's apps for iOS and Android devices, which can be found at the Apple Store and the Google Play Store, respectively. You can use them to fill out PDFs. We have a website where you can get the app, but you can also get it there. When you install the app, log in, and start editing solicitud de vacaciones ap, you can start right away.
What is solicitud de vacaciones ap?
Solicitud de vacaciones ap is a form used to request vacation time off from work.
Who is required to file solicitud de vacaciones ap?
All employees who wish to take vacation time off are required to file solicitud de vacaciones ap.
How to fill out solicitud de vacaciones ap?
Solicitud de vacaciones ap can be filled out by providing information such as employee name, dates of requested vacation, and supervisor approval.
What is the purpose of solicitud de vacaciones ap?
The purpose of solicitud de vacaciones ap is to formally request vacation time off and ensure proper documentation.
What information must be reported on solicitud de vacaciones ap?
Information such as employee name, dates of requested vacation, and supervisor approval must be reported on solicitud de vacaciones ap.
Fill out your solicitud de vacaciones ap online with pdfFiller!
pdfFiller is an end-to-end solution for managing, creating, and editing documents and forms in the cloud. Save time and hassle by preparing your tax forms online.

Solicitud De Vacaciones Ap is not the form you're looking for?Search for another form here.
Relevant keywords
Related Forms
If you believe that this page should be taken down, please follow our DMCA take down process
here
.
This form may include fields for payment information. Data entered in these fields is not covered by PCI DSS compliance.