
Get the free wv655js.doc
Show details
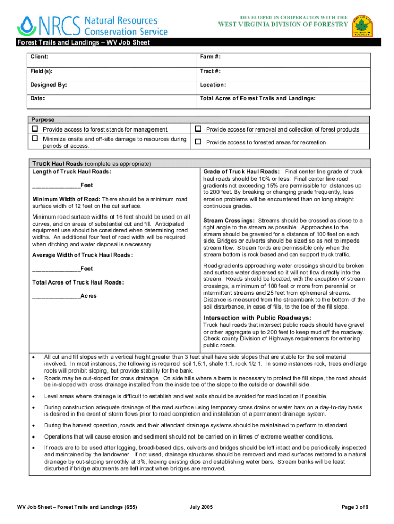
DEVELOPED IN COOPERATION WITH THEW EST VIRGINIA DIVISION OF FORESTRY Forest Trails and Landings Code 655Photo: M. Metz Conservation Practice Job SheetDEFINITION A route, travel way or cleared area
We are not affiliated with any brand or entity on this form
Get, Create, Make and Sign wv655jsdoc

Edit your wv655jsdoc form online
Type text, complete fillable fields, insert images, highlight or blackout data for discretion, add comments, and more.

Add your legally-binding signature
Draw or type your signature, upload a signature image, or capture it with your digital camera.

Share your form instantly
Email, fax, or share your wv655jsdoc form via URL. You can also download, print, or export forms to your preferred cloud storage service.
Editing wv655jsdoc online
Here are the steps you need to follow to get started with our professional PDF editor:
1
Log in to your account. Click on Start Free Trial and register a profile if you don't have one yet.
2
Prepare a file. Use the Add New button. Then upload your file to the system from your device, importing it from internal mail, the cloud, or by adding its URL.
3
Edit wv655jsdoc. Add and replace text, insert new objects, rearrange pages, add watermarks and page numbers, and more. Click Done when you are finished editing and go to the Documents tab to merge, split, lock or unlock the file.
4
Save your file. Choose it from the list of records. Then, shift the pointer to the right toolbar and select one of the several exporting methods: save it in multiple formats, download it as a PDF, email it, or save it to the cloud.
With pdfFiller, dealing with documents is always straightforward. Try it now!
Uncompromising security for your PDF editing and eSignature needs
Your private information is safe with pdfFiller. We employ end-to-end encryption, secure cloud storage, and advanced access control to protect your documents and maintain regulatory compliance.
How to fill out wv655jsdoc

How to fill out wv655jsdoc
01
To fill out wv655jsdoc, follow these steps:
02
Open the wv655jsdoc form on your computer or device.
03
Read the instructions carefully and gather all the required information.
04
Start by entering your personal details such as your name, address, and contact information.
05
Provide any additional details or documentation as requested in the form.
06
Fill out the required sections of the form, such as employment information, income details, and any other relevant information.
07
Double-check your answers to ensure they are accurate and complete.
08
Sign and date the form in the designated fields if required.
09
Review the completed form for any errors or missing information before submitting it.
10
Submit the filled-out wv655jsdoc form as per the provided instructions, either by mail, online submission, or in person.
11
Keep a copy of the filled-out form for your records.
Who needs wv655jsdoc?
01
Wv655jsdoc is needed by individuals or businesses who are required to report their income and file taxes in West Virginia.
02
It is used by residents of West Virginia to accurately report their earnings, deductions, and other information necessary for calculating state taxes.
03
Anyone who earns income in West Virginia, regardless of their residency, may also need to fill out this form if they meet certain income thresholds or have tax liabilities in the state.
Fill
form
: Try Risk Free
For pdfFiller’s FAQs
Below is a list of the most common customer questions. If you can’t find an answer to your question, please don’t hesitate to reach out to us.
How do I execute wv655jsdoc online?
pdfFiller has made filling out and eSigning wv655jsdoc easy. The solution is equipped with a set of features that enable you to edit and rearrange PDF content, add fillable fields, and eSign the document. Start a free trial to explore all the capabilities of pdfFiller, the ultimate document editing solution.
How do I edit wv655jsdoc straight from my smartphone?
You may do so effortlessly with pdfFiller's iOS and Android apps, which are available in the Apple Store and Google Play Store, respectively. You may also obtain the program from our website: https://edit-pdf-ios-android.pdffiller.com/. Open the application, sign in, and begin editing wv655jsdoc right away.
How do I fill out wv655jsdoc using my mobile device?
You can quickly make and fill out legal forms with the help of the pdfFiller app on your phone. Complete and sign wv655jsdoc and other documents on your mobile device using the application. If you want to learn more about how the PDF editor works, go to pdfFiller.com.
What is wv655jsdoc?
wv655jsdoc is a form used for reporting information on West Virginia state individual income tax.
Who is required to file wv655jsdoc?
Residents and nonresidents who earned income in West Virginia are required to file wv655jsdoc.
How to fill out wv655jsdoc?
wv655jsdoc can be filled out manually or electronically online through the West Virginia State Tax Department website.
What is the purpose of wv655jsdoc?
The purpose of wv655jsdoc is to report income earned in West Virginia and calculate any applicable state income tax.
What information must be reported on wv655jsdoc?
Information such as wages, salaries, tips, self-employment income, interest, dividends, and other sources of income must be reported on wv655jsdoc.
Fill out your wv655jsdoc online with pdfFiller!
pdfFiller is an end-to-end solution for managing, creating, and editing documents and forms in the cloud. Save time and hassle by preparing your tax forms online.

wv655jsdoc is not the form you're looking for?Search for another form here.
Relevant keywords
Related Forms
If you believe that this page should be taken down, please follow our DMCA take down process
here
.
This form may include fields for payment information. Data entered in these fields is not covered by PCI DSS compliance.