Get the free Multifamily HVAC Incentives with Bonus - Energy Trust of Oregon
Show details
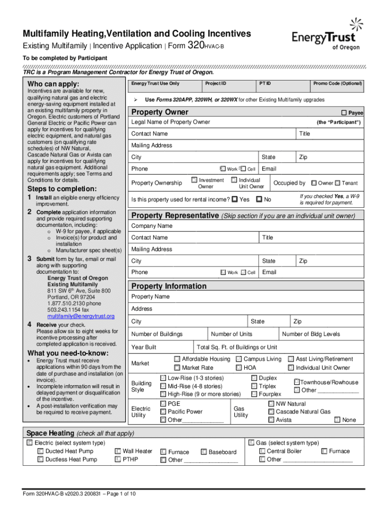
Multifamily Heating, Ventilation and Cooling Incentives Existing Multifamily | Incentive Application | Form 320HVACB To be completed by Participant TRC is a Program Management Contractor for Energy
We are not affiliated with any brand or entity on this form
Get, Create, Make and Sign multifamily hvac incentives with
Edit your multifamily hvac incentives with form online
Type text, complete fillable fields, insert images, highlight or blackout data for discretion, add comments, and more.
Add your legally-binding signature
Draw or type your signature, upload a signature image, or capture it with your digital camera.
Share your form instantly
Email, fax, or share your multifamily hvac incentives with form via URL. You can also download, print, or export forms to your preferred cloud storage service.
How to edit multifamily hvac incentives with online
Follow the steps below to benefit from the PDF editor's expertise:
1
Set up an account. If you are a new user, click Start Free Trial and establish a profile.
2
Upload a file. Select Add New on your Dashboard and upload a file from your device or import it from the cloud, online, or internal mail. Then click Edit.
3
Edit multifamily hvac incentives with. Rearrange and rotate pages, add and edit text, and use additional tools. To save changes and return to your Dashboard, click Done. The Documents tab allows you to merge, divide, lock, or unlock files.
4
Get your file. When you find your file in the docs list, click on its name and choose how you want to save it. To get the PDF, you can save it, send an email with it, or move it to the cloud.
pdfFiller makes dealing with documents a breeze. Create an account to find out!
Uncompromising security for your PDF editing and eSignature needs
Your private information is safe with pdfFiller. We employ end-to-end encryption, secure cloud storage, and advanced access control to protect your documents and maintain regulatory compliance.
How to fill out multifamily hvac incentives with
How to fill out multifamily hvac incentives with
01
Gather all the necessary documentation such as property information, utility bills, and eligibility documents.
02
Review the program guidelines and requirements to ensure your project meets the qualification criteria.
03
Complete the multifamily HVAC incentives application form accurately, providing all the requested information.
04
Attach the required supporting documents such as invoices, contracts, and proof of purchase for the HVAC equipment.
05
Submit the completed application and supporting documents to the designated program contact or online portal.
06
Wait for the program administrator to review your application and verify the eligibility and accuracy of the submitted information.
07
If approved, you will receive a notification or confirmation along with details on the amount of incentives you are eligible to receive.
08
Follow any additional instructions provided by the program administrator to claim or redeem the HVAC incentives.
09
Keep track of any deadlines or reporting requirements associated with the incentives to ensure compliance.
10
Enjoy the benefits of the multifamily HVAC incentives, which can help reduce energy costs and improve the efficiency of your property's heating and cooling system.
Who needs multifamily hvac incentives with?
01
Owners or managers of multifamily properties who want to reduce their HVAC energy costs.
02
Developers or builders constructing new multifamily buildings who want to incorporate energy-efficient HVAC systems.
03
Property owners looking to replace or upgrade their existing HVAC equipment in multifamily properties.
04
Energy-conscious individuals or organizations interested in improving the energy efficiency of multifamily housing.
05
Contractors or HVAC professionals working on multifamily projects who want to offer incentives to their clients and differentiate their services.
Fill
form
: Try Risk Free
For pdfFiller’s FAQs
Below is a list of the most common customer questions. If you can’t find an answer to your question, please don’t hesitate to reach out to us.
Where do I find multifamily hvac incentives with?
It's simple using pdfFiller, an online document management tool. Use our huge online form collection (over 25M fillable forms) to quickly discover the multifamily hvac incentives with. Open it immediately and start altering it with sophisticated capabilities.
How do I edit multifamily hvac incentives with straight from my smartphone?
Using pdfFiller's mobile-native applications for iOS and Android is the simplest method to edit documents on a mobile device. You may get them from the Apple App Store and Google Play, respectively. More information on the apps may be found here. Install the program and log in to begin editing multifamily hvac incentives with.
How do I fill out multifamily hvac incentives with using my mobile device?
Use the pdfFiller mobile app to fill out and sign multifamily hvac incentives with on your phone or tablet. Visit our website to learn more about our mobile apps, how they work, and how to get started.
What is multifamily HVAC incentives with?
Multifamily HVAC incentives are typically associated with rebates or financial incentives offered to encourage the installation of energy-efficient heating, ventilation, and air conditioning systems in multi-unit residential buildings.
Who is required to file multifamily HVAC incentives with?
Property owners or managers of multifamily residential buildings are typically required to file for HVAC incentives.
How to fill out multifamily HVAC incentives with?
To fill out multifamily HVAC incentives, property owners or managers need to provide information about the existing HVAC systems, proposed upgrades, estimated energy savings, and any documentation required by the incentive program.
What is the purpose of multifamily HVAC incentives with?
The purpose of multifamily HVAC incentives is to promote energy efficiency, reduce greenhouse gas emissions, and help property owners save on energy costs.
What information must be reported on multifamily HVAC incentives with?
Information such as existing HVAC system details, proposed upgrades, estimated energy savings, project costs, and any required documentation must be reported on multifamily HVAC incentives.
Fill out your multifamily hvac incentives with online with pdfFiller!
pdfFiller is an end-to-end solution for managing, creating, and editing documents and forms in the cloud. Save time and hassle by preparing your tax forms online.
Multifamily Hvac Incentives With is not the form you're looking for?Search for another form here.
Relevant keywords
Related Forms
If you believe that this page should be taken down, please follow our DMCA take down process
here
.
This form may include fields for payment information. Data entered in these fields is not covered by PCI DSS compliance.