Form preview

Get the free SEAF Part 1 - Department Initiated Mod-Cayuga Salt Mine. Short Environmental Assessm...

Get Form
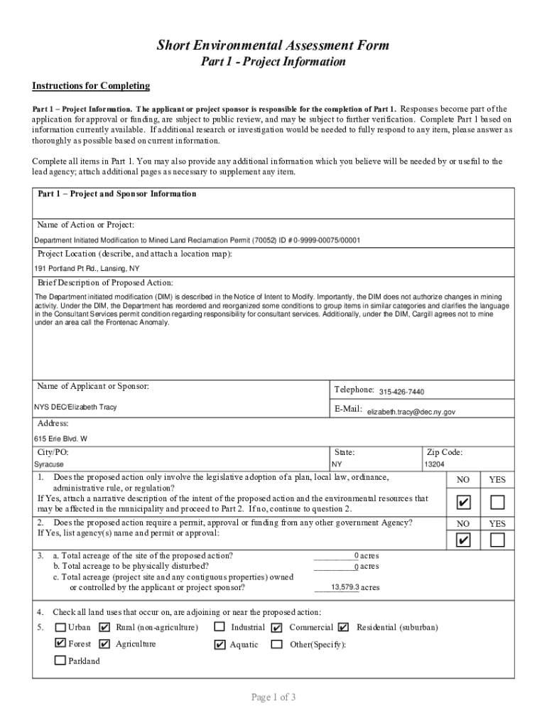
Short Environmental Assessment Form Part 1 Project Information Instructions for Completing Part 1 Project Information. The applicant or project sponsor is responsible for the completion of Part 1.
We are not affiliated with any brand or entity on this form

Get, Create, Make and Sign seaf part 1

Edit
Edit your seaf part 1 form online
Type text, complete fillable fields, insert images, highlight or blackout data for discretion, add comments, and more.
Add
Add your legally-binding signature
Draw or type your signature, upload a signature image, or capture it with your digital camera.
Share
Share your form instantly
Email, fax, or share your seaf part 1 form via URL. You can also download, print, or export forms to your preferred cloud storage service.

Editing seaf part 1 online

9.5
Ease of Setup
pdfFiller User Ratings on G2
9.0
Ease of Use
pdfFiller User Ratings on G2
Use the instructions below to start using our professional PDF editor:
1
Set up an account. If you are a new user, click Start Free Trial and establish a profile.
2
Upload a file. Select Add New on your Dashboard and upload a file from your device or import it from the cloud, online, or internal mail. Then click Edit.
3
Edit seaf part 1. Rearrange and rotate pages, insert new and alter existing texts, add new objects, and take advantage of other helpful tools. Click Done to apply changes and return to your Dashboard. Go to the Documents tab to access merging, splitting, locking, or unlocking functions.
4
Get your file. Select the name of your file in the docs list and choose your preferred exporting method. You can download it as a PDF, save it in another format, send it by email, or transfer it to the cloud.
Dealing with documents is simple using pdfFiller. Try it right now!

Uncompromising security for your PDF editing and eSignature needs

Your private information is safe with pdfFiller. We employ end-to-end encryption, secure cloud storage, and advanced access control to protect your documents and maintain regulatory compliance.
GDPR
AICPA SOC 2
PCI
HIPAA
CCPA
FDA

How to fill out seaf part 1

Illustration

How to fill out seaf part 1

01
To fill out SEAF Part 1, follow these steps:
02
Obtain the SEAF Part 1 form from the appropriate authority or website.
03
Fill in your personal information such as your name, address, contact details, and identification number.
04
Provide details about your employer, including the organization's name, address, and contact information.
05
Specify your employment status and the duration of your employment.
06
Fill out the sections related to your wages, working hours, and any deductions or benefits you receive.
07
Sign and date the form.
08
Review all the provided information to ensure accuracy and completeness.
09
Submit the filled-out SEAF Part 1 form to the appropriate authority or as instructed.

Who needs seaf part 1?

01
SEAF Part 1 is needed by individuals who are employed and require an official document to provide information about their employment. It is commonly used for administrative and legal purposes, such as for tax filing, social security benefits, or employment verification.
Fill form : Try Risk Free
Users Most Likely To Recommend - Summer 2025
Grid Leader in Small-Business - Summer 2025
High Performer - Summer 2025
Regional Leader - Summer 2025
Easiest To Do Business With - Summer 2025
Best Meets Requirements- Summer 2025
Rate the form
4.9
Satisfied
22 Votes

For pdfFiller’s FAQs

Below is a list of the most common customer questions. If you can’t find an answer to your question, please don’t hesitate to reach out to us.

Completing and signing seaf part 1 online is easy with pdfFiller. It enables you to edit original PDF content, highlight, blackout, erase and type text anywhere on a page, legally eSign your form, and much more. Create your free account and manage professional documents on the web.
You certainly can. You get not just a feature-rich PDF editor and fillable form builder with pdfFiller, but also a robust e-signature solution that you can add right to your Chrome browser. You may use our addon to produce a legally enforceable eSignature by typing, sketching, or photographing your signature with your webcam. Choose your preferred method and eSign your seaf part 1 in minutes.
You may quickly make your eSignature using pdfFiller and then eSign your seaf part 1 right from your mailbox using pdfFiller's Gmail add-on. Please keep in mind that in order to preserve your signatures and signed papers, you must first create an account.
SEAF Part 1 is a form filed by taxpayers to report their Specified Foreign Financial Assets.
U.S. taxpayers who meet the threshold for reporting specified foreign financial assets are required to file SEAF Part 1.
SEAF Part 1 can be filled out electronically through the IRS website or by mailing a paper form to the IRS.
The purpose of SEAF Part 1 is to report specified foreign financial assets that taxpayers have an interest in or signature authority over.
Taxpayers must report the type of foreign financial asset held, the maximum value during the tax year, and information about the financial institution where the asset is held.
Fill out your seaf part 1 online with pdfFiller!

pdfFiller is an end-to-end solution for managing, creating, and editing documents and forms in the cloud. Save time and hassle by preparing your tax forms online.

Get started now
Form preview
If you believe that this page should be taken down, please follow our DMCA take down process here .
This form may include fields for payment information. Data entered in these fields is not covered by PCI DSS compliance.