
Get the free ietresearch.onlinelibrary.wiley.com doi 10Research of wind turbine clutter mitigatio...
Show details
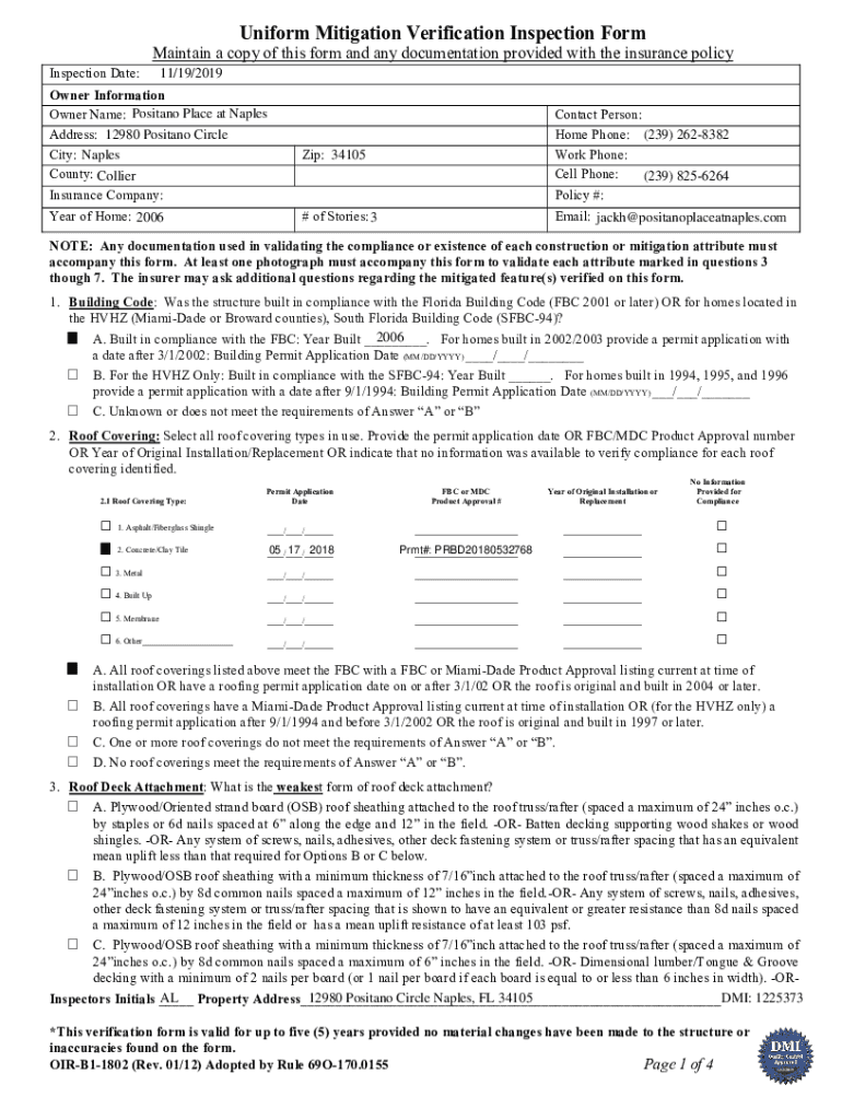
Uniform Mitigation Verification Inspection Form Maintain a copy of this form and any documentation provided with the insurance policy Inspection Date:11/19/2019Owner Information Owner Name: Position
We are not affiliated with any brand or entity on this form
Get, Create, Make and Sign ietresearchonlinelibrarywileycom doi 10research of

Edit your ietresearchonlinelibrarywileycom doi 10research of form online
Type text, complete fillable fields, insert images, highlight or blackout data for discretion, add comments, and more.

Add your legally-binding signature
Draw or type your signature, upload a signature image, or capture it with your digital camera.

Share your form instantly
Email, fax, or share your ietresearchonlinelibrarywileycom doi 10research of form via URL. You can also download, print, or export forms to your preferred cloud storage service.
How to edit ietresearchonlinelibrarywileycom doi 10research of online
Here are the steps you need to follow to get started with our professional PDF editor:
1
Create an account. Begin by choosing Start Free Trial and, if you are a new user, establish a profile.
2
Upload a file. Select Add New on your Dashboard and upload a file from your device or import it from the cloud, online, or internal mail. Then click Edit.
3
Edit ietresearchonlinelibrarywileycom doi 10research of. Rearrange and rotate pages, insert new and alter existing texts, add new objects, and take advantage of other helpful tools. Click Done to apply changes and return to your Dashboard. Go to the Documents tab to access merging, splitting, locking, or unlocking functions.
4
Get your file. Select your file from the documents list and pick your export method. You may save it as a PDF, email it, or upload it to the cloud.
The use of pdfFiller makes dealing with documents straightforward. Try it right now!
Uncompromising security for your PDF editing and eSignature needs
Your private information is safe with pdfFiller. We employ end-to-end encryption, secure cloud storage, and advanced access control to protect your documents and maintain regulatory compliance.
How to fill out ietresearchonlinelibrarywileycom doi 10research of

How to fill out ietresearchonlinelibrarywileycom doi 10research of
01
To fill out ietresearchonlinelibrarywileycom doi 10research, follow these steps:
02
Open your web browser and go to the ietresearchonlinelibrarywileycom website.
03
Search for the desired research article by using the search bar or navigating through the available categories.
04
Once you have found the article you want to fill out, click on it to open the full text.
05
Scroll down to the bottom of the page where you will find the 'DOI 10research' section.
06
Click on the 'Fill out' button next to the DOI number.
07
A form will appear asking for various information such as your name, email address, affiliation, and any additional comments or questions you may have.
08
Fill out all the required fields in the form.
09
Review your filled-out form to ensure all information is entered correctly.
10
Once you are satisfied with the form, click on the 'Submit' button.
11
You will receive a confirmation message indicating that your form has been successfully submitted. You may also receive a copy of the filled-out form via email for your records.
Who needs ietresearchonlinelibrarywileycom doi 10research of?
01
Anyone who wants to submit a research article or provide feedback on a specific article published on ietresearchonlinelibrarywileycom doi 10research may need to fill out the form.
Fill
form
: Try Risk Free
For pdfFiller’s FAQs
Below is a list of the most common customer questions. If you can’t find an answer to your question, please don’t hesitate to reach out to us.
How can I send ietresearchonlinelibrarywileycom doi 10research of for eSignature?
When you're ready to share your ietresearchonlinelibrarywileycom doi 10research of, you can swiftly email it to others and receive the eSigned document back. You may send your PDF through email, fax, text message, or USPS mail, or you can notarize it online. All of this may be done without ever leaving your account.
Can I create an electronic signature for signing my ietresearchonlinelibrarywileycom doi 10research of in Gmail?
You can easily create your eSignature with pdfFiller and then eSign your ietresearchonlinelibrarywileycom doi 10research of directly from your inbox with the help of pdfFiller’s add-on for Gmail. Please note that you must register for an account in order to save your signatures and signed documents.
How can I edit ietresearchonlinelibrarywileycom doi 10research of on a smartphone?
You can do so easily with pdfFiller’s applications for iOS and Android devices, which can be found at the Apple Store and Google Play Store, respectively. Alternatively, you can get the app on our web page: https://edit-pdf-ios-android.pdffiller.com/. Install the application, log in, and start editing ietresearchonlinelibrarywileycom doi 10research of right away.
What is ietresearchonlinelibrarywileycom doi 10research of?
The term seems to relate to a specific DOI (Digital Object Identifier) associated with research articles published on the Wiley Online Library. It typically provides a unique identifier for academic and professional publications, allowing users to easily locate and reference these works.
Who is required to file ietresearchonlinelibrarywileycom doi 10research of?
Individuals or organizations that conduct research and publish their findings on platforms like the Wiley Online Library are usually required to file using the specified DOI, helping to maintain academic integrity and facilitate access to their work.
How to fill out ietresearchonlinelibrarywileycom doi 10research of?
Filling out a DOI typically involves providing information such as the title of the research paper, authors, publication date, and other relevant metadata. Detailed instructions can usually be found on the Wiley Online Library submission guidelines.
What is the purpose of ietresearchonlinelibrarywileycom doi 10research of?
The purpose of the DOI is to provide a persistent link to the digital object (such as a research article) for easy access and citation, ensuring that the work can be reliably found and referenced.
What information must be reported on ietresearchonlinelibrarywileycom doi 10research of?
Information required includes the article title, authors' names, publication date, journal name, volume, issue number, page range, and the DOI itself.
Fill out your ietresearchonlinelibrarywileycom doi 10research of online with pdfFiller!
pdfFiller is an end-to-end solution for managing, creating, and editing documents and forms in the cloud. Save time and hassle by preparing your tax forms online.

Ietresearchonlinelibrarywileycom Doi 10research Of is not the form you're looking for?Search for another form here.
Relevant keywords
Related Forms
If you believe that this page should be taken down, please follow our DMCA take down process
here
.
This form may include fields for payment information. Data entered in these fields is not covered by PCI DSS compliance.