Get the free Environmental Checklist Form - TorranceCA.Gov
Show details
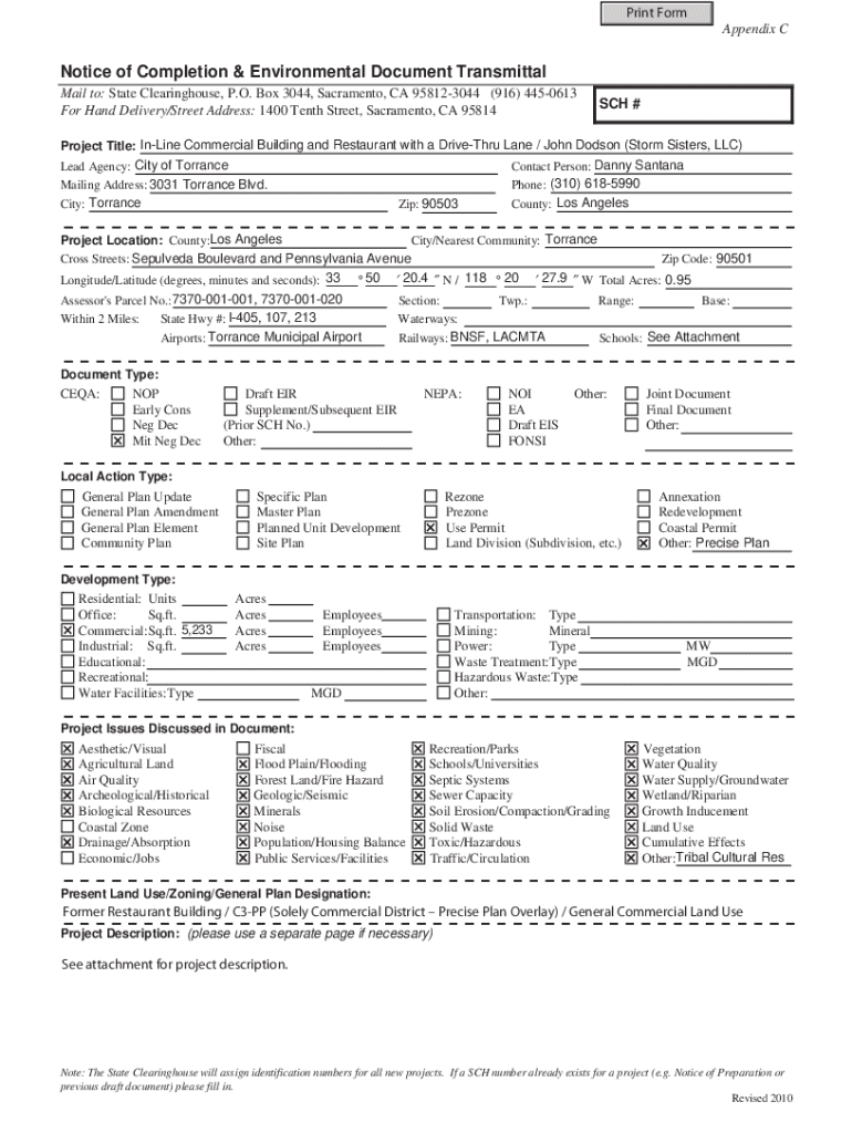
Print Form Appendix Notice of Completion & Environmental Document Transmittal Mail to: State Clearinghouse, P.O. Box 3044, Sacramento, CA 958123044 (916) 4450613 For Hand Delivery/Street Address:
We are not affiliated with any brand or entity on this form
Get, Create, Make and Sign environmental checklist form
Edit your environmental checklist form form online
Type text, complete fillable fields, insert images, highlight or blackout data for discretion, add comments, and more.
Add your legally-binding signature
Draw or type your signature, upload a signature image, or capture it with your digital camera.
Share your form instantly
Email, fax, or share your environmental checklist form form via URL. You can also download, print, or export forms to your preferred cloud storage service.
Editing environmental checklist form online
To use the services of a skilled PDF editor, follow these steps below:
1
Log in to your account. Click Start Free Trial and register a profile if you don't have one.
2
Simply add a document. Select Add New from your Dashboard and import a file into the system by uploading it from your device or importing it via the cloud, online, or internal mail. Then click Begin editing.
3
Edit environmental checklist form. Rearrange and rotate pages, insert new and alter existing texts, add new objects, and take advantage of other helpful tools. Click Done to apply changes and return to your Dashboard. Go to the Documents tab to access merging, splitting, locking, or unlocking functions.
4
Save your file. Choose it from the list of records. Then, shift the pointer to the right toolbar and select one of the several exporting methods: save it in multiple formats, download it as a PDF, email it, or save it to the cloud.
Uncompromising security for your PDF editing and eSignature needs
Your private information is safe with pdfFiller. We employ end-to-end encryption, secure cloud storage, and advanced access control to protect your documents and maintain regulatory compliance.
How to fill out environmental checklist form
How to fill out environmental checklist form
01
To fill out the environmental checklist form, follow these steps:
1. Start by identifying the purpose of the form and the specific environmental issues it addresses.
02
Gather all the necessary information related to the project or activity for which the checklist is being filled out.
03
Review the checklist form and understand each question or section.
04
Methodically go through each point or question on the checklist and provide the required information or select the appropriate response.
05
Ensure accuracy and completeness of the information provided.
06
If any question is not applicable, mark it accordingly or provide an explanation if necessary.
07
Review the filled out form for any errors or omissions.
08
Sign and date the form as required.
09
Submit the completed form to the designated authority or follow the specified procedure for submission.
Who needs environmental checklist form?
01
Various individuals, organizations, or businesses might need an environmental checklist form. Some common examples include:
02
- Construction companies initiating new projects
03
- Industrial facilities applying for permits or licenses
04
- Event organizers planning outdoor events
05
- Government agencies conducting environmental assessments
06
- Research institutions conducting studies in sensitive habitats
07
- Landowners modifying or developing their properties
08
- Environmental consultants or auditors evaluating environmental compliance
09
- Non-profit organizations working on environmental conservation projects
10
- Educational institutions organizing field trips or experiments that involve environmental components
Fill
form
: Try Risk Free
For pdfFiller’s FAQs
Below is a list of the most common customer questions. If you can’t find an answer to your question, please don’t hesitate to reach out to us.
How do I edit environmental checklist form online?
The editing procedure is simple with pdfFiller. Open your environmental checklist form in the editor, which is quite user-friendly. You may use it to blackout, redact, write, and erase text, add photos, draw arrows and lines, set sticky notes and text boxes, and much more.
How do I fill out the environmental checklist form form on my smartphone?
Use the pdfFiller mobile app to complete and sign environmental checklist form on your mobile device. Visit our web page (https://edit-pdf-ios-android.pdffiller.com/) to learn more about our mobile applications, the capabilities you’ll have access to, and the steps to take to get up and running.
How do I edit environmental checklist form on an iOS device?
Create, modify, and share environmental checklist form using the pdfFiller iOS app. Easy to install from the Apple Store. You may sign up for a free trial and then purchase a membership.
What is environmental checklist form?
Environmental checklist form is a document used to assess and record potential environmental impacts of a proposed project or activity.
Who is required to file environmental checklist form?
Typically, developers or project proponents are required to file an environmental checklist form as part of the permitting process.
How to fill out environmental checklist form?
To fill out the environmental checklist form, you will need to provide information about the proposed project, including details about the project location, potential environmental impacts, and proposed mitigation measures.
What is the purpose of environmental checklist form?
The purpose of the environmental checklist form is to evaluate the potential environmental effects of a project and ensure that appropriate measures are taken to mitigate any negative impacts.
What information must be reported on environmental checklist form?
Information such as project details, environmental impacts, mitigation measures, and compliance with relevant regulations must be reported on the environmental checklist form.
Fill out your environmental checklist form online with pdfFiller!
pdfFiller is an end-to-end solution for managing, creating, and editing documents and forms in the cloud. Save time and hassle by preparing your tax forms online.
Environmental Checklist Form is not the form you're looking for?Search for another form here.
Relevant keywords
Related Forms
If you believe that this page should be taken down, please follow our DMCA take down process
here
.
This form may include fields for payment information. Data entered in these fields is not covered by PCI DSS compliance.