Get the free nrb.vermont.gov sites nrbTHIS IS NOT A PERMIT Project Review Sheet - nrb.vermont.gov
Show details
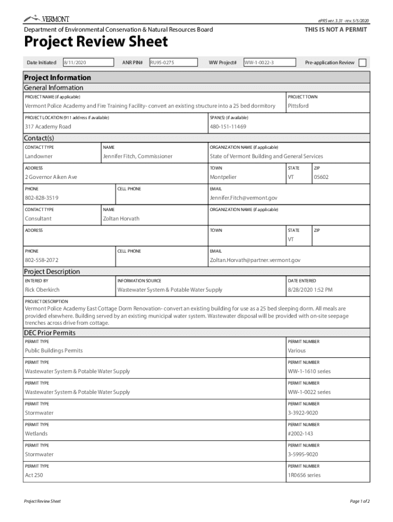
EARS very. 3.31 rev. 5/5/2020Department of Environmental Conservation & Natural Resources Boards IS NOT A PERMITProject Review Sheet Date Initiated8/11/2020ANR PIN×RU950275WW Project×Reapplication
We are not affiliated with any brand or entity on this form
Get, Create, Make and Sign nrbvermontgov sites nrbthis is
Edit your nrbvermontgov sites nrbthis is form online
Type text, complete fillable fields, insert images, highlight or blackout data for discretion, add comments, and more.
Add your legally-binding signature
Draw or type your signature, upload a signature image, or capture it with your digital camera.
Share your form instantly
Email, fax, or share your nrbvermontgov sites nrbthis is form via URL. You can also download, print, or export forms to your preferred cloud storage service.
Editing nrbvermontgov sites nrbthis is online
Follow the steps below to take advantage of the professional PDF editor:
1
Log in to account. Start Free Trial and register a profile if you don't have one.
2
Prepare a file. Use the Add New button to start a new project. Then, using your device, upload your file to the system by importing it from internal mail, the cloud, or adding its URL.
3
Edit nrbvermontgov sites nrbthis is. Rearrange and rotate pages, add and edit text, and use additional tools. To save changes and return to your Dashboard, click Done. The Documents tab allows you to merge, divide, lock, or unlock files.
4
Save your file. Select it in the list of your records. Then, move the cursor to the right toolbar and choose one of the available exporting methods: save it in multiple formats, download it as a PDF, send it by email, or store it in the cloud.
The use of pdfFiller makes dealing with documents straightforward.
Uncompromising security for your PDF editing and eSignature needs
Your private information is safe with pdfFiller. We employ end-to-end encryption, secure cloud storage, and advanced access control to protect your documents and maintain regulatory compliance.
How to fill out nrbvermontgov sites nrbthis is
How to fill out nrbvermontgov sites nrbthis is
01
To fill out the nrbvermontgov sites nrbthis is, follow these steps:
02
Go to the nrbvermontgov website.
03
Click on the 'NRB' section.
04
Locate the 'NRBThis is' form.
05
Fill in your personal information such as name, address, and contact details.
06
Provide relevant details or information in the required fields.
07
Double-check all the provided data for accuracy.
08
Submit the form.
09
Wait for confirmation or feedback from the NRB administration.
Who needs nrbvermontgov sites nrbthis is?
01
The nrbvermontgov sites nrbthis is is needed by individuals or organizations who require certain services or information from the NRB (Natural Resources Board) of Vermont.
02
Some examples of individuals who may need this site are:
03
- Applicants for permits or applications related to natural resources.
04
- Individuals seeking information or updates on specific projects or cases handled by the NRB.
05
- Those interested in environmental impact assessments or land use planning in Vermont.
Fill
form
: Try Risk Free
For pdfFiller’s FAQs
Below is a list of the most common customer questions. If you can’t find an answer to your question, please don’t hesitate to reach out to us.
How do I edit nrbvermontgov sites nrbthis is online?
pdfFiller not only allows you to edit the content of your files but fully rearrange them by changing the number and sequence of pages. Upload your nrbvermontgov sites nrbthis is to the editor and make any required adjustments in a couple of clicks. The editor enables you to blackout, type, and erase text in PDFs, add images, sticky notes and text boxes, and much more.
How do I fill out the nrbvermontgov sites nrbthis is form on my smartphone?
The pdfFiller mobile app makes it simple to design and fill out legal paperwork. Complete and sign nrbvermontgov sites nrbthis is and other papers using the app. Visit pdfFiller's website to learn more about the PDF editor's features.
How do I complete nrbvermontgov sites nrbthis is on an Android device?
Use the pdfFiller mobile app and complete your nrbvermontgov sites nrbthis is and other documents on your Android device. The app provides you with all essential document management features, such as editing content, eSigning, annotating, sharing files, etc. You will have access to your documents at any time, as long as there is an internet connection.
What is nrbvermontgov sites nrbthis is?
nrbvermontgov sites nrbthis is the online platform used for filing Natural Resources Board (NRB) documents in Vermont.
Who is required to file nrbvermontgov sites nrbthis is?
Individuals or entities required to file documents with the Natural Resources Board in Vermont are required to use nrbvermontgov sites nrbthis.
How to fill out nrbvermontgov sites nrbthis is?
To fill out nrbvermontgov sites nrbthis, users need to create an account, log in, and follow the instructions to submit the required information or documents.
What is the purpose of nrbvermontgov sites nrbthis is?
The purpose of nrbvermontgov sites nrbthis is to streamline and facilitate the filing process for documents with the Natural Resources Board in Vermont.
What information must be reported on nrbvermontgov sites nrbthis is?
The specific information to be reported on nrbvermontgov sites nrbthis is depends on the type of document being filed, but generally includes project details, maps, environmental impact assessments, etc.
Fill out your nrbvermontgov sites nrbthis is online with pdfFiller!
pdfFiller is an end-to-end solution for managing, creating, and editing documents and forms in the cloud. Save time and hassle by preparing your tax forms online.
Nrbvermontgov Sites Nrbthis Is is not the form you're looking for?Search for another form here.
Relevant keywords
Related Forms
If you believe that this page should be taken down, please follow our DMCA take down process
here
.
This form may include fields for payment information. Data entered in these fields is not covered by PCI DSS compliance.