Get the free missiontexas.us wp-content uploadsCity Of Mission - missiontexas.us
Show details
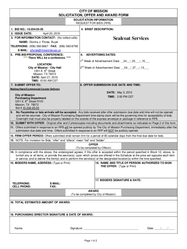
CITY OF MISSION SOLICITATION, OFFER AND AWARD FORM SOLICITATION INFORMATION REQUEST FOR BIDS (ROB) 1. BID NO.: 152040505 2. ISSUE DATE:4. BRIEF DESCRIPTION:April 20, 2015Sealcoat Services3. FOR INFORMATION
We are not affiliated with any brand or entity on this form
Get, Create, Make and Sign missiontexasus wp-content uploadscity of
Edit your missiontexasus wp-content uploadscity of form online
Type text, complete fillable fields, insert images, highlight or blackout data for discretion, add comments, and more.
Add your legally-binding signature
Draw or type your signature, upload a signature image, or capture it with your digital camera.
Share your form instantly
Email, fax, or share your missiontexasus wp-content uploadscity of form via URL. You can also download, print, or export forms to your preferred cloud storage service.
Editing missiontexasus wp-content uploadscity of online
Follow the steps below to benefit from a competent PDF editor:
1
Register the account. Begin by clicking Start Free Trial and create a profile if you are a new user.
2
Upload a file. Select Add New on your Dashboard and upload a file from your device or import it from the cloud, online, or internal mail. Then click Edit.
3
Edit missiontexasus wp-content uploadscity of. Add and change text, add new objects, move pages, add watermarks and page numbers, and more. Then click Done when you're done editing and go to the Documents tab to merge or split the file. If you want to lock or unlock the file, click the lock or unlock button.
4
Get your file. Select your file from the documents list and pick your export method. You may save it as a PDF, email it, or upload it to the cloud.
pdfFiller makes working with documents easier than you could ever imagine. Create an account to find out for yourself how it works!
Uncompromising security for your PDF editing and eSignature needs
Your private information is safe with pdfFiller. We employ end-to-end encryption, secure cloud storage, and advanced access control to protect your documents and maintain regulatory compliance.
How to fill out missiontexasus wp-content uploadscity of
How to fill out missiontexasus wp-content uploadscity of
01
Go to the website missiontexasus
02
Navigate to the wp-content/uploads directory
03
Locate the folder named 'city of'
04
Open the folder and access the files within
05
Fill out the necessary information or updates in the relevant files
Who needs missiontexasus wp-content uploadscity of?
01
The missiontexasus wp-content uploadscity of is needed by individuals or organizations involved in managing or updating content related to the city of Mission, Texas.
Fill
form
: Try Risk Free
For pdfFiller’s FAQs
Below is a list of the most common customer questions. If you can’t find an answer to your question, please don’t hesitate to reach out to us.
How can I send missiontexasus wp-content uploadscity of for eSignature?
When your missiontexasus wp-content uploadscity of is finished, send it to recipients securely and gather eSignatures with pdfFiller. You may email, text, fax, mail, or notarize a PDF straight from your account. Create an account today to test it.
Can I create an electronic signature for the missiontexasus wp-content uploadscity of in Chrome?
You certainly can. You get not just a feature-rich PDF editor and fillable form builder with pdfFiller, but also a robust e-signature solution that you can add right to your Chrome browser. You may use our addon to produce a legally enforceable eSignature by typing, sketching, or photographing your signature with your webcam. Choose your preferred method and eSign your missiontexasus wp-content uploadscity of in minutes.
Can I edit missiontexasus wp-content uploadscity of on an Android device?
The pdfFiller app for Android allows you to edit PDF files like missiontexasus wp-content uploadscity of. Mobile document editing, signing, and sending. Install the app to ease document management anywhere.
What is missiontexasus wp-content uploadscity of?
City of Mission, Texas
Who is required to file missiontexasus wp-content uploadscity of?
Residents of Mission, Texas
How to fill out missiontexasus wp-content uploadscity of?
You can fill out the form online or submit a physical copy to the City Hall
What is the purpose of missiontexasus wp-content uploadscity of?
To report relevant information to the City of Mission for regulatory purposes
What information must be reported on missiontexasus wp-content uploadscity of?
Details about property ownership, residency status, and income sources
Fill out your missiontexasus wp-content uploadscity of online with pdfFiller!
pdfFiller is an end-to-end solution for managing, creating, and editing documents and forms in the cloud. Save time and hassle by preparing your tax forms online.
Missiontexasus Wp-Content Uploadscity Of is not the form you're looking for?Search for another form here.
Relevant keywords
Related Forms
If you believe that this page should be taken down, please follow our DMCA take down process
here
.
This form may include fields for payment information. Data entered in these fields is not covered by PCI DSS compliance.