
Get the free Online DASH Glendale & Evergreen Court ...
Show details
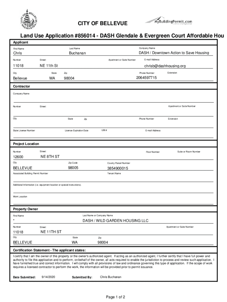
CITY OF BELLEVUE Land Use Application #856014 DASH Glendale & Evergreen Court Affordable You Applicant First Nameless Accompany NameChrisBuchananDASH / Downtown Action to Save HousingNumberStreet11018NE
We are not affiliated with any brand or entity on this form
Get, Create, Make and Sign online dash glendale ampampamp

Edit your online dash glendale ampampamp form online
Type text, complete fillable fields, insert images, highlight or blackout data for discretion, add comments, and more.

Add your legally-binding signature
Draw or type your signature, upload a signature image, or capture it with your digital camera.

Share your form instantly
Email, fax, or share your online dash glendale ampampamp form via URL. You can also download, print, or export forms to your preferred cloud storage service.
How to edit online dash glendale ampampamp online
Follow the steps below to benefit from a competent PDF editor:
1
Create an account. Begin by choosing Start Free Trial and, if you are a new user, establish a profile.
2
Upload a file. Select Add New on your Dashboard and upload a file from your device or import it from the cloud, online, or internal mail. Then click Edit.
3
Edit online dash glendale ampampamp. Rearrange and rotate pages, add and edit text, and use additional tools. To save changes and return to your Dashboard, click Done. The Documents tab allows you to merge, divide, lock, or unlock files.
4
Save your file. Choose it from the list of records. Then, shift the pointer to the right toolbar and select one of the several exporting methods: save it in multiple formats, download it as a PDF, email it, or save it to the cloud.
pdfFiller makes working with documents easier than you could ever imagine. Register for an account and see for yourself!
Uncompromising security for your PDF editing and eSignature needs
Your private information is safe with pdfFiller. We employ end-to-end encryption, secure cloud storage, and advanced access control to protect your documents and maintain regulatory compliance.
How to fill out online dash glendale ampampamp

How to fill out online dash glendale ampampamp
01
To fill out online dash Glendale, follow these steps:
02
Open a web browser and go to the Glendale website
03
Click on the 'Online Dash' link
04
Fill in your personal information, such as name, address, and contact details
05
Provide the required information for the dash, such as the date, time, and location
06
Upload any necessary documents or supporting materials
07
Review your information for accuracy
08
Submit the form
09
You will receive a confirmation message indicating your dash has been filled out successfully.
Who needs online dash glendale ampampamp?
01
Online dash Glendale is useful for individuals who:
02
- Need to submit a report or request related to Glendale
03
- Prefer a convenient and efficient online method for filling out forms
04
- Want to save time by avoiding the need to visit Glendale offices in person
05
- Require a secure and reliable platform for submitting their information
Fill
form
: Try Risk Free
For pdfFiller’s FAQs
Below is a list of the most common customer questions. If you can’t find an answer to your question, please don’t hesitate to reach out to us.
How can I send online dash glendale ampampamp to be eSigned by others?
online dash glendale ampampamp is ready when you're ready to send it out. With pdfFiller, you can send it out securely and get signatures in just a few clicks. PDFs can be sent to you by email, text message, fax, USPS mail, or notarized on your account. You can do this right from your account. Become a member right now and try it out for yourself!
How can I get online dash glendale ampampamp?
The premium subscription for pdfFiller provides you with access to an extensive library of fillable forms (over 25M fillable templates) that you can download, fill out, print, and sign. You won’t have any trouble finding state-specific online dash glendale ampampamp and other forms in the library. Find the template you need and customize it using advanced editing functionalities.
How do I edit online dash glendale ampampamp on an iOS device?
Use the pdfFiller app for iOS to make, edit, and share online dash glendale ampampamp from your phone. Apple's store will have it up and running in no time. It's possible to get a free trial and choose a subscription plan that fits your needs.
What is online dash glendale ampampamp?
Online Dash Glendale ampampamp is an online platform for filing and reporting dashcam footage in the city of Glendale.
Who is required to file online dash glendale ampampamp?
All drivers in Glendale who have dashcams installed in their vehicles are required to file online dash Glendale ampampamp.
How to fill out online dash glendale ampampamp?
To fill out online dash Glendale ampampamp, users need to create an account on the platform, upload their dashcam footage, and provide details about the incident.
What is the purpose of online dash glendale ampampamp?
The purpose of online dash Glendale ampampamp is to facilitate the reporting of incidents captured on dashcams to the authorities in Glendale for further action.
What information must be reported on online dash glendale ampampamp?
Users must report details about the date, time, and location of the incident, as well as any other relevant information captured in the dashcam footage.
Fill out your online dash glendale ampampamp online with pdfFiller!
pdfFiller is an end-to-end solution for managing, creating, and editing documents and forms in the cloud. Save time and hassle by preparing your tax forms online.

Online Dash Glendale Ampampamp is not the form you're looking for?Search for another form here.
Relevant keywords
Related Forms
If you believe that this page should be taken down, please follow our DMCA take down process
here
.
This form may include fields for payment information. Data entered in these fields is not covered by PCI DSS compliance.