Get the free ENERGY STAR Partner LocatorNew HomesENERGY STAR
Show details
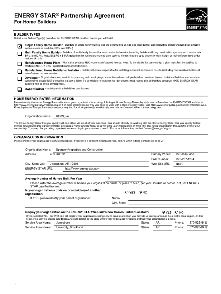
ENERGY STAR Partnership Agreement For Home Builders BUILDER TYPES Select Your Builder Type(s) based on the ENERGY STAR qualified homes you will build:Single Family Home Builder Builders of single
We are not affiliated with any brand or entity on this form
Get, Create, Make and Sign energy star partner locatornew
Edit your energy star partner locatornew form online
Type text, complete fillable fields, insert images, highlight or blackout data for discretion, add comments, and more.
Add your legally-binding signature
Draw or type your signature, upload a signature image, or capture it with your digital camera.
Share your form instantly
Email, fax, or share your energy star partner locatornew form via URL. You can also download, print, or export forms to your preferred cloud storage service.
How to edit energy star partner locatornew online
Follow the guidelines below to use a professional PDF editor:
1
Create an account. Begin by choosing Start Free Trial and, if you are a new user, establish a profile.
2
Prepare a file. Use the Add New button. Then upload your file to the system from your device, importing it from internal mail, the cloud, or by adding its URL.
3
Edit energy star partner locatornew. Replace text, adding objects, rearranging pages, and more. Then select the Documents tab to combine, divide, lock or unlock the file.
4
Get your file. When you find your file in the docs list, click on its name and choose how you want to save it. To get the PDF, you can save it, send an email with it, or move it to the cloud.
Dealing with documents is simple using pdfFiller. Try it right now!
Uncompromising security for your PDF editing and eSignature needs
Your private information is safe with pdfFiller. We employ end-to-end encryption, secure cloud storage, and advanced access control to protect your documents and maintain regulatory compliance.
How to fill out energy star partner locatornew
How to fill out energy star partner locatornew
01
To fill out the Energy Star Partner Locator, follow these steps:
02
Go to the Energy Star Partner Locator website.
03
Click on the 'Add/Update Your Company' option.
04
Provide your company information such as name, address, and contact details.
05
Select the appropriate business type and sector for your company.
06
Specify the energy-efficient products or services your company offers.
07
Upload any necessary documentation or proof of qualification.
08
Review and submit your information.
09
Wait for your company to be reviewed and listed on the Energy Star Partner Locator.
Who needs energy star partner locatornew?
01
Energy Star Partner Locator is needed by businesses or organizations that want to showcase their commitment to energy efficiency and sustainability.
02
It is also useful for consumers who want to find companies that offer energy-efficient products or services.
03
Additionally, government agencies, utilities, and energy efficiency programs may use the Energy Star Partner Locator to identify and promote energy-efficient businesses in their region.
Fill
form
: Try Risk Free
For pdfFiller’s FAQs
Below is a list of the most common customer questions. If you can’t find an answer to your question, please don’t hesitate to reach out to us.
How can I send energy star partner locatornew for eSignature?
When you're ready to share your energy star partner locatornew, you can swiftly email it to others and receive the eSigned document back. You may send your PDF through email, fax, text message, or USPS mail, or you can notarize it online. All of this may be done without ever leaving your account.
How do I make edits in energy star partner locatornew without leaving Chrome?
Install the pdfFiller Google Chrome Extension in your web browser to begin editing energy star partner locatornew and other documents right from a Google search page. When you examine your documents in Chrome, you may make changes to them. With pdfFiller, you can create fillable documents and update existing PDFs from any internet-connected device.
Can I create an eSignature for the energy star partner locatornew in Gmail?
Create your eSignature using pdfFiller and then eSign your energy star partner locatornew immediately from your email with pdfFiller's Gmail add-on. To keep your signatures and signed papers, you must create an account.
What is energy star partner locatornew?
Energy Star Partner Locatornew is a tool that helps users find Energy Star partners who have committed to making their products and practices more energy efficient.
Who is required to file energy star partner locatornew?
Manufacturers, distributors, retailers, and other organizations that want to be recognized as Energy Star partners are required to file Energy Star Partner Locatornew.
How to fill out energy star partner locatornew?
To fill out Energy Star Partner Locatornew, organizations need to provide information about their energy efficiency initiatives, products, and practices. They can do so by accessing the online portal provided by Energy Star.
What is the purpose of energy star partner locatornew?
The purpose of Energy Star Partner Locatornew is to showcase and promote the efforts of organizations that are committed to improving energy efficiency and reducing their environmental impact.
What information must be reported on energy star partner locatornew?
Information such as the organization's name, contact information, Energy Star partnership level, and details about their energy efficient products and practices must be reported on Energy Star Partner Locatornew.
Fill out your energy star partner locatornew online with pdfFiller!
pdfFiller is an end-to-end solution for managing, creating, and editing documents and forms in the cloud. Save time and hassle by preparing your tax forms online.
Energy Star Partner Locatornew is not the form you're looking for?Search for another form here.
Relevant keywords
Related Forms
If you believe that this page should be taken down, please follow our DMCA take down process
here
.
This form may include fields for payment information. Data entered in these fields is not covered by PCI DSS compliance.