Get the free dnr.wisconsin.govpermitsregistrationsAll-terrain vehicle (ATV) and utility-terrain ....
Show details
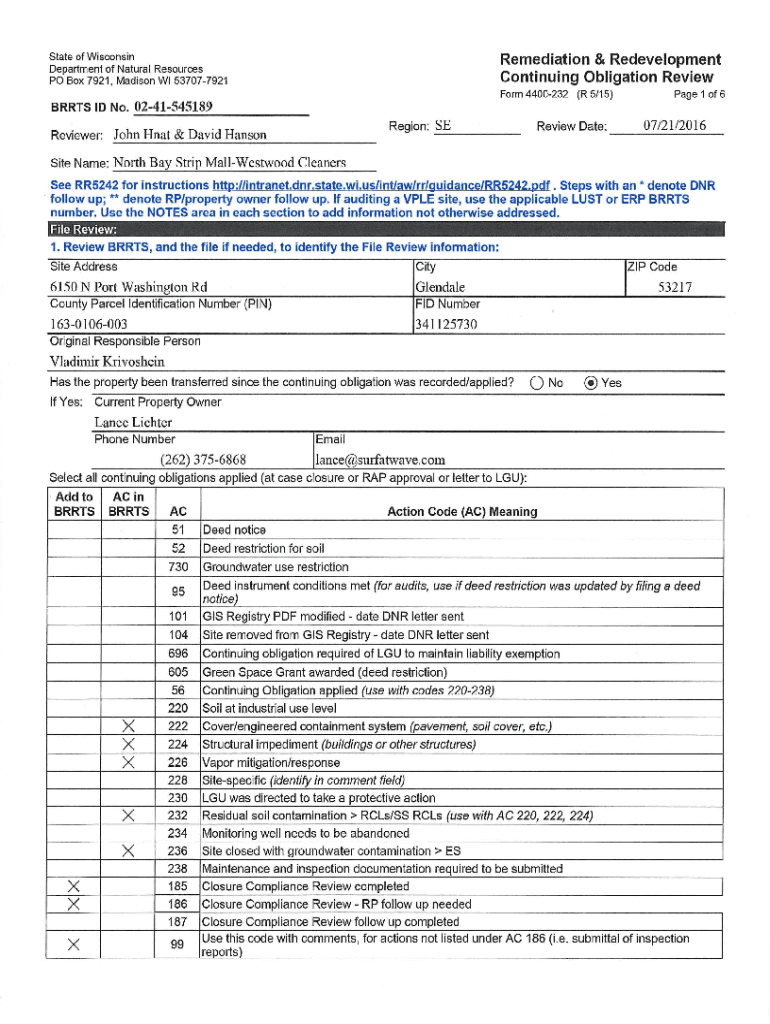
State of Wisconsin Department of Natural Resources PO Box 7921, Madison WI 537077921Remediation & Redevelopment Continuing Obligation Review Form 4400232 (R 5/15)Page 1 of 6BRRTS ID No. 0241545189Region:
We are not affiliated with any brand or entity on this form
Get, Create, Make and Sign dnrwisconsingovpermitsregistrationsall-terrain vehicle atv and
Edit your dnrwisconsingovpermitsregistrationsall-terrain vehicle atv and form online
Type text, complete fillable fields, insert images, highlight or blackout data for discretion, add comments, and more.
Add your legally-binding signature
Draw or type your signature, upload a signature image, or capture it with your digital camera.
Share your form instantly
Email, fax, or share your dnrwisconsingovpermitsregistrationsall-terrain vehicle atv and form via URL. You can also download, print, or export forms to your preferred cloud storage service.
Editing dnrwisconsingovpermitsregistrationsall-terrain vehicle atv and online
Follow the steps down below to benefit from the PDF editor's expertise:
1
Create an account. Begin by choosing Start Free Trial and, if you are a new user, establish a profile.
2
Upload a file. Select Add New on your Dashboard and upload a file from your device or import it from the cloud, online, or internal mail. Then click Edit.
3
Edit dnrwisconsingovpermitsregistrationsall-terrain vehicle atv and. Text may be added and replaced, new objects can be included, pages can be rearranged, watermarks and page numbers can be added, and so on. When you're done editing, click Done and then go to the Documents tab to combine, divide, lock, or unlock the file.
4
Save your file. Select it from your records list. Then, click the right toolbar and select one of the various exporting options: save in numerous formats, download as PDF, email, or cloud.
It's easier to work with documents with pdfFiller than you could have believed. You may try it out for yourself by signing up for an account.
Uncompromising security for your PDF editing and eSignature needs
Your private information is safe with pdfFiller. We employ end-to-end encryption, secure cloud storage, and advanced access control to protect your documents and maintain regulatory compliance.
How to fill out dnrwisconsingovpermitsregistrationsall-terrain vehicle atv and
How to fill out dnrwisconsingovpermitsregistrationsall-terrain vehicle atv and
01
To fill out dnrwisconsingovpermitsregistrationsall-terrain vehicle (ATV) permit, follow these steps:
02
Visit the website dnr.wisconsin.gov permits and registrations section.
03
Look for the specific permit registration form for ATV.
04
Download the form and open it using a PDF reader.
05
Carefully read the instructions provided on the form.
06
Fill out all the required fields such as personal information, vehicle details, and contact information.
07
Make sure to provide accurate and up-to-date information.
08
Double-check the form for any errors or missing information.
09
Once you are satisfied with the form, save a copy for your records.
10
Submit the completed form either online or by mail as specified on the website.
11
Pay any applicable fees for the permit registration.
12
Wait for the confirmation of your permit registration either via email or mail.
13
Once you receive the confirmation, your ATV is now registered and permitted.
14
Make sure to keep a copy of the permit with you whenever you use the ATV.
Who needs dnrwisconsingovpermitsregistrationsall-terrain vehicle atv and?
01
Any individual who intends to operate an all-terrain vehicle (ATV) in Wisconsin needs dnrwisconsingovpermitsregistrationsall-terrain vehicle (ATV) permit.
02
This includes residents and non-residents, regardless of age.
Fill
form
: Try Risk Free
For pdfFiller’s FAQs
Below is a list of the most common customer questions. If you can’t find an answer to your question, please don’t hesitate to reach out to us.
How do I fill out dnrwisconsingovpermitsregistrationsall-terrain vehicle atv and using my mobile device?
On your mobile device, use the pdfFiller mobile app to complete and sign dnrwisconsingovpermitsregistrationsall-terrain vehicle atv and. Visit our website (https://edit-pdf-ios-android.pdffiller.com/) to discover more about our mobile applications, the features you'll have access to, and how to get started.
Can I edit dnrwisconsingovpermitsregistrationsall-terrain vehicle atv and on an Android device?
You can make any changes to PDF files, such as dnrwisconsingovpermitsregistrationsall-terrain vehicle atv and, with the help of the pdfFiller mobile app for Android. Edit, sign, and send documents right from your mobile device. Install the app and streamline your document management wherever you are.
How do I fill out dnrwisconsingovpermitsregistrationsall-terrain vehicle atv and on an Android device?
Use the pdfFiller app for Android to finish your dnrwisconsingovpermitsregistrationsall-terrain vehicle atv and. The application lets you do all the things you need to do with documents, like add, edit, and remove text, sign, annotate, and more. There is nothing else you need except your smartphone and an internet connection to do this.
What is dnrwisconsingovpermitsregistrationsall-terrain vehicle atv and?
Dnrwisconsingovpermitsregistrationsall-terrain vehicle atv and is the registration required for operating all-terrain vehicles in Wisconsin.
Who is required to file dnrwisconsingovpermitsregistrationsall-terrain vehicle atv and?
All individuals who operate or own an all-terrain vehicle in Wisconsin are required to file dnrwisconsingovpermitsregistrationsall-terrain vehicle atv and.
How to fill out dnrwisconsingovpermitsregistrationsall-terrain vehicle atv and?
To fill out dnrwisconsingovpermitsregistrationsall-terrain vehicle atv and, individuals need to provide information about themselves, their ATV, and pay the required fees.
What is the purpose of dnrwisconsingovpermitsregistrationsall-terrain vehicle atv and?
The purpose of dnrwisconsingovpermitsregistrationsall-terrain vehicle atv and is to ensure all-terrain vehicles are properly registered and compliant with state regulations.
What information must be reported on dnrwisconsingovpermitsregistrationsall-terrain vehicle atv and?
Information such as owner's name, ATV make and model, and vehicle identification number must be reported on dnrwisconsingovpermitsregistrationsall-terrain vehicle atv and.
Fill out your dnrwisconsingovpermitsregistrationsall-terrain vehicle atv and online with pdfFiller!
pdfFiller is an end-to-end solution for managing, creating, and editing documents and forms in the cloud. Save time and hassle by preparing your tax forms online.
Dnrwisconsingovpermitsregistrationsall-Terrain Vehicle Atv And is not the form you're looking for?Search for another form here.
Relevant keywords
Related Forms
If you believe that this page should be taken down, please follow our DMCA take down process
here
.
This form may include fields for payment information. Data entered in these fields is not covered by PCI DSS compliance.