
Get the free Uniform Mitigation Verification Inspection Form Maintain a copy of this ...
Show details
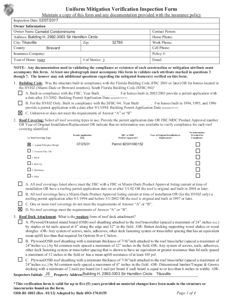
Uniform Mitigation Verification Inspection Form Maintain a copy of this form and any documentation provided with the insurance policy Inspection Date: 02/07/2017 Owner Information Owner Name: Camelot
We are not affiliated with any brand or entity on this form
Get, Create, Make and Sign uniform mitigation verification inspection

Edit your uniform mitigation verification inspection form online
Type text, complete fillable fields, insert images, highlight or blackout data for discretion, add comments, and more.

Add your legally-binding signature
Draw or type your signature, upload a signature image, or capture it with your digital camera.

Share your form instantly
Email, fax, or share your uniform mitigation verification inspection form via URL. You can also download, print, or export forms to your preferred cloud storage service.
How to edit uniform mitigation verification inspection online
Follow the steps down below to benefit from the PDF editor's expertise:
1
Log in to your account. Click on Start Free Trial and sign up a profile if you don't have one yet.
2
Prepare a file. Use the Add New button to start a new project. Then, using your device, upload your file to the system by importing it from internal mail, the cloud, or adding its URL.
3
Edit uniform mitigation verification inspection. Add and change text, add new objects, move pages, add watermarks and page numbers, and more. Then click Done when you're done editing and go to the Documents tab to merge or split the file. If you want to lock or unlock the file, click the lock or unlock button.
4
Save your file. Select it from your records list. Then, click the right toolbar and select one of the various exporting options: save in numerous formats, download as PDF, email, or cloud.
pdfFiller makes dealing with documents a breeze. Create an account to find out!
Uncompromising security for your PDF editing and eSignature needs
Your private information is safe with pdfFiller. We employ end-to-end encryption, secure cloud storage, and advanced access control to protect your documents and maintain regulatory compliance.
How to fill out uniform mitigation verification inspection

How to fill out uniform mitigation verification inspection
01
Start by gathering all the necessary documents and information related to the property's mitigation system.
02
Inspect the property's mitigation system thoroughly, including the roof, windows, doors, and other relevant components.
03
Identify and document any areas that need improvement or repair in the mitigation system.
04
Fill out the uniform mitigation verification inspection form, providing accurate and complete information.
05
Attach any supporting documents or photographs as required.
06
Review the completed form to ensure all information is correct and nothing is missing.
07
Submit the filled-out form and any supporting materials to the appropriate authority or insurance company.
Who needs uniform mitigation verification inspection?
01
Anyone who owns a property and wants to determine its eligibility for certain insurance discounts or benefits.
02
Insurance companies may also require a uniform mitigation verification inspection for policyholders.
03
Homeowners applying for certain government programs or grants may also need this inspection.
Fill
form
: Try Risk Free
For pdfFiller’s FAQs
Below is a list of the most common customer questions. If you can’t find an answer to your question, please don’t hesitate to reach out to us.
How can I send uniform mitigation verification inspection for eSignature?
Once your uniform mitigation verification inspection is complete, you can securely share it with recipients and gather eSignatures with pdfFiller in just a few clicks. You may transmit a PDF by email, text message, fax, USPS mail, or online notarization directly from your account. Make an account right now and give it a go.
How do I execute uniform mitigation verification inspection online?
With pdfFiller, you may easily complete and sign uniform mitigation verification inspection online. It lets you modify original PDF material, highlight, blackout, erase, and write text anywhere on a page, legally eSign your document, and do a lot more. Create a free account to handle professional papers online.
Can I create an eSignature for the uniform mitigation verification inspection in Gmail?
It's easy to make your eSignature with pdfFiller, and then you can sign your uniform mitigation verification inspection right from your Gmail inbox with the help of pdfFiller's add-on for Gmail. This is a very important point: You must sign up for an account so that you can save your signatures and signed documents.
What is uniform mitigation verification inspection?
Uniform Mitigation Verification Inspection is a process where an inspector evaluates a property's wind-resistant features to determine its ability to withstand high winds.
Who is required to file uniform mitigation verification inspection?
Property owners in certain states are required to file a uniform mitigation verification inspection for insurance purposes.
How to fill out uniform mitigation verification inspection?
To fill out a uniform mitigation verification inspection, a qualified inspector must assess the property's wind-resistant features and accurately report them on the form.
What is the purpose of uniform mitigation verification inspection?
The purpose of uniform mitigation verification inspection is to provide insurance companies with an accurate assessment of a property's wind-resistant features in order to determine the risk of wind damage.
What information must be reported on uniform mitigation verification inspection?
The information reported on a uniform mitigation verification inspection typically includes details about the roof, windows, doors, and other features that impact a property's ability to withstand high winds.
Fill out your uniform mitigation verification inspection online with pdfFiller!
pdfFiller is an end-to-end solution for managing, creating, and editing documents and forms in the cloud. Save time and hassle by preparing your tax forms online.

Uniform Mitigation Verification Inspection is not the form you're looking for?Search for another form here.
Relevant keywords
Related Forms
If you believe that this page should be taken down, please follow our DMCA take down process
here
.
This form may include fields for payment information. Data entered in these fields is not covered by PCI DSS compliance.