Get the www.pdffiller.com391195282-InternationalGet the free $40 nonrefundable application fee re...
Show details
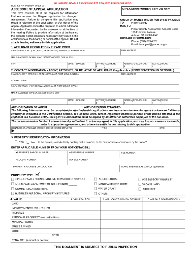
BOE305AH (P1) REV. 09 (0520)$40 NONREFUNDABLE PROCESSING FEE REQUIRED FOR EACH PARCELAPPLICATION NUMBER: Clerk Use OnlyASSESSMENT APPEAL Applications form contains all the requests for information
We are not affiliated with any brand or entity on this form
Get, Create, Make and Sign wwwpdffillercom391195282-international 40 nonrefundable application
Edit your wwwpdffillercom391195282-international 40 nonrefundable application form online
Type text, complete fillable fields, insert images, highlight or blackout data for discretion, add comments, and more.
Add your legally-binding signature
Draw or type your signature, upload a signature image, or capture it with your digital camera.
Share your form instantly
Email, fax, or share your wwwpdffillercom391195282-international 40 nonrefundable application form via URL. You can also download, print, or export forms to your preferred cloud storage service.
How to edit wwwpdffillercom391195282-international 40 nonrefundable application online
Follow the guidelines below to take advantage of the professional PDF editor:
1
Register the account. Begin by clicking Start Free Trial and create a profile if you are a new user.
2
Simply add a document. Select Add New from your Dashboard and import a file into the system by uploading it from your device or importing it via the cloud, online, or internal mail. Then click Begin editing.
3
Edit wwwpdffillercom391195282-international 40 nonrefundable application. Add and change text, add new objects, move pages, add watermarks and page numbers, and more. Then click Done when you're done editing and go to the Documents tab to merge or split the file. If you want to lock or unlock the file, click the lock or unlock button.
4
Save your file. Select it from your records list. Then, click the right toolbar and select one of the various exporting options: save in numerous formats, download as PDF, email, or cloud.
pdfFiller makes working with documents easier than you could ever imagine. Create an account to find out for yourself how it works!
Uncompromising security for your PDF editing and eSignature needs
Your private information is safe with pdfFiller. We employ end-to-end encryption, secure cloud storage, and advanced access control to protect your documents and maintain regulatory compliance.
Fill
form
: Try Risk Free
For pdfFiller’s FAQs
Below is a list of the most common customer questions. If you can’t find an answer to your question, please don’t hesitate to reach out to us.
How can I manage my wwwpdffillercom391195282-international 40 nonrefundable application directly from Gmail?
In your inbox, you may use pdfFiller's add-on for Gmail to generate, modify, fill out, and eSign your wwwpdffillercom391195282-international 40 nonrefundable application and any other papers you receive, all without leaving the program. Install pdfFiller for Gmail from the Google Workspace Marketplace by visiting this link. Take away the need for time-consuming procedures and handle your papers and eSignatures with ease.
Can I create an electronic signature for the wwwpdffillercom391195282-international 40 nonrefundable application in Chrome?
You certainly can. You get not just a feature-rich PDF editor and fillable form builder with pdfFiller, but also a robust e-signature solution that you can add right to your Chrome browser. You may use our addon to produce a legally enforceable eSignature by typing, sketching, or photographing your signature with your webcam. Choose your preferred method and eSign your wwwpdffillercom391195282-international 40 nonrefundable application in minutes.
How do I fill out the wwwpdffillercom391195282-international 40 nonrefundable application form on my smartphone?
Use the pdfFiller mobile app to complete and sign wwwpdffillercom391195282-international 40 nonrefundable application on your mobile device. Visit our web page (https://edit-pdf-ios-android.pdffiller.com/) to learn more about our mobile applications, the capabilities you’ll have access to, and the steps to take to get up and running.
What is wwwpdffillercom391195282-international 40 nonrefundable application?
The wwwpdffillercom391195282-international 40 nonrefundable application is a form that needs to be filled out and submitted along with a nonrefundable fee for international applicants.
Who is required to file wwwpdffillercom391195282-international 40 nonrefundable application?
International applicants who are seeking a particular service or benefit are required to file the wwwpdffillercom391195282-international 40 nonrefundable application.
How to fill out wwwpdffillercom391195282-international 40 nonrefundable application?
To fill out the wwwpdffillercom391195282-international 40 nonrefundable application, applicants need to provide accurate and relevant information requested in the form.
What is the purpose of wwwpdffillercom391195282-international 40 nonrefundable application?
The purpose of the wwwpdffillercom391195282-international 40 nonrefundable application is to collect necessary information from international applicants for processing their requests.
What information must be reported on wwwpdffillercom391195282-international 40 nonrefundable application?
The wwwpdffillercom391195282-international 40 nonrefundable application may require information such as personal details, contact information, purpose of application, and any supporting documents.
Fill out your wwwpdffillercom391195282-international 40 nonrefundable application online with pdfFiller!
pdfFiller is an end-to-end solution for managing, creating, and editing documents and forms in the cloud. Save time and hassle by preparing your tax forms online.
wwwpdffillercom391195282-International 40 Nonrefundable Application is not the form you're looking for?Search for another form here.
Relevant keywords
Related Forms
If you believe that this page should be taken down, please follow our DMCA take down process
here
.
This form may include fields for payment information. Data entered in these fields is not covered by PCI DSS compliance.