Get the free Architectural Processing and Inspections for Home MortgageArchitectural Processing a...
Show details
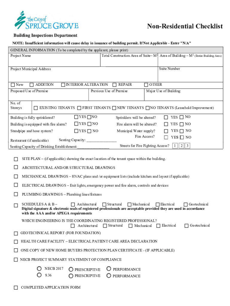
Nonresidential Checklist Building Inspections Department NOTE: Insufficient information will cause delay in issuance of building permit. If Not Applicable Enter \” N/A\” GENERAL INFORMATION (To
We are not affiliated with any brand or entity on this form
Get, Create, Make and Sign architectural processing and inspections
Edit your architectural processing and inspections form online
Type text, complete fillable fields, insert images, highlight or blackout data for discretion, add comments, and more.
Add your legally-binding signature
Draw or type your signature, upload a signature image, or capture it with your digital camera.
Share your form instantly
Email, fax, or share your architectural processing and inspections form via URL. You can also download, print, or export forms to your preferred cloud storage service.
How to edit architectural processing and inspections online
Here are the steps you need to follow to get started with our professional PDF editor:
1
Set up an account. If you are a new user, click Start Free Trial and establish a profile.
2
Upload a document. Select Add New on your Dashboard and transfer a file into the system in one of the following ways: by uploading it from your device or importing from the cloud, web, or internal mail. Then, click Start editing.
3
Edit architectural processing and inspections. Rearrange and rotate pages, add new and changed texts, add new objects, and use other useful tools. When you're done, click Done. You can use the Documents tab to merge, split, lock, or unlock your files.
4
Save your file. Select it from your records list. Then, click the right toolbar and select one of the various exporting options: save in numerous formats, download as PDF, email, or cloud.
The use of pdfFiller makes dealing with documents straightforward. Try it right now!
Uncompromising security for your PDF editing and eSignature needs
Your private information is safe with pdfFiller. We employ end-to-end encryption, secure cloud storage, and advanced access control to protect your documents and maintain regulatory compliance.
How to fill out architectural processing and inspections
How to fill out architectural processing and inspections
01
Begin by gathering all necessary documentation and permits required for the architectural processing and inspections.
02
Review the architectural plans and ensure they comply with building codes and regulations.
03
Fill out the necessary application forms for architectural processing and inspections.
04
Submit the completed application forms along with the required documentation to the appropriate authorities.
05
Pay any applicable fees for the architectural processing and inspections.
06
Await approval from the authorities and schedule the necessary inspections.
07
Cooperate with the inspectors during the inspection process and address any issues or concerns raised by them.
08
Make any necessary adjustments or modifications to the architectural plans as advised by the inspectors.
09
Once all inspections are successfully completed and approved, obtain the necessary permits for construction or renovation.
10
Keep a record of all completed architectural processing and inspections for future reference.
Who needs architectural processing and inspections?
01
Architectural processing and inspections are required by individuals or companies who are planning to construct or renovate buildings or structures.
02
This includes homeowners, developers, contractors, architects, and anyone involved in the construction industry.
03
Architectural processing ensures that the proposed plans and designs meet building codes, safety standards, and other regulations.
04
Inspections during and after construction help ensure that the work is being done correctly and in compliance with approved plans.
05
Ultimately, anyone who wants to ensure the quality and compliance of their construction project needs architectural processing and inspections.
Fill
form
: Try Risk Free
For pdfFiller’s FAQs
Below is a list of the most common customer questions. If you can’t find an answer to your question, please don’t hesitate to reach out to us.
How can I send architectural processing and inspections for eSignature?
Once you are ready to share your architectural processing and inspections, you can easily send it to others and get the eSigned document back just as quickly. Share your PDF by email, fax, text message, or USPS mail, or notarize it online. You can do all of this without ever leaving your account.
Can I create an electronic signature for the architectural processing and inspections in Chrome?
You certainly can. You get not just a feature-rich PDF editor and fillable form builder with pdfFiller, but also a robust e-signature solution that you can add right to your Chrome browser. You may use our addon to produce a legally enforceable eSignature by typing, sketching, or photographing your signature with your webcam. Choose your preferred method and eSign your architectural processing and inspections in minutes.
How do I edit architectural processing and inspections on an iOS device?
Use the pdfFiller mobile app to create, edit, and share architectural processing and inspections from your iOS device. Install it from the Apple Store in seconds. You can benefit from a free trial and choose a subscription that suits your needs.
What is architectural processing and inspections?
Architectural processing and inspections involve reviewing and evaluating the design, construction, and safety of buildings.
Who is required to file architectural processing and inspections?
Property owners, developers, architects, and contractors may be required to file architectural processing and inspections.
How to fill out architectural processing and inspections?
Architectural processing and inspections forms are typically filled out with details about the building's design, construction materials, and safety measures.
What is the purpose of architectural processing and inspections?
The purpose of architectural processing and inspections is to ensure that buildings are constructed safely and in compliance with local building codes.
What information must be reported on architectural processing and inspections?
Information such as building plans, structural specifications, construction materials, and safety features must be reported on architectural processing and inspections forms.
Fill out your architectural processing and inspections online with pdfFiller!
pdfFiller is an end-to-end solution for managing, creating, and editing documents and forms in the cloud. Save time and hassle by preparing your tax forms online.
Architectural Processing And Inspections is not the form you're looking for?Search for another form here.
Relevant keywords
Related Forms
If you believe that this page should be taken down, please follow our DMCA take down process
here
.
This form may include fields for payment information. Data entered in these fields is not covered by PCI DSS compliance.