Get the free Public Works - RESIDENTIAL WATER FIXTURE COUNT FORM
Show details
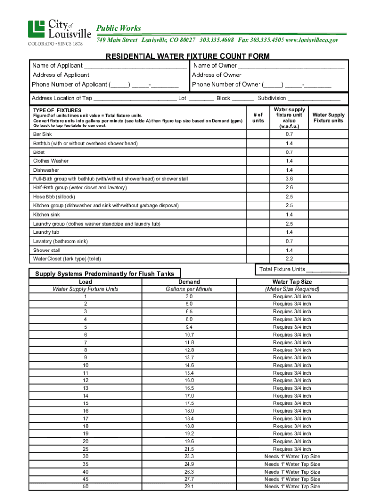
Public Works 749 Main Street Louisville, CO 80027 303.335.4608 Fax 303.335.4505 www.louisvilleco.govRESIDENTIAL WATER FIXTURE COUNT FORM Name of Applicant ___ Name of Owner ___ Address of Applicant
We are not affiliated with any brand or entity on this form
Get, Create, Make and Sign public works - residential
Edit your public works - residential form online
Type text, complete fillable fields, insert images, highlight or blackout data for discretion, add comments, and more.
Add your legally-binding signature
Draw or type your signature, upload a signature image, or capture it with your digital camera.
Share your form instantly
Email, fax, or share your public works - residential form via URL. You can also download, print, or export forms to your preferred cloud storage service.
How to edit public works - residential online
To use the services of a skilled PDF editor, follow these steps below:
1
Log in to your account. Start Free Trial and sign up a profile if you don't have one.
2
Upload a file. Select Add New on your Dashboard and upload a file from your device or import it from the cloud, online, or internal mail. Then click Edit.
3
Edit public works - residential. Rearrange and rotate pages, add new and changed texts, add new objects, and use other useful tools. When you're done, click Done. You can use the Documents tab to merge, split, lock, or unlock your files.
4
Get your file. Select your file from the documents list and pick your export method. You may save it as a PDF, email it, or upload it to the cloud.
It's easier to work with documents with pdfFiller than you could have ever thought. You may try it out for yourself by signing up for an account.
Uncompromising security for your PDF editing and eSignature needs
Your private information is safe with pdfFiller. We employ end-to-end encryption, secure cloud storage, and advanced access control to protect your documents and maintain regulatory compliance.
How to fill out public works - residential
How to fill out public works - residential
01
Step 1: Begin by gathering all the necessary documents and information about the residential project, such as building plans, permits, and property details.
02
Step 2: Fill out the required forms provided by the local government or municipality. These forms usually include information about the property owner, project description, and estimated timeline.
03
Step 3: Provide accurate and detailed information about the proposed construction or renovation work, including the type of work, materials to be used, and any special requirements.
04
Step 4: Double-check all the filled-out forms for any errors or missing information before submitting them. Incomplete or incorrect forms may cause delays in the approval process.
05
Step 5: Submit the completed forms, along with any supporting documents and payments, to the appropriate government department or agency responsible for public works.
06
Step 6: Wait for the review and approval process to be completed. This may involve inspections, evaluations, and assessments of the proposed project.
07
Step 7: Once the public works - residential application is approved, you will receive a notification or permit allowing you to proceed with the construction or renovation work.
08
Step 8: Make sure to adhere to the approved plans, guidelines, and regulations during the entire project timeline.
09
Step 9: If any changes or modifications are required during the construction process, consult with the local government or municipality and follow the necessary procedures.
10
Step 10: Upon completion of the residential public works, inform the local government or municipality for any final inspections or certifications required.
Who needs public works - residential?
01
Public works - residential is needed by individuals or organizations planning to undertake construction or renovation projects for residential properties.
02
This may include homeowners, developers, contractors, or any other party involved in the residential construction industry.
03
Public works - residential may be required for new construction projects, additions or expansions to existing homes, remodeling or renovation projects, and other similar residential developments.
04
It ensures that the construction or renovation work meets the necessary regulations, safety standards, and environmental requirements set by the local government or municipality.
Fill
form
: Try Risk Free
For pdfFiller’s FAQs
Below is a list of the most common customer questions. If you can’t find an answer to your question, please don’t hesitate to reach out to us.
How do I execute public works - residential online?
pdfFiller has made it easy to fill out and sign public works - residential. You can use the solution to change and move PDF content, add fields that can be filled in, and sign the document electronically. Start a free trial of pdfFiller, the best tool for editing and filling in documents.
How do I edit public works - residential in Chrome?
Install the pdfFiller Google Chrome Extension in your web browser to begin editing public works - residential and other documents right from a Google search page. When you examine your documents in Chrome, you may make changes to them. With pdfFiller, you can create fillable documents and update existing PDFs from any internet-connected device.
How do I complete public works - residential on an Android device?
Use the pdfFiller mobile app to complete your public works - residential on an Android device. The application makes it possible to perform all needed document management manipulations, like adding, editing, and removing text, signing, annotating, and more. All you need is your smartphone and an internet connection.
What is public works - residential?
Public works - residential refers to construction projects that involve building or improving residential properties, such as houses, apartments, or condos.
Who is required to file public works - residential?
Contractors and subcontractors working on residential construction projects are required to file public works - residential.
How to fill out public works - residential?
To fill out public works - residential, contractors and subcontractors must provide information about the project, including the address, type of work, and number of workers.
What is the purpose of public works - residential?
The purpose of public works - residential is to ensure that workers are paid fair wages and are provided with safe working conditions on residential construction projects.
What information must be reported on public works - residential?
Information that must be reported on public works - residential includes project details, the prevailing wage rate, and the number of hours worked by each employee.
Fill out your public works - residential online with pdfFiller!
pdfFiller is an end-to-end solution for managing, creating, and editing documents and forms in the cloud. Save time and hassle by preparing your tax forms online.
Public Works - Residential is not the form you're looking for?Search for another form here.
Relevant keywords
Related Forms
If you believe that this page should be taken down, please follow our DMCA take down process
here
.
This form may include fields for payment information. Data entered in these fields is not covered by PCI DSS compliance.