Get the free ELEVATION CERTIFICATE c
Show details
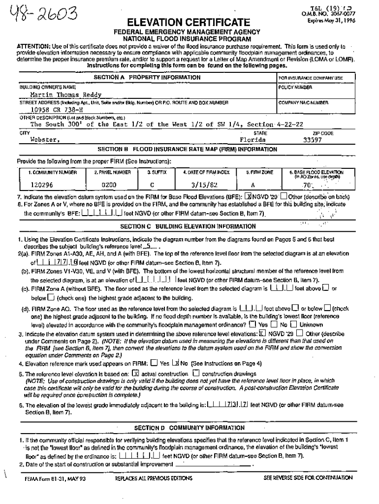
T&L (19)l;:)O.M.B. NO. 3067.0077Expires May 31, 1996ELEVATION CERTIFICATE FEDERAL EMERGENCY MANAGEMENT AGENCY NATIONAL FLOOD INSURANCE PROGRAMATTENTION: Use of this certificate does not provide a
We are not affiliated with any brand or entity on this form
Get, Create, Make and Sign elevation certificate c
Edit your elevation certificate c form online
Type text, complete fillable fields, insert images, highlight or blackout data for discretion, add comments, and more.
Add your legally-binding signature
Draw or type your signature, upload a signature image, or capture it with your digital camera.
Share your form instantly
Email, fax, or share your elevation certificate c form via URL. You can also download, print, or export forms to your preferred cloud storage service.
Editing elevation certificate c online
Here are the steps you need to follow to get started with our professional PDF editor:
1
Set up an account. If you are a new user, click Start Free Trial and establish a profile.
2
Simply add a document. Select Add New from your Dashboard and import a file into the system by uploading it from your device or importing it via the cloud, online, or internal mail. Then click Begin editing.
3
Edit elevation certificate c. Add and replace text, insert new objects, rearrange pages, add watermarks and page numbers, and more. Click Done when you are finished editing and go to the Documents tab to merge, split, lock or unlock the file.
4
Get your file. Select your file from the documents list and pick your export method. You may save it as a PDF, email it, or upload it to the cloud.
Dealing with documents is simple using pdfFiller. Try it right now!
Uncompromising security for your PDF editing and eSignature needs
Your private information is safe with pdfFiller. We employ end-to-end encryption, secure cloud storage, and advanced access control to protect your documents and maintain regulatory compliance.
How to fill out elevation certificate c
How to fill out elevation certificate c
01
Obtain an elevation certificate form from your local government or surveyor.
02
Fill out the relevant information on the elevation certificate form, such as the property address, owner's name, and surveyor's information.
03
Gather necessary data for the elevation certificate, including benchmark information, flood zone classification, and building information.
04
Hire a licensed surveyor to survey the property and determine the elevation of the building and surrounding area.
05
Provide the surveyor with any additional documents or information required to complete the elevation certificate, such as previous flood insurance claims or construction plans.
06
Review the completed elevation certificate for accuracy and make any necessary corrections or additions.
07
Submit the elevation certificate to the relevant authority or insurance company, as required.
08
Keep a copy of the elevation certificate for your records and provide copies to any interested parties, such as insurance agents or mortgage lenders.
Who needs elevation certificate c?
01
Property owners who are located in flood-prone areas or areas with specific building regulations may need elevation certificate C.
02
Insurance companies may require an elevation certificate C to determine appropriate flood insurance premiums for a property.
03
Mortgage lenders may request an elevation certificate C to assess the potential flood risk of a property before approving a mortgage.
04
Government agencies involved in floodplain management may need elevation certificates to update flood maps and assess flood risks in the area.
Fill
form
: Try Risk Free
For pdfFiller’s FAQs
Below is a list of the most common customer questions. If you can’t find an answer to your question, please don’t hesitate to reach out to us.
How can I modify elevation certificate c without leaving Google Drive?
People who need to keep track of documents and fill out forms quickly can connect PDF Filler to their Google Docs account. This means that they can make, edit, and sign documents right from their Google Drive. Make your elevation certificate c into a fillable form that you can manage and sign from any internet-connected device with this add-on.
How can I send elevation certificate c for eSignature?
elevation certificate c is ready when you're ready to send it out. With pdfFiller, you can send it out securely and get signatures in just a few clicks. PDFs can be sent to you by email, text message, fax, USPS mail, or notarized on your account. You can do this right from your account. Become a member right now and try it out for yourself!
How do I execute elevation certificate c online?
pdfFiller has made it easy to fill out and sign elevation certificate c. You can use the solution to change and move PDF content, add fields that can be filled in, and sign the document electronically. Start a free trial of pdfFiller, the best tool for editing and filling in documents.
What is elevation certificate c?
Elevation Certificate C is a document that provides important information about a property's elevation in relation to flood zones.
Who is required to file elevation certificate c?
Property owners in areas prone to flooding or those applying for flood insurance may be required to file Elevation Certificate C.
How to fill out elevation certificate c?
Elevation Certificate C should be filled out by a licensed surveyor or engineer who will assess the property's elevation and complete the necessary information.
What is the purpose of elevation certificate c?
The purpose of Elevation Certificate C is to determine a property's risk of flooding and to establish proper insurance rates.
What information must be reported on elevation certificate c?
Elevation Certificate C must include details such as the property's elevation, flood zone designation, and other relevant information related to flood risk.
Fill out your elevation certificate c online with pdfFiller!
pdfFiller is an end-to-end solution for managing, creating, and editing documents and forms in the cloud. Save time and hassle by preparing your tax forms online.
Elevation Certificate C is not the form you're looking for?Search for another form here.
Relevant keywords
Related Forms
If you believe that this page should be taken down, please follow our DMCA take down process
here
.
This form may include fields for payment information. Data entered in these fields is not covered by PCI DSS compliance.