Get the free MECHANICAL PERMIT APPLICATION RESIDENTIAL AND COMMERCIAL PROPERTIES ARE ...
Show details
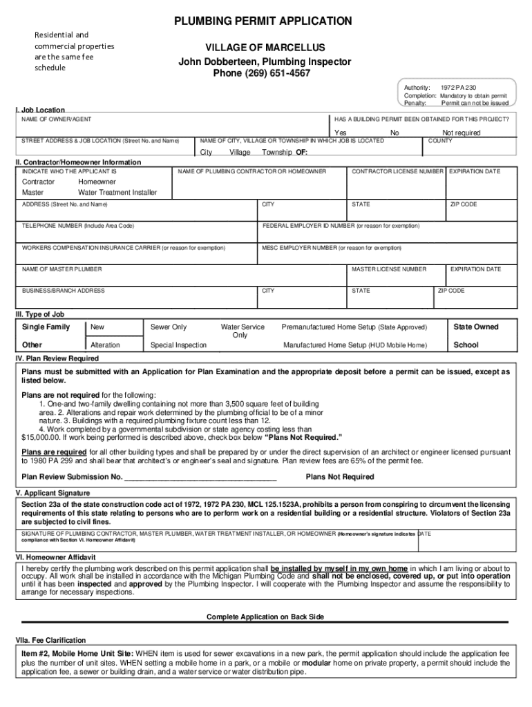
PLUMBING PERMIT APPLICATION
Residential and
commercial properties
are the same fee
scheduleVILLAGE OF MARCELLUS
John Dobberteen, Plumbing Inspector
Phone (269) 6514567
Authority:
1972 PA 230
Completion:
We are not affiliated with any brand or entity on this form
Get, Create, Make and Sign mechanical permit application residential
Edit your mechanical permit application residential form online
Type text, complete fillable fields, insert images, highlight or blackout data for discretion, add comments, and more.
Add your legally-binding signature
Draw or type your signature, upload a signature image, or capture it with your digital camera.
Share your form instantly
Email, fax, or share your mechanical permit application residential form via URL. You can also download, print, or export forms to your preferred cloud storage service.
How to edit mechanical permit application residential online
Use the instructions below to start using our professional PDF editor:
1
Check your account. It's time to start your free trial.
2
Upload a file. Select Add New on your Dashboard and upload a file from your device or import it from the cloud, online, or internal mail. Then click Edit.
3
Edit mechanical permit application residential. Rearrange and rotate pages, insert new and alter existing texts, add new objects, and take advantage of other helpful tools. Click Done to apply changes and return to your Dashboard. Go to the Documents tab to access merging, splitting, locking, or unlocking functions.
4
Save your file. Select it from your list of records. Then, move your cursor to the right toolbar and choose one of the exporting options. You can save it in multiple formats, download it as a PDF, send it by email, or store it in the cloud, among other things.
It's easier to work with documents with pdfFiller than you could have believed. You can sign up for an account to see for yourself.
Uncompromising security for your PDF editing and eSignature needs
Your private information is safe with pdfFiller. We employ end-to-end encryption, secure cloud storage, and advanced access control to protect your documents and maintain regulatory compliance.
How to fill out mechanical permit application residential
How to fill out mechanical permit application residential
01
To fill out a mechanical permit application for residential purposes, follow these steps:
02
Start by obtaining the necessary documents and forms required for the application. This may include the application form, building plans, and any additional supporting documents.
03
Fill out the application form accurately and completely. Provide all the requested information, including details about the property, project scope, and contact information.
04
Attach the building plans and other supporting documents as specified by the application guidelines. These documents may include specifications for mechanical systems, HVAC systems, or any other relevant details.
05
Ensure that all the information provided is accurate and up to date. Double-check the form and attached documents for any errors or missing information.
06
Review any specific requirements or regulations related to mechanical permits in your area. This may involve consulting with local authorities or reviewing the applicable building codes.
07
Submit the completed application form and attached documents to the designated authority. This may be a local building department or permit office.
08
Pay any required fees associated with the mechanical permit application. The amount and payment method will vary depending on your location and the scope of your project.
09
Wait for the application to be reviewed and processed by the authority. This may take some time, so be patient and follow up if necessary.
10
Once the permit application is approved, you will receive the permit. Make sure to keep a copy of the permit on-site during the construction or installation process.
11
Finally, comply with any additional regulations or inspections required during the construction or installation of the mechanical systems. This may include scheduling inspections or providing documentation as needed.
Who needs mechanical permit application residential?
01
Anyone planning to undertake residential mechanical work or modifications that involve the installation or alteration of mechanical systems, such as heating, ventilation, or air conditioning, would need a mechanical permit application for residential purposes. This applies to homeowners, contractors, builders, or individuals involved in construction or renovations projects that involve mechanical systems in residential properties.
Fill
form
: Try Risk Free
For pdfFiller’s FAQs
Below is a list of the most common customer questions. If you can’t find an answer to your question, please don’t hesitate to reach out to us.
Can I sign the mechanical permit application residential electronically in Chrome?
Yes. With pdfFiller for Chrome, you can eSign documents and utilize the PDF editor all in one spot. Create a legally enforceable eSignature by sketching, typing, or uploading a handwritten signature image. You may eSign your mechanical permit application residential in seconds.
How can I edit mechanical permit application residential on a smartphone?
You can easily do so with pdfFiller's apps for iOS and Android devices, which can be found at the Apple Store and the Google Play Store, respectively. You can use them to fill out PDFs. We have a website where you can get the app, but you can also get it there. When you install the app, log in, and start editing mechanical permit application residential, you can start right away.
How do I fill out mechanical permit application residential on an Android device?
Use the pdfFiller mobile app and complete your mechanical permit application residential and other documents on your Android device. The app provides you with all essential document management features, such as editing content, eSigning, annotating, sharing files, etc. You will have access to your documents at any time, as long as there is an internet connection.
What is mechanical permit application residential?
A mechanical permit application residential is a form that needs to be filled out when installing or making changes to mechanical systems in a residential property, such as HVAC systems or water heaters.
Who is required to file mechanical permit application residential?
Homeowners or contractors who are making installations or alterations to mechanical systems in a residential property are required to file a mechanical permit application residential.
How to fill out mechanical permit application residential?
To fill out a mechanical permit application residential, you need to provide information about the project, such as the type of mechanical work being done, the specifications of the systems being installed, and contact information for the homeowner or contractor.
What is the purpose of mechanical permit application residential?
The purpose of a mechanical permit application residential is to ensure that the mechanical systems being installed in a residential property meet safety and code requirements.
What information must be reported on mechanical permit application residential?
Information such as the type of mechanical work being done, the specifications of the systems being installed, and contact information for the homeowner or contractor must be reported on a mechanical permit application residential.
Fill out your mechanical permit application residential online with pdfFiller!
pdfFiller is an end-to-end solution for managing, creating, and editing documents and forms in the cloud. Save time and hassle by preparing your tax forms online.
Mechanical Permit Application Residential is not the form you're looking for?Search for another form here.
Relevant keywords
Related Forms
If you believe that this page should be taken down, please follow our DMCA take down process
here
.
This form may include fields for payment information. Data entered in these fields is not covered by PCI DSS compliance.