Get the free westbrookvillage.orgeventarchitectural-controlArchitectural Control Committee - West...
Show details
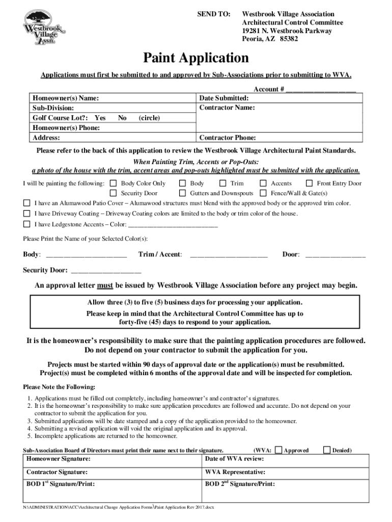
SEND TO:Westbrook Village Association Architectural Control Committee 19281 N. Westbrook Parkway Peoria, AZ 85382Paint Application Applications must first be submitted to and approved by Associations
We are not affiliated with any brand or entity on this form
Get, Create, Make and Sign westbrookvillageorgeventarchitectural-controlarchitectural control committee
Edit your westbrookvillageorgeventarchitectural-controlarchitectural control committee form online
Type text, complete fillable fields, insert images, highlight or blackout data for discretion, add comments, and more.
Add your legally-binding signature
Draw or type your signature, upload a signature image, or capture it with your digital camera.
Share your form instantly
Email, fax, or share your westbrookvillageorgeventarchitectural-controlarchitectural control committee form via URL. You can also download, print, or export forms to your preferred cloud storage service.
Editing westbrookvillageorgeventarchitectural-controlarchitectural control committee online
Follow the steps down below to benefit from the PDF editor's expertise:
1
Sign into your account. If you don't have a profile yet, click Start Free Trial and sign up for one.
2
Prepare a file. Use the Add New button. Then upload your file to the system from your device, importing it from internal mail, the cloud, or by adding its URL.
3
Edit westbrookvillageorgeventarchitectural-controlarchitectural control committee. Rearrange and rotate pages, add new and changed texts, add new objects, and use other useful tools. When you're done, click Done. You can use the Documents tab to merge, split, lock, or unlock your files.
4
Get your file. Select the name of your file in the docs list and choose your preferred exporting method. You can download it as a PDF, save it in another format, send it by email, or transfer it to the cloud.
Dealing with documents is always simple with pdfFiller.
Uncompromising security for your PDF editing and eSignature needs
Your private information is safe with pdfFiller. We employ end-to-end encryption, secure cloud storage, and advanced access control to protect your documents and maintain regulatory compliance.
How to fill out westbrookvillageorgeventarchitectural-controlarchitectural control committee
How to fill out westbrookvillageorgeventarchitectural-controlarchitectural control committee
01
Obtain a copy of the architectural control guidelines from the Westbrook Village Homeowners Association.
02
Familiarize yourself with the specific requirements and restrictions outlined in the guidelines.
03
Complete the architectural control application form, which can be downloaded from the Westbrook Village Homeowners Association website.
04
Provide all necessary documentation, such as detailed plans, drawings, and material samples, as specified in the application form.
05
Submit the completed application and supporting documents to the architectural control committee for review.
06
Pay any applicable fees as outlined in the guidelines.
07
Await the decision of the architectural control committee, which will typically notify you within a specified timeframe.
08
If approved, proceed with the proposed architectural changes or development according to the guidelines.
09
If denied, revise the plans or address any concerns raised by the committee and resubmit the application for further review.
Who needs westbrookvillageorgeventarchitectural-controlarchitectural control committee?
01
The Westbrook Village Homeowners Association requires the architectural control committee to ensure that residents adhere to the established guidelines and maintain the architectural integrity of the community.
02
Homeowners and property owners within the Westbrook Village community who plan to make any architectural changes, alterations, or developments on their property need to go through the architectural control committee for approval.
Fill
form
: Try Risk Free
For pdfFiller’s FAQs
Below is a list of the most common customer questions. If you can’t find an answer to your question, please don’t hesitate to reach out to us.
How do I edit westbrookvillageorgeventarchitectural-controlarchitectural control committee in Chrome?
Install the pdfFiller Google Chrome Extension in your web browser to begin editing westbrookvillageorgeventarchitectural-controlarchitectural control committee and other documents right from a Google search page. When you examine your documents in Chrome, you may make changes to them. With pdfFiller, you can create fillable documents and update existing PDFs from any internet-connected device.
Can I create an electronic signature for the westbrookvillageorgeventarchitectural-controlarchitectural control committee in Chrome?
Yes. With pdfFiller for Chrome, you can eSign documents and utilize the PDF editor all in one spot. Create a legally enforceable eSignature by sketching, typing, or uploading a handwritten signature image. You may eSign your westbrookvillageorgeventarchitectural-controlarchitectural control committee in seconds.
How can I fill out westbrookvillageorgeventarchitectural-controlarchitectural control committee on an iOS device?
Install the pdfFiller app on your iOS device to fill out papers. Create an account or log in if you already have one. After registering, upload your westbrookvillageorgeventarchitectural-controlarchitectural control committee. You may now use pdfFiller's advanced features like adding fillable fields and eSigning documents from any device, anywhere.
What is westbrookvillageorgeventarchitectural-controlarchitectural control committee?
The architectural control committee in Westbrook Village is responsible for reviewing and approving changes to the exterior of properties within the community to ensure architectural harmony.
Who is required to file westbrookvillageorgeventarchitectural-controlarchitectural control committee?
Homeowners or residents making exterior changes to their properties in Westbrook Village are required to file with the architectural control committee.
How to fill out westbrookvillageorgeventarchitectural-controlarchitectural control committee?
To fill out the architectural control committee form, homeowners must provide details about the proposed exterior changes, including plans and materials.
What is the purpose of westbrookvillageorgeventarchitectural-controlarchitectural control committee?
The purpose of the architectural control committee in Westbrook Village is to maintain the aesthetic quality and property values of the community.
What information must be reported on westbrookvillageorgeventarchitectural-controlarchitectural control committee?
The architectural control committee form must include details about the proposed exterior changes, such as design plans, materials, and color choices.
Fill out your westbrookvillageorgeventarchitectural-controlarchitectural control committee online with pdfFiller!
pdfFiller is an end-to-end solution for managing, creating, and editing documents and forms in the cloud. Save time and hassle by preparing your tax forms online.
Westbrookvillageorgeventarchitectural-Controlarchitectural Control Committee is not the form you're looking for?Search for another form here.
Relevant keywords
Related Forms
If you believe that this page should be taken down, please follow our DMCA take down process
here
.
This form may include fields for payment information. Data entered in these fields is not covered by PCI DSS compliance.