
Get the free Online NFS Form 10-900 RECEIVED 2280 United States Department ... - parks ny
Show details
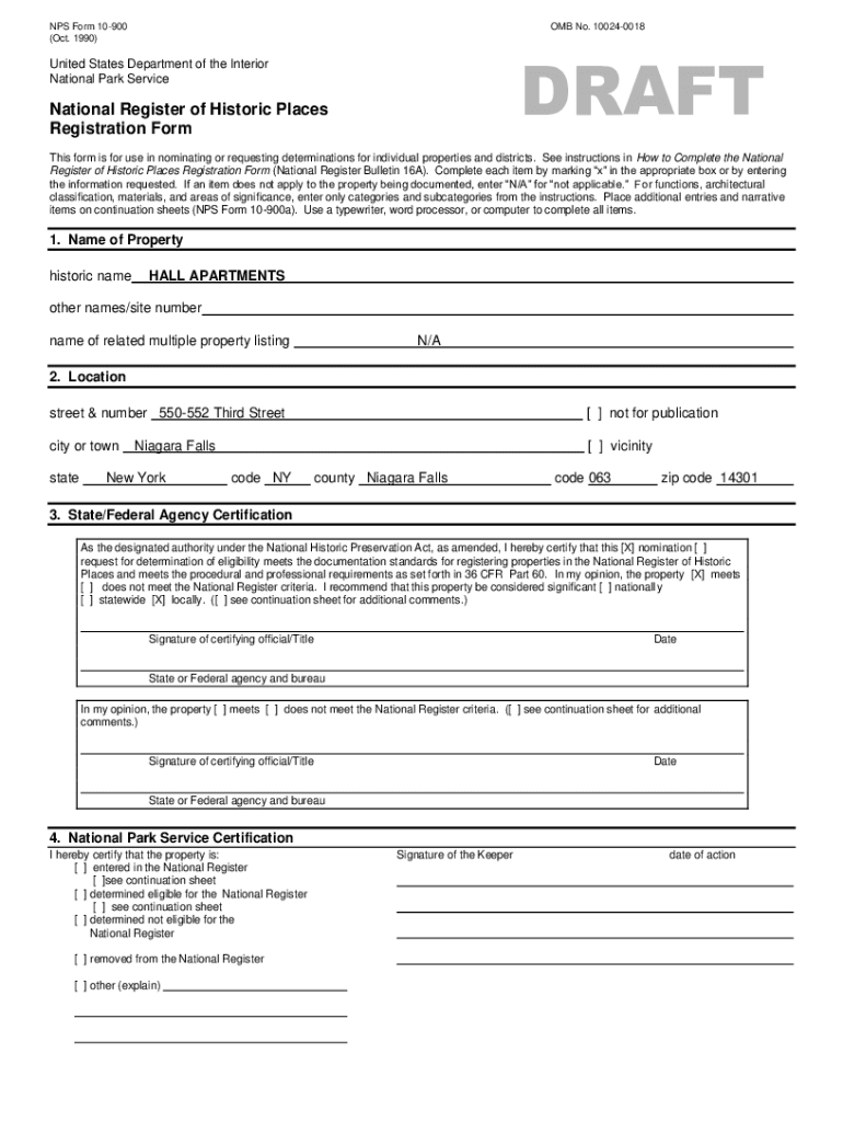
NPS Form 10900 (Oct. 1990)OMB No. 100240018DRAFTUnited States Department of the Interior National Park ServiceNational Register of Historic Places Registration Forms form is for use in nominating
We are not affiliated with any brand or entity on this form
Get, Create, Make and Sign online nfs form 10-900

Edit your online nfs form 10-900 form online
Type text, complete fillable fields, insert images, highlight or blackout data for discretion, add comments, and more.

Add your legally-binding signature
Draw or type your signature, upload a signature image, or capture it with your digital camera.

Share your form instantly
Email, fax, or share your online nfs form 10-900 form via URL. You can also download, print, or export forms to your preferred cloud storage service.
Editing online nfs form 10-900 online
To use our professional PDF editor, follow these steps:
1
Log into your account. If you don't have a profile yet, click Start Free Trial and sign up for one.
2
Prepare a file. Use the Add New button to start a new project. Then, using your device, upload your file to the system by importing it from internal mail, the cloud, or adding its URL.
3
Edit online nfs form 10-900. Rearrange and rotate pages, insert new and alter existing texts, add new objects, and take advantage of other helpful tools. Click Done to apply changes and return to your Dashboard. Go to the Documents tab to access merging, splitting, locking, or unlocking functions.
4
Get your file. Select your file from the documents list and pick your export method. You may save it as a PDF, email it, or upload it to the cloud.
pdfFiller makes dealing with documents a breeze. Create an account to find out!
Uncompromising security for your PDF editing and eSignature needs
Your private information is safe with pdfFiller. We employ end-to-end encryption, secure cloud storage, and advanced access control to protect your documents and maintain regulatory compliance.
How to fill out online nfs form 10-900

How to fill out online nfs form 10-900
01
To fill out the online nfs form 10-900, follow these steps:
02
Access the website where the form is located.
03
Enter your personal information such as your name, address, and contact details.
04
Provide any required identification or supporting documents.
05
Fill in the relevant sections of the form, including any specific questions or prompts.
06
Review the completed form for accuracy and completeness.
07
Submit the form online.
08
Wait for a confirmation or acknowledgement of receipt, if applicable.
09
Keep a copy of the submitted form for your records.
Who needs online nfs form 10-900?
01
Online nfs form 10-900 is needed by individuals or organizations who are required to complete this specific form for a certain purpose. The specific target audience for this form may vary depending on the requirements set by the organization or entity requesting the form to be filled out.
Fill
form
: Try Risk Free
For pdfFiller’s FAQs
Below is a list of the most common customer questions. If you can’t find an answer to your question, please don’t hesitate to reach out to us.
How do I modify my online nfs form 10-900 in Gmail?
You may use pdfFiller's Gmail add-on to change, fill out, and eSign your online nfs form 10-900 as well as other documents directly in your inbox by using the pdfFiller add-on for Gmail. pdfFiller for Gmail may be found on the Google Workspace Marketplace. Use the time you would have spent dealing with your papers and eSignatures for more vital tasks instead.
How do I edit online nfs form 10-900 online?
pdfFiller not only lets you change the content of your files, but you can also change the number and order of pages. Upload your online nfs form 10-900 to the editor and make any changes in a few clicks. The editor lets you black out, type, and erase text in PDFs. You can also add images, sticky notes, and text boxes, as well as many other things.
How do I edit online nfs form 10-900 on an iOS device?
You certainly can. You can quickly edit, distribute, and sign online nfs form 10-900 on your iOS device with the pdfFiller mobile app. Purchase it from the Apple Store and install it in seconds. The program is free, but in order to purchase a subscription or activate a free trial, you must first establish an account.
What is online nfs form 10-900?
Online nfs form 10-900 is a form used to report foreign direct investment in the United States.
Who is required to file online nfs form 10-900?
Any person or entity who has foreign direct investment in the United States is required to file online nfs form 10-900.
How to fill out online nfs form 10-900?
Online nfs form 10-900 can be filled out electronically on the Bureau of Economic Analysis website.
What is the purpose of online nfs form 10-900?
The purpose of online nfs form 10-900 is to track and monitor foreign direct investment in the United States.
What information must be reported on online nfs form 10-900?
Information such as the amount of foreign direct investment, country of origin, industry, and ownership percentage must be reported on online nfs form 10-900.
Fill out your online nfs form 10-900 online with pdfFiller!
pdfFiller is an end-to-end solution for managing, creating, and editing documents and forms in the cloud. Save time and hassle by preparing your tax forms online.

Online Nfs Form 10-900 is not the form you're looking for?Search for another form here.
Relevant keywords
Related Forms
If you believe that this page should be taken down, please follow our DMCA take down process
here
.
This form may include fields for payment information. Data entered in these fields is not covered by PCI DSS compliance.