Get the free New York State Insurance Fund Procurement Unit - NYSIF
Show details
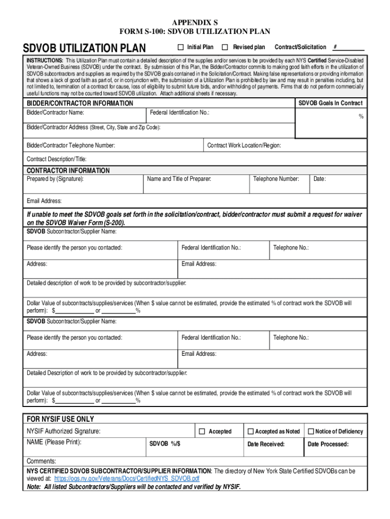
New York State Insurance Fund Procurement Unit April 5, 2018The following Q&A and updated Appendix S will serve as Amendment #2 to Naifs Request for Proposals (RFP) for Investigative Case Management
We are not affiliated with any brand or entity on this form
Get, Create, Make and Sign new york state insurance
Edit your new york state insurance form online
Type text, complete fillable fields, insert images, highlight or blackout data for discretion, add comments, and more.
Add your legally-binding signature
Draw or type your signature, upload a signature image, or capture it with your digital camera.
Share your form instantly
Email, fax, or share your new york state insurance form via URL. You can also download, print, or export forms to your preferred cloud storage service.
Editing new york state insurance online
To use the services of a skilled PDF editor, follow these steps below:
1
Set up an account. If you are a new user, click Start Free Trial and establish a profile.
2
Upload a file. Select Add New on your Dashboard and upload a file from your device or import it from the cloud, online, or internal mail. Then click Edit.
3
Edit new york state insurance. Add and change text, add new objects, move pages, add watermarks and page numbers, and more. Then click Done when you're done editing and go to the Documents tab to merge or split the file. If you want to lock or unlock the file, click the lock or unlock button.
4
Get your file. Select your file from the documents list and pick your export method. You may save it as a PDF, email it, or upload it to the cloud.
Dealing with documents is simple using pdfFiller. Try it right now!
Uncompromising security for your PDF editing and eSignature needs
Your private information is safe with pdfFiller. We employ end-to-end encryption, secure cloud storage, and advanced access control to protect your documents and maintain regulatory compliance.
How to fill out new york state insurance
How to fill out new york state insurance
01
To fill out New York State insurance, follow these steps:
02
Obtain the necessary forms for New York State insurance.
03
Fill in your personal information, such as your name, address, and contact information.
04
Provide information about the type of insurance you are applying for, such as auto insurance or health insurance.
05
Fill in the details of any vehicles or properties that need to be insured, including make, model, and VIN number for vehicles.
06
Specify the coverage and limits you require for your insurance policy.
07
Provide any additional information required by the application form, such as previous insurance history or specific health conditions.
08
Review the completed application form and ensure all information is accurate and complete.
09
Sign and date the application form.
10
Submit the filled-out application form along with any required documents or payments to the designated insurance agency or office.
Who needs new york state insurance?
01
New York State insurance is needed by anyone who meets the following criteria:
02
- Individuals who own or operate a vehicle in New York State are required to have auto insurance.
03
- Individuals who rent or own a property in New York State may need to have renters or homeowners insurance.
04
- Individuals who have health insurance coverage in New York State are required to have health insurance.
05
- Business owners in New York State may need to have liability insurance, workers' compensation insurance, or other types of insurance depending on the nature of their business.
06
- Individuals or businesses engaging in certain professions or activities, such as contractors, healthcare providers, or financial advisors, may need professional liability insurance.
07
- Individuals or businesses involved in maritime activities, such as boating or shipping, may need maritime insurance.
08
- It is recommended to consult with an insurance agent or attorney to determine the specific insurance requirements based on your situation and needs in New York State.
Fill
form
: Try Risk Free
For pdfFiller’s FAQs
Below is a list of the most common customer questions. If you can’t find an answer to your question, please don’t hesitate to reach out to us.
How can I edit new york state insurance from Google Drive?
It is possible to significantly enhance your document management and form preparation by combining pdfFiller with Google Docs. This will allow you to generate papers, amend them, and sign them straight from your Google Drive. Use the add-on to convert your new york state insurance into a dynamic fillable form that can be managed and signed using any internet-connected device.
How do I edit new york state insurance on an Android device?
The pdfFiller app for Android allows you to edit PDF files like new york state insurance. Mobile document editing, signing, and sending. Install the app to ease document management anywhere.
How do I fill out new york state insurance on an Android device?
Use the pdfFiller mobile app and complete your new york state insurance and other documents on your Android device. The app provides you with all essential document management features, such as editing content, eSigning, annotating, sharing files, etc. You will have access to your documents at any time, as long as there is an internet connection.
What is new york state insurance?
New York State insurance refers to insurance coverage that is required for individuals and businesses operating in the state of New York.
Who is required to file new york state insurance?
Individuals and businesses operating in the state of New York are required to file New York State insurance.
How to fill out new york state insurance?
New York State insurance can be filled out by submitting the required forms and information to the state insurance department.
What is the purpose of new york state insurance?
The purpose of New York State insurance is to protect individuals and businesses from financial loss due to unforeseen events.
What information must be reported on new york state insurance?
New York State insurance typically requires information about the policyholder, the type of insurance coverage, and the coverage limits.
Fill out your new york state insurance online with pdfFiller!
pdfFiller is an end-to-end solution for managing, creating, and editing documents and forms in the cloud. Save time and hassle by preparing your tax forms online.
New York State Insurance is not the form you're looking for?Search for another form here.
Relevant keywords
Related Forms
If you believe that this page should be taken down, please follow our DMCA take down process
here
.
This form may include fields for payment information. Data entered in these fields is not covered by PCI DSS compliance.