
Get the free www.pdffiller.comencatalog12 Printable partnership agreement template pdf Forms ...
Show details
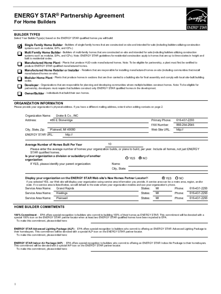
ENERGY STAR Partnership Agreement For Home Builders BUILDER TYPES Select Your Builder Type(s) based on the ENERGY STAR qualified homes you will build:Single Family Home Builder Builders of single
We are not affiliated with any brand or entity on this form
Get, Create, Make and Sign wwwpdffillercomencatalog12 printable partnership agreement

Edit your wwwpdffillercomencatalog12 printable partnership agreement form online
Type text, complete fillable fields, insert images, highlight or blackout data for discretion, add comments, and more.

Add your legally-binding signature
Draw or type your signature, upload a signature image, or capture it with your digital camera.

Share your form instantly
Email, fax, or share your wwwpdffillercomencatalog12 printable partnership agreement form via URL. You can also download, print, or export forms to your preferred cloud storage service.
How to edit wwwpdffillercomencatalog12 printable partnership agreement online
Here are the steps you need to follow to get started with our professional PDF editor:
1
Set up an account. If you are a new user, click Start Free Trial and establish a profile.
2
Simply add a document. Select Add New from your Dashboard and import a file into the system by uploading it from your device or importing it via the cloud, online, or internal mail. Then click Begin editing.
3
Edit wwwpdffillercomencatalog12 printable partnership agreement. Rearrange and rotate pages, insert new and alter existing texts, add new objects, and take advantage of other helpful tools. Click Done to apply changes and return to your Dashboard. Go to the Documents tab to access merging, splitting, locking, or unlocking functions.
4
Save your file. Select it from your records list. Then, click the right toolbar and select one of the various exporting options: save in numerous formats, download as PDF, email, or cloud.
pdfFiller makes dealing with documents a breeze. Create an account to find out!
Uncompromising security for your PDF editing and eSignature needs
Your private information is safe with pdfFiller. We employ end-to-end encryption, secure cloud storage, and advanced access control to protect your documents and maintain regulatory compliance.
Fill
form
: Try Risk Free
For pdfFiller’s FAQs
Below is a list of the most common customer questions. If you can’t find an answer to your question, please don’t hesitate to reach out to us.
How can I send wwwpdffillercomencatalog12 printable partnership agreement for eSignature?
When you're ready to share your wwwpdffillercomencatalog12 printable partnership agreement, you can swiftly email it to others and receive the eSigned document back. You may send your PDF through email, fax, text message, or USPS mail, or you can notarize it online. All of this may be done without ever leaving your account.
Can I sign the wwwpdffillercomencatalog12 printable partnership agreement electronically in Chrome?
Yes, you can. With pdfFiller, you not only get a feature-rich PDF editor and fillable form builder but a powerful e-signature solution that you can add directly to your Chrome browser. Using our extension, you can create your legally-binding eSignature by typing, drawing, or capturing a photo of your signature using your webcam. Choose whichever method you prefer and eSign your wwwpdffillercomencatalog12 printable partnership agreement in minutes.
How can I fill out wwwpdffillercomencatalog12 printable partnership agreement on an iOS device?
Install the pdfFiller app on your iOS device to fill out papers. If you have a subscription to the service, create an account or log in to an existing one. After completing the registration process, upload your wwwpdffillercomencatalog12 printable partnership agreement. You may now use pdfFiller's advanced features, such as adding fillable fields and eSigning documents, and accessing them from any device, wherever you are.
What is wwwpdffillercomencatalog12 printable partnership agreement?
wwwpdffillercomencatalog12 printable partnership agreement is a legally binding document that outlines the terms and conditions of a partnership between two or more parties.
Who is required to file wwwpdffillercomencatalog12 printable partnership agreement?
Partnerships are required to file wwwpdffillercomencatalog12 printable partnership agreement in order to establish the rights and responsibilities of each partner.
How to fill out wwwpdffillercomencatalog12 printable partnership agreement?
To fill out wwwpdffillercomencatalog12 printable partnership agreement, partners must provide their personal information, details of the partnership, and the terms agreed upon.
What is the purpose of wwwpdffillercomencatalog12 printable partnership agreement?
The purpose of wwwpdffillercomencatalog12 printable partnership agreement is to prevent misunderstandings between partners by clearly defining the terms of their partnership.
What information must be reported on wwwpdffillercomencatalog12 printable partnership agreement?
Information such as the names of the partners, the duration of the partnership, the capital contributions of each partner, and the profit-sharing arrangement must be reported on wwwpdffillercomencatalog12 printable partnership agreement.
Fill out your wwwpdffillercomencatalog12 printable partnership agreement online with pdfFiller!
pdfFiller is an end-to-end solution for managing, creating, and editing documents and forms in the cloud. Save time and hassle by preparing your tax forms online.

wwwpdffillercomencatalog12 Printable Partnership Agreement is not the form you're looking for?Search for another form here.
Relevant keywords
Related Forms
If you believe that this page should be taken down, please follow our DMCA take down process
here
.
This form may include fields for payment information. Data entered in these fields is not covered by PCI DSS compliance.