
Get the free NOI EA
Show details
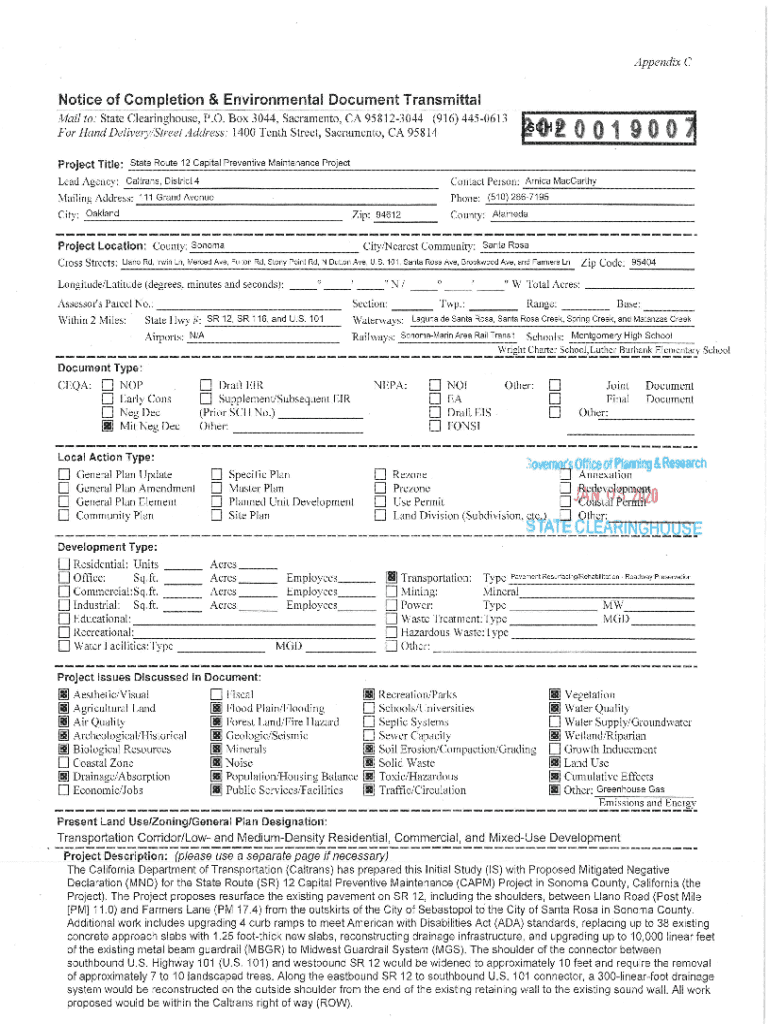
Appendix Notice of Completion & Environmental Document Transmittal,., Email to: State Clearinghouse, P.O. Box 3044, Sacramento, CA 958123044 (916) 4450613 For Hand Delivery/Street Address: 1400 Tenth
We are not affiliated with any brand or entity on this form
Get, Create, Make and Sign noi ea

Edit your noi ea form online
Type text, complete fillable fields, insert images, highlight or blackout data for discretion, add comments, and more.

Add your legally-binding signature
Draw or type your signature, upload a signature image, or capture it with your digital camera.

Share your form instantly
Email, fax, or share your noi ea form via URL. You can also download, print, or export forms to your preferred cloud storage service.
How to edit noi ea online
To use our professional PDF editor, follow these steps:
1
Register the account. Begin by clicking Start Free Trial and create a profile if you are a new user.
2
Simply add a document. Select Add New from your Dashboard and import a file into the system by uploading it from your device or importing it via the cloud, online, or internal mail. Then click Begin editing.
3
Edit noi ea. Rearrange and rotate pages, add new and changed texts, add new objects, and use other useful tools. When you're done, click Done. You can use the Documents tab to merge, split, lock, or unlock your files.
4
Save your file. Select it in the list of your records. Then, move the cursor to the right toolbar and choose one of the available exporting methods: save it in multiple formats, download it as a PDF, send it by email, or store it in the cloud.
With pdfFiller, it's always easy to work with documents.
Uncompromising security for your PDF editing and eSignature needs
Your private information is safe with pdfFiller. We employ end-to-end encryption, secure cloud storage, and advanced access control to protect your documents and maintain regulatory compliance.
How to fill out noi ea

How to fill out noi ea
01
To fill out NOI EA (Notice of Intent to Earn and Apply for Performance Credits & Electricity Accounts), follow these steps:
02
Start by opening the NOI EA form.
03
Fill in the required information, such as name, address, and contact details.
04
Provide details of the electricity account for which you intend to earn and apply for performance credits.
05
Enter the information related to the distributed energy generation system, including the equipment details, production capacity, and location.
06
Indicate whether you want to carry over a credit balance or request a payment from the electric utility.
07
Sign and date the form.
08
Submit the completed NOI EA form to the relevant authority.
09
Keep a copy of the filled-out form for your records.
Who needs noi ea?
01
NOI EA is typically needed by individuals or organizations that have installed distributed energy generation systems, such as solar panels or wind turbines, and want to earn performance credits and apply for electricity accounts.
02
It is required for those who generate renewable energy and wish to connect it to the electrical grid and receive compensation or credit for the energy produced.
Fill
form
: Try Risk Free
For pdfFiller’s FAQs
Below is a list of the most common customer questions. If you can’t find an answer to your question, please don’t hesitate to reach out to us.
How can I edit noi ea from Google Drive?
Using pdfFiller with Google Docs allows you to create, amend, and sign documents straight from your Google Drive. The add-on turns your noi ea into a dynamic fillable form that you can manage and eSign from anywhere.
Can I create an electronic signature for the noi ea in Chrome?
As a PDF editor and form builder, pdfFiller has a lot of features. It also has a powerful e-signature tool that you can add to your Chrome browser. With our extension, you can type, draw, or take a picture of your signature with your webcam to make your legally-binding eSignature. Choose how you want to sign your noi ea and you'll be done in minutes.
How can I edit noi ea on a smartphone?
The easiest way to edit documents on a mobile device is using pdfFiller’s mobile-native apps for iOS and Android. You can download those from the Apple Store and Google Play, respectively. You can learn more about the apps here. Install and log in to the application to start editing noi ea.
What is noi ea?
NOI EA stands for Notice of Intent to Establish Air or Waste Management Facility. It is a notification required by regulatory agencies before establishing certain types of facilities.
Who is required to file noi ea?
Facility owners or operators who are planning to establish air or waste management facilities are required to file NOI EA.
How to fill out noi ea?
NOI EA forms can typically be filled out online or through paper forms provided by regulatory agencies. The forms usually require information about the proposed facility and its potential environmental impact.
What is the purpose of noi ea?
The purpose of NOI EA is to notify regulatory agencies of the intent to establish a facility that may have environmental impacts, allowing them to review the proposal and potentially require additional permits or studies.
What information must be reported on noi ea?
Information required on NOI EA forms typically includes details about the facility location, type of operations, potential environmental impacts, and any pollution control measures planned.
Fill out your noi ea online with pdfFiller!
pdfFiller is an end-to-end solution for managing, creating, and editing documents and forms in the cloud. Save time and hassle by preparing your tax forms online.

Noi Ea is not the form you're looking for?Search for another form here.
Relevant keywords
Related Forms
If you believe that this page should be taken down, please follow our DMCA take down process
here
.
This form may include fields for payment information. Data entered in these fields is not covered by PCI DSS compliance.