
Get the www.pdffiller.com577442671--To-HonorableGet the free To: Honorable Chairman Jose Pepe Dia...
Show details
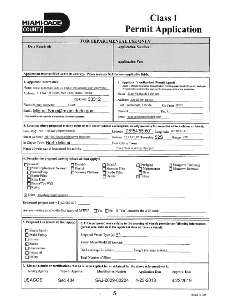
Date:December 1, 2021To:Honorable Chairman Jose Pepe Diaz and Members, Board of County CommissionersFrom:Lourdes M. Gomez, Director Department of Regulatory and Economic ResourcesSubject:Class I Permit
We are not affiliated with any brand or entity on this form
Get, Create, Make and Sign wwwpdffillercom577442671--to-honorable to honorable chairman

Edit your wwwpdffillercom577442671--to-honorable to honorable chairman form online
Type text, complete fillable fields, insert images, highlight or blackout data for discretion, add comments, and more.

Add your legally-binding signature
Draw or type your signature, upload a signature image, or capture it with your digital camera.

Share your form instantly
Email, fax, or share your wwwpdffillercom577442671--to-honorable to honorable chairman form via URL. You can also download, print, or export forms to your preferred cloud storage service.
How to edit wwwpdffillercom577442671--to-honorable to honorable chairman online
To use the services of a skilled PDF editor, follow these steps:
1
Log in. Click Start Free Trial and create a profile if necessary.
2
Prepare a file. Use the Add New button to start a new project. Then, using your device, upload your file to the system by importing it from internal mail, the cloud, or adding its URL.
3
Edit wwwpdffillercom577442671--to-honorable to honorable chairman. Text may be added and replaced, new objects can be included, pages can be rearranged, watermarks and page numbers can be added, and so on. When you're done editing, click Done and then go to the Documents tab to combine, divide, lock, or unlock the file.
4
Save your file. Select it from your list of records. Then, move your cursor to the right toolbar and choose one of the exporting options. You can save it in multiple formats, download it as a PDF, send it by email, or store it in the cloud, among other things.
It's easier to work with documents with pdfFiller than you can have ever thought. Sign up for a free account to view.
Uncompromising security for your PDF editing and eSignature needs
Your private information is safe with pdfFiller. We employ end-to-end encryption, secure cloud storage, and advanced access control to protect your documents and maintain regulatory compliance.
Fill
form
: Try Risk Free
For pdfFiller’s FAQs
Below is a list of the most common customer questions. If you can’t find an answer to your question, please don’t hesitate to reach out to us.
How can I send wwwpdffillercom577442671--to-honorable to honorable chairman for eSignature?
When you're ready to share your wwwpdffillercom577442671--to-honorable to honorable chairman, you can swiftly email it to others and receive the eSigned document back. You may send your PDF through email, fax, text message, or USPS mail, or you can notarize it online. All of this may be done without ever leaving your account.
How do I make edits in wwwpdffillercom577442671--to-honorable to honorable chairman without leaving Chrome?
Download and install the pdfFiller Google Chrome Extension to your browser to edit, fill out, and eSign your wwwpdffillercom577442671--to-honorable to honorable chairman, which you can open in the editor with a single click from a Google search page. Fillable documents may be executed from any internet-connected device without leaving Chrome.
How do I fill out wwwpdffillercom577442671--to-honorable to honorable chairman on an Android device?
Use the pdfFiller mobile app to complete your wwwpdffillercom577442671--to-honorable to honorable chairman on an Android device. The application makes it possible to perform all needed document management manipulations, like adding, editing, and removing text, signing, annotating, and more. All you need is your smartphone and an internet connection.
What is wwwpdffillercom577442671--to-honorable to honorable chairman?
wwwpdffillercom577442671--to-honorable to honorable chairman is a form or document addressed to the honorable chairman for a specific purpose.
Who is required to file wwwpdffillercom577442671--to-honorable to honorable chairman?
The individuals or entities who are directed or requested to do so.
How to fill out wwwpdffillercom577442671--to-honorable to honorable chairman?
Follow the instructions provided on the form and provide the necessary information in the designated fields.
What is the purpose of wwwpdffillercom577442671--to-honorable to honorable chairman?
The purpose is to communicate information, requests, or reports to the honorable chairman.
What information must be reported on wwwpdffillercom577442671--to-honorable to honorable chairman?
The specific information required will depend on the content and purpose of the form.
Fill out your wwwpdffillercom577442671--to-honorable to honorable chairman online with pdfFiller!
pdfFiller is an end-to-end solution for managing, creating, and editing documents and forms in the cloud. Save time and hassle by preparing your tax forms online.

wwwpdffillercom577442671--To-Honorable To Honorable Chairman is not the form you're looking for?Search for another form here.
Relevant keywords
Related Forms
If you believe that this page should be taken down, please follow our DMCA take down process
here
.
This form may include fields for payment information. Data entered in these fields is not covered by PCI DSS compliance.