Get the free OMB DIRECTIVE 15: RACE AND ETHNIC STANDARDS FOR FEDERAL STATISTICS AND ...
Show details
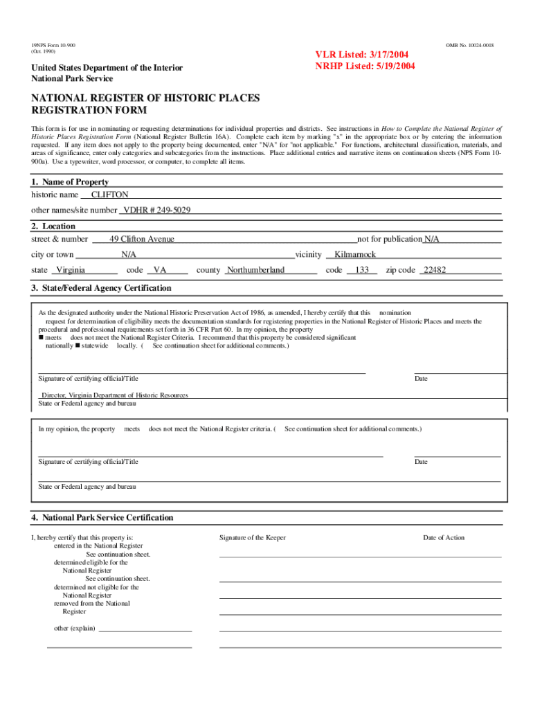
19NPS Form 10900 (Oct. 1990)OMB No. 100240018VLR Listed: 3/17/2004 CNRHP Listed: 5/19/2004United States Department of the Interior National Park ServiceNATIONAL REGISTER OF HISTORIC PLACES REGISTRATION
We are not affiliated with any brand or entity on this form
Get, Create, Make and Sign omb directive 15 race
Edit your omb directive 15 race form online
Type text, complete fillable fields, insert images, highlight or blackout data for discretion, add comments, and more.
Add your legally-binding signature
Draw or type your signature, upload a signature image, or capture it with your digital camera.
Share your form instantly
Email, fax, or share your omb directive 15 race form via URL. You can also download, print, or export forms to your preferred cloud storage service.
Editing omb directive 15 race online
To use the services of a skilled PDF editor, follow these steps:
1
Set up an account. If you are a new user, click Start Free Trial and establish a profile.
2
Prepare a file. Use the Add New button. Then upload your file to the system from your device, importing it from internal mail, the cloud, or by adding its URL.
3
Edit omb directive 15 race. Rearrange and rotate pages, add and edit text, and use additional tools. To save changes and return to your Dashboard, click Done. The Documents tab allows you to merge, divide, lock, or unlock files.
4
Get your file. Select the name of your file in the docs list and choose your preferred exporting method. You can download it as a PDF, save it in another format, send it by email, or transfer it to the cloud.
With pdfFiller, it's always easy to deal with documents.
Uncompromising security for your PDF editing and eSignature needs
Your private information is safe with pdfFiller. We employ end-to-end encryption, secure cloud storage, and advanced access control to protect your documents and maintain regulatory compliance.
How to fill out omb directive 15 race
How to fill out omb directive 15 race
01
Read and familiarize yourself with OMB Directive 15 guidelines
02
Obtain the necessary forms for reporting race and ethnicity data
03
Accurately collect and record the race and ethnicity information of individuals
04
Follow the specific instructions outlined in OMB Directive 15 for reporting the data
05
Submit the data to the appropriate organization or agency as required
Who needs omb directive 15 race?
01
Any organization or agency that is required to collect and report race and ethnicity data according to OMB Directive 15 guidelines
02
Government agencies, educational institutions, and other entities that receive federal funding are examples of who needs OMB Directive 15 race data
Fill
form
: Try Risk Free
For pdfFiller’s FAQs
Below is a list of the most common customer questions. If you can’t find an answer to your question, please don’t hesitate to reach out to us.
How do I make changes in omb directive 15 race?
With pdfFiller, the editing process is straightforward. Open your omb directive 15 race in the editor, which is highly intuitive and easy to use. There, you’ll be able to blackout, redact, type, and erase text, add images, draw arrows and lines, place sticky notes and text boxes, and much more.
How can I fill out omb directive 15 race on an iOS device?
pdfFiller has an iOS app that lets you fill out documents on your phone. A subscription to the service means you can make an account or log in to one you already have. As soon as the registration process is done, upload your omb directive 15 race. You can now use pdfFiller's more advanced features, like adding fillable fields and eSigning documents, as well as accessing them from any device, no matter where you are in the world.
How do I edit omb directive 15 race on an Android device?
You can edit, sign, and distribute omb directive 15 race on your mobile device from anywhere using the pdfFiller mobile app for Android; all you need is an internet connection. Download the app and begin streamlining your document workflow from anywhere.
What is omb directive 15 race?
OMB Directive 15 race is a requirement for federal agencies to collect and report data on the race and ethnicity of their employees.
Who is required to file omb directive 15 race?
All federal agencies are required to file OMB Directive 15 race.
How to fill out omb directive 15 race?
To fill out OMB Directive 15 race, federal agencies must collect data on the race and ethnicity of their employees using the categories specified in the directive.
What is the purpose of omb directive 15 race?
The purpose of OMB Directive 15 race is to promote equal employment opportunities and track the demographic composition of the federal workforce.
What information must be reported on omb directive 15 race?
Federal agencies must report data on the race and ethnicity of their employees using the categories specified in OMB Directive 15 race.
Fill out your omb directive 15 race online with pdfFiller!
pdfFiller is an end-to-end solution for managing, creating, and editing documents and forms in the cloud. Save time and hassle by preparing your tax forms online.
Omb Directive 15 Race is not the form you're looking for?Search for another form here.
Relevant keywords
Related Forms
If you believe that this page should be taken down, please follow our DMCA take down process
here
.
This form may include fields for payment information. Data entered in these fields is not covered by PCI DSS compliance.