Get the free www.ci.waseca.mn.uscommunity-developmentpagesDevelopment Review & Approval P...
Show details
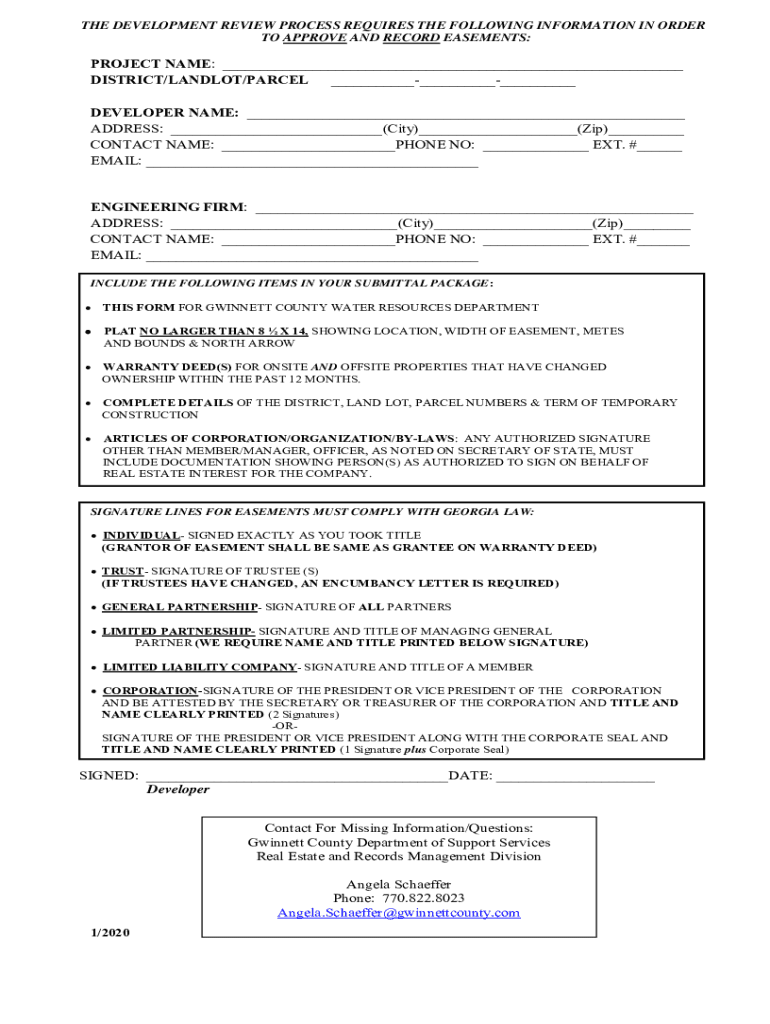
THE DEVELOPMENT REVIEW PROCESS REQUIRES THE FOLLOWING INFORMATION IN ORDER TO APPROVE AND RECORD EASEMENTS:PROJECT NAME: ___ DISTRICT/SANDLOT/PARCEL _________ DEVELOPER NAME: ___ ADDRESS: ___(City)___(Zip)___
We are not affiliated with any brand or entity on this form
Get, Create, Make and Sign wwwciwasecamnuscommunity-developmentpagesdevelopment review ampamp approval
Edit your wwwciwasecamnuscommunity-developmentpagesdevelopment review ampamp approval form online
Type text, complete fillable fields, insert images, highlight or blackout data for discretion, add comments, and more.
Add your legally-binding signature
Draw or type your signature, upload a signature image, or capture it with your digital camera.
Share your form instantly
Email, fax, or share your wwwciwasecamnuscommunity-developmentpagesdevelopment review ampamp approval form via URL. You can also download, print, or export forms to your preferred cloud storage service.
How to edit wwwciwasecamnuscommunity-developmentpagesdevelopment review ampamp approval online
Here are the steps you need to follow to get started with our professional PDF editor:
1
Create an account. Begin by choosing Start Free Trial and, if you are a new user, establish a profile.
2
Prepare a file. Use the Add New button to start a new project. Then, using your device, upload your file to the system by importing it from internal mail, the cloud, or adding its URL.
3
Edit wwwciwasecamnuscommunity-developmentpagesdevelopment review ampamp approval. Rearrange and rotate pages, add new and changed texts, add new objects, and use other useful tools. When you're done, click Done. You can use the Documents tab to merge, split, lock, or unlock your files.
4
Get your file. Select the name of your file in the docs list and choose your preferred exporting method. You can download it as a PDF, save it in another format, send it by email, or transfer it to the cloud.
Dealing with documents is always simple with pdfFiller. Try it right now
Uncompromising security for your PDF editing and eSignature needs
Your private information is safe with pdfFiller. We employ end-to-end encryption, secure cloud storage, and advanced access control to protect your documents and maintain regulatory compliance.
How to fill out wwwciwasecamnuscommunity-developmentpagesdevelopment review ampamp approval
How to fill out wwwciwasecamnuscommunity-developmentpagesdevelopment review ampamp approval
01
Log in to www.ciwasecamnus community development website
02
Navigate to the development review & approval page
03
Fill out all the required fields with accurate information
04
Upload any necessary documents or plans
05
Review the information entered for accuracy
06
Submit the form for review and approval
Who needs wwwciwasecamnuscommunity-developmentpagesdevelopment review ampamp approval?
01
Property developers and owners looking to start a new development project
02
Community members who want to propose a development project in their area
Fill
form
: Try Risk Free
For pdfFiller’s FAQs
Below is a list of the most common customer questions. If you can’t find an answer to your question, please don’t hesitate to reach out to us.
How do I execute wwwciwasecamnuscommunity-developmentpagesdevelopment review ampamp approval online?
pdfFiller has made filling out and eSigning wwwciwasecamnuscommunity-developmentpagesdevelopment review ampamp approval easy. The solution is equipped with a set of features that enable you to edit and rearrange PDF content, add fillable fields, and eSign the document. Start a free trial to explore all the capabilities of pdfFiller, the ultimate document editing solution.
How do I fill out wwwciwasecamnuscommunity-developmentpagesdevelopment review ampamp approval using my mobile device?
The pdfFiller mobile app makes it simple to design and fill out legal paperwork. Complete and sign wwwciwasecamnuscommunity-developmentpagesdevelopment review ampamp approval and other papers using the app. Visit pdfFiller's website to learn more about the PDF editor's features.
Can I edit wwwciwasecamnuscommunity-developmentpagesdevelopment review ampamp approval on an Android device?
You can edit, sign, and distribute wwwciwasecamnuscommunity-developmentpagesdevelopment review ampamp approval on your mobile device from anywhere using the pdfFiller mobile app for Android; all you need is an internet connection. Download the app and begin streamlining your document workflow from anywhere.
What is wwwciwasecamnuscommunity-developmentpagesdevelopment review ampamp approval?
The development review and approval process for community development projects.
Who is required to file wwwciwasecamnuscommunity-developmentpagesdevelopment review ampamp approval?
Any individual or organization involved in community development projects.
How to fill out wwwciwasecamnuscommunity-developmentpagesdevelopment review ampamp approval?
Complete all relevant sections of the form and submit it to the appropriate department for review.
What is the purpose of wwwciwasecamnuscommunity-developmentpagesdevelopment review ampamp approval?
To ensure that community development projects meet regulatory requirements and are beneficial to the community.
What information must be reported on wwwciwasecamnuscommunity-developmentpagesdevelopment review ampamp approval?
Details of the project, budget, timeline, impact on the community, and any necessary permits or approvals.
Fill out your wwwciwasecamnuscommunity-developmentpagesdevelopment review ampamp approval online with pdfFiller!
pdfFiller is an end-to-end solution for managing, creating, and editing documents and forms in the cloud. Save time and hassle by preparing your tax forms online.
Wwwciwasecamnuscommunity-Developmentpagesdevelopment Review Ampamp Approval is not the form you're looking for?Search for another form here.
Relevant keywords
Related Forms
If you believe that this page should be taken down, please follow our DMCA take down process
here
.
This form may include fields for payment information. Data entered in these fields is not covered by PCI DSS compliance.