
Get the free Development Application Forms, Early Assistance, and ... - Durham DSC, NC
Show details
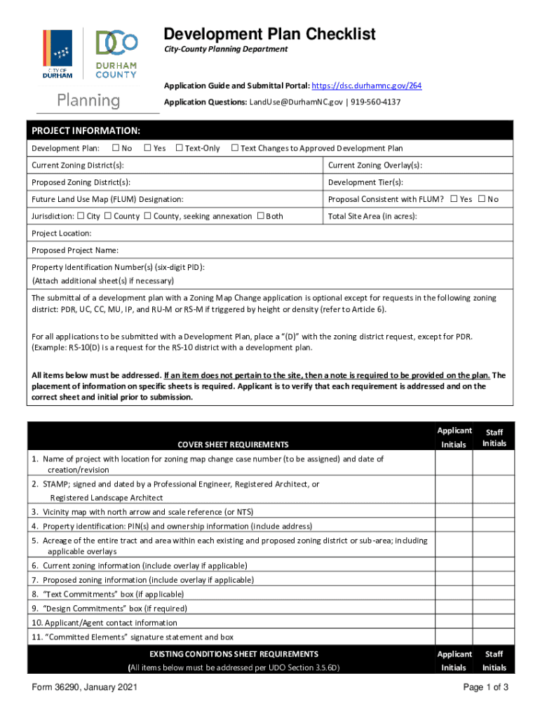
Development Plan Checklist CityCounty Planning Departmentalization Guide and Submittal Portal: https://dsc.durhamnc.gov/264 Application Questions: LandUse@DurhamNC.gov | 9195604137PROJECT INFORMATION:
We are not affiliated with any brand or entity on this form
Get, Create, Make and Sign development application forms early

Edit your development application forms early form online
Type text, complete fillable fields, insert images, highlight or blackout data for discretion, add comments, and more.

Add your legally-binding signature
Draw or type your signature, upload a signature image, or capture it with your digital camera.

Share your form instantly
Email, fax, or share your development application forms early form via URL. You can also download, print, or export forms to your preferred cloud storage service.
Editing development application forms early online
Follow the guidelines below to use a professional PDF editor:
1
Log into your account. It's time to start your free trial.
2
Prepare a file. Use the Add New button. Then upload your file to the system from your device, importing it from internal mail, the cloud, or by adding its URL.
3
Edit development application forms early. Rearrange and rotate pages, add new and changed texts, add new objects, and use other useful tools. When you're done, click Done. You can use the Documents tab to merge, split, lock, or unlock your files.
4
Save your file. Choose it from the list of records. Then, shift the pointer to the right toolbar and select one of the several exporting methods: save it in multiple formats, download it as a PDF, email it, or save it to the cloud.
Uncompromising security for your PDF editing and eSignature needs
Your private information is safe with pdfFiller. We employ end-to-end encryption, secure cloud storage, and advanced access control to protect your documents and maintain regulatory compliance.
How to fill out development application forms early

How to fill out development application forms early
01
Start by reading the instructions provided with the development application forms to understand the requirements.
02
Gather all the necessary documents and information needed to fill out the forms accurately.
03
Fill out the forms completely and make sure to provide all the required details.
04
Double check the forms for any errors or missing information before submitting.
05
Submit the completed development application forms early to ensure timely processing.
Who needs development application forms early?
01
Developers who are planning to undertake construction or renovation projects.
02
Property owners who are seeking approval for changes to their property.
03
Any individual or organization wanting to comply with local zoning and building regulations.
Fill
form
: Try Risk Free
For pdfFiller’s FAQs
Below is a list of the most common customer questions. If you can’t find an answer to your question, please don’t hesitate to reach out to us.
How do I fill out the development application forms early form on my smartphone?
You can easily create and fill out legal forms with the help of the pdfFiller mobile app. Complete and sign development application forms early and other documents on your mobile device using the application. Visit pdfFiller’s webpage to learn more about the functionalities of the PDF editor.
Can I edit development application forms early on an iOS device?
Create, modify, and share development application forms early using the pdfFiller iOS app. Easy to install from the Apple Store. You may sign up for a free trial and then purchase a membership.
How do I complete development application forms early on an Android device?
Use the pdfFiller mobile app and complete your development application forms early and other documents on your Android device. The app provides you with all essential document management features, such as editing content, eSigning, annotating, sharing files, etc. You will have access to your documents at any time, as long as there is an internet connection.
What is development application forms early?
Development application forms early are forms that are submitted in advance to request permission for a development project.
Who is required to file development application forms early?
Anyone planning a development project is required to file development application forms early.
How to fill out development application forms early?
To fill out development application forms early, individuals need to provide detailed information about the project, including its purpose and scope.
What is the purpose of development application forms early?
The purpose of development application forms early is to obtain approval for a development project before starting any work.
What information must be reported on development application forms early?
Development application forms early must include details about the project, such as the location, size, and intended use of the development.
Fill out your development application forms early online with pdfFiller!
pdfFiller is an end-to-end solution for managing, creating, and editing documents and forms in the cloud. Save time and hassle by preparing your tax forms online.

Development Application Forms Early is not the form you're looking for?Search for another form here.
Relevant keywords
Related Forms
If you believe that this page should be taken down, please follow our DMCA take down process
here
.
This form may include fields for payment information. Data entered in these fields is not covered by PCI DSS compliance.