
Get the free DRAWINGS AND REPORT CHECKLIST FOR STANDARD GESC PERMITS A. DRAWINGS
Show details
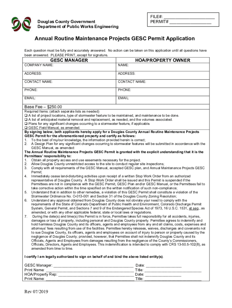
FILE#: ___ PERMIT# ___Douglas County Government Department of Public Works EngineeringAnnual Routine Maintenance Projects ESC Permit Application Each question must be fully and accurately answered.
We are not affiliated with any brand or entity on this form
Get, Create, Make and Sign drawings and report checklist

Edit your drawings and report checklist form online
Type text, complete fillable fields, insert images, highlight or blackout data for discretion, add comments, and more.

Add your legally-binding signature
Draw or type your signature, upload a signature image, or capture it with your digital camera.

Share your form instantly
Email, fax, or share your drawings and report checklist form via URL. You can also download, print, or export forms to your preferred cloud storage service.
Editing drawings and report checklist online
To use the services of a skilled PDF editor, follow these steps below:
1
Log in. Click Start Free Trial and create a profile if necessary.
2
Simply add a document. Select Add New from your Dashboard and import a file into the system by uploading it from your device or importing it via the cloud, online, or internal mail. Then click Begin editing.
3
Edit drawings and report checklist. Rearrange and rotate pages, add and edit text, and use additional tools. To save changes and return to your Dashboard, click Done. The Documents tab allows you to merge, divide, lock, or unlock files.
4
Save your file. Select it in the list of your records. Then, move the cursor to the right toolbar and choose one of the available exporting methods: save it in multiple formats, download it as a PDF, send it by email, or store it in the cloud.
pdfFiller makes dealing with documents a breeze. Create an account to find out!
Uncompromising security for your PDF editing and eSignature needs
Your private information is safe with pdfFiller. We employ end-to-end encryption, secure cloud storage, and advanced access control to protect your documents and maintain regulatory compliance.
How to fill out drawings and report checklist

How to fill out drawings and report checklist
01
Gather all necessary information and materials for the drawings and report checklist.
02
Review the requirements and guidelines for filling out the drawings and report checklist.
03
Carefully complete each section of the drawings and report checklist, ensuring accuracy and completeness.
04
Double check your work to ensure all information is correct and all sections are filled out properly.
05
Submit the drawings and report checklist according to the specified deadline and method of submission.
Who needs drawings and report checklist?
01
Engineers
02
Architects
03
Construction managers
04
Building inspectors
Fill
form
: Try Risk Free
For pdfFiller’s FAQs
Below is a list of the most common customer questions. If you can’t find an answer to your question, please don’t hesitate to reach out to us.
How do I complete drawings and report checklist online?
pdfFiller makes it easy to finish and sign drawings and report checklist online. It lets you make changes to original PDF content, highlight, black out, erase, and write text anywhere on a page, legally eSign your form, and more, all from one place. Create a free account and use the web to keep track of professional documents.
How do I edit drawings and report checklist online?
pdfFiller not only lets you change the content of your files, but you can also change the number and order of pages. Upload your drawings and report checklist to the editor and make any changes in a few clicks. The editor lets you black out, type, and erase text in PDFs. You can also add images, sticky notes, and text boxes, as well as many other things.
How do I fill out drawings and report checklist on an Android device?
Use the pdfFiller mobile app and complete your drawings and report checklist and other documents on your Android device. The app provides you with all essential document management features, such as editing content, eSigning, annotating, sharing files, etc. You will have access to your documents at any time, as long as there is an internet connection.
What is drawings and report checklist?
The drawings and report checklist is a document used to ensure that all necessary drawings and reports are included and meet required standards for submissions in various projects.
Who is required to file drawings and report checklist?
Typically, architects, engineers, and contractors involved in construction or development projects are required to file the drawings and report checklist.
How to fill out drawings and report checklist?
To fill out the drawings and report checklist, users should review the specific requirements for their project, list all necessary documents, and ensure each item is complete before submission.
What is the purpose of drawings and report checklist?
The purpose of the drawings and report checklist is to provide a systematic approach to submitting all essential documentation, thus facilitating easier review and compliance with regulations.
What information must be reported on drawings and report checklist?
The checklist typically requires reporting details such as project title, the names of responsible parties, a list of all drawings included, and relevant project reports.
Fill out your drawings and report checklist online with pdfFiller!
pdfFiller is an end-to-end solution for managing, creating, and editing documents and forms in the cloud. Save time and hassle by preparing your tax forms online.

Drawings And Report Checklist is not the form you're looking for?Search for another form here.
Relevant keywords
Related Forms
If you believe that this page should be taken down, please follow our DMCA take down process
here
.
This form may include fields for payment information. Data entered in these fields is not covered by PCI DSS compliance.