Get the free Building Information, Permits & Forms - City of South Euclid, Ohio
Show details
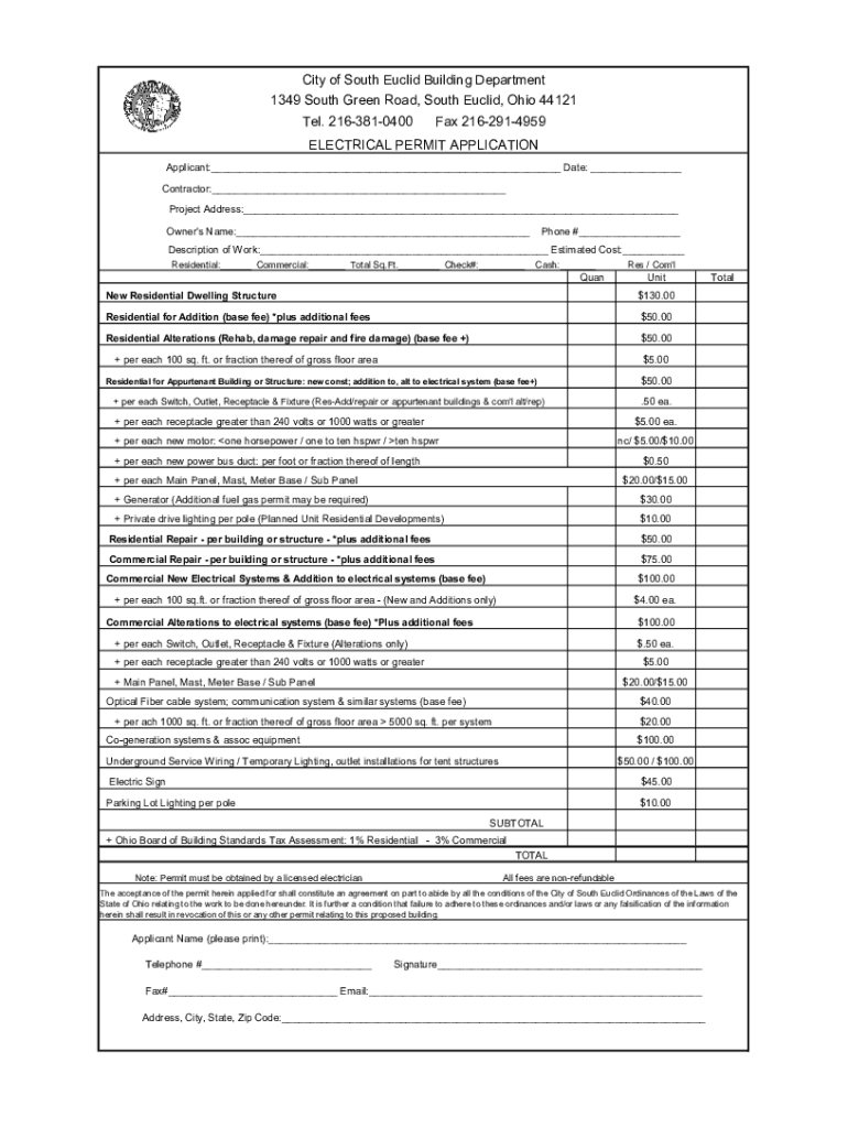
City of South Euclid Building Department 1349 South Green Road, South Euclid, Ohio 44121 Tel. 2163810400Fax 2162914959ELECTRICAL PERMIT APPLICATION Applicant:___ Date: ___ Contractor:___ Project Address:___
We are not affiliated with any brand or entity on this form
Get, Create, Make and Sign building information permits amp
Edit your building information permits amp form online
Type text, complete fillable fields, insert images, highlight or blackout data for discretion, add comments, and more.
Add your legally-binding signature
Draw or type your signature, upload a signature image, or capture it with your digital camera.
Share your form instantly
Email, fax, or share your building information permits amp form via URL. You can also download, print, or export forms to your preferred cloud storage service.
How to edit building information permits amp online
To use the services of a skilled PDF editor, follow these steps:
1
Create an account. Begin by choosing Start Free Trial and, if you are a new user, establish a profile.
2
Prepare a file. Use the Add New button. Then upload your file to the system from your device, importing it from internal mail, the cloud, or by adding its URL.
3
Edit building information permits amp. Text may be added and replaced, new objects can be included, pages can be rearranged, watermarks and page numbers can be added, and so on. When you're done editing, click Done and then go to the Documents tab to combine, divide, lock, or unlock the file.
4
Save your file. Choose it from the list of records. Then, shift the pointer to the right toolbar and select one of the several exporting methods: save it in multiple formats, download it as a PDF, email it, or save it to the cloud.
pdfFiller makes working with documents easier than you could ever imagine. Create an account to find out for yourself how it works!
Uncompromising security for your PDF editing and eSignature needs
Your private information is safe with pdfFiller. We employ end-to-end encryption, secure cloud storage, and advanced access control to protect your documents and maintain regulatory compliance.
How to fill out building information permits amp
How to fill out building information permits amp
01
Obtain the necessary forms for the building information permits amp from your local building department or online.
02
Fill out the forms completely and accurately, providing all required information about the building project.
03
Include any supporting documentation that may be needed, such as site plans, construction drawings, and engineering reports.
04
Submit the completed forms and documentation to the building department along with any required fees.
05
Wait for the permit to be reviewed and approved before beginning any construction work.
Who needs building information permits amp?
01
Anyone who is planning to undertake a building project that involves alterations, additions, or new construction may need building information permits amp.
Fill
form
: Try Risk Free
For pdfFiller’s FAQs
Below is a list of the most common customer questions. If you can’t find an answer to your question, please don’t hesitate to reach out to us.
How can I send building information permits amp to be eSigned by others?
When you're ready to share your building information permits amp, you can swiftly email it to others and receive the eSigned document back. You may send your PDF through email, fax, text message, or USPS mail, or you can notarize it online. All of this may be done without ever leaving your account.
How can I edit building information permits amp on a smartphone?
The easiest way to edit documents on a mobile device is using pdfFiller’s mobile-native apps for iOS and Android. You can download those from the Apple Store and Google Play, respectively. You can learn more about the apps here. Install and log in to the application to start editing building information permits amp.
Can I edit building information permits amp on an Android device?
With the pdfFiller Android app, you can edit, sign, and share building information permits amp on your mobile device from any place. All you need is an internet connection to do this. Keep your documents in order from anywhere with the help of the app!
What is building information permits amp?
Building information permits amp (BIP AMP) is a form used to report information about the construction or renovation of a building.
Who is required to file building information permits amp?
Contractors, architects, or property owners responsible for the construction project are required to file building information permits amp.
How to fill out building information permits amp?
Building information permits amp can be filled out online or in person with the relevant building department. The form typically requires details about the project, such as the location, type of construction, and estimated costs.
What is the purpose of building information permits amp?
The purpose of building information permits amp is to ensure that construction projects comply with building codes and regulations, and to track the progress of the project.
What information must be reported on building information permits amp?
Information that must be reported on building information permits amp includes the project address, type of construction, estimated costs, and contractor information.
Fill out your building information permits amp online with pdfFiller!
pdfFiller is an end-to-end solution for managing, creating, and editing documents and forms in the cloud. Save time and hassle by preparing your tax forms online.
Building Information Permits Amp is not the form you're looking for?Search for another form here.
Relevant keywords
Related Forms
If you believe that this page should be taken down, please follow our DMCA take down process
here
.
This form may include fields for payment information. Data entered in these fields is not covered by PCI DSS compliance.