TX Floodplain Development Permit - City of Killeen 2022-2026 free printable template
Show details
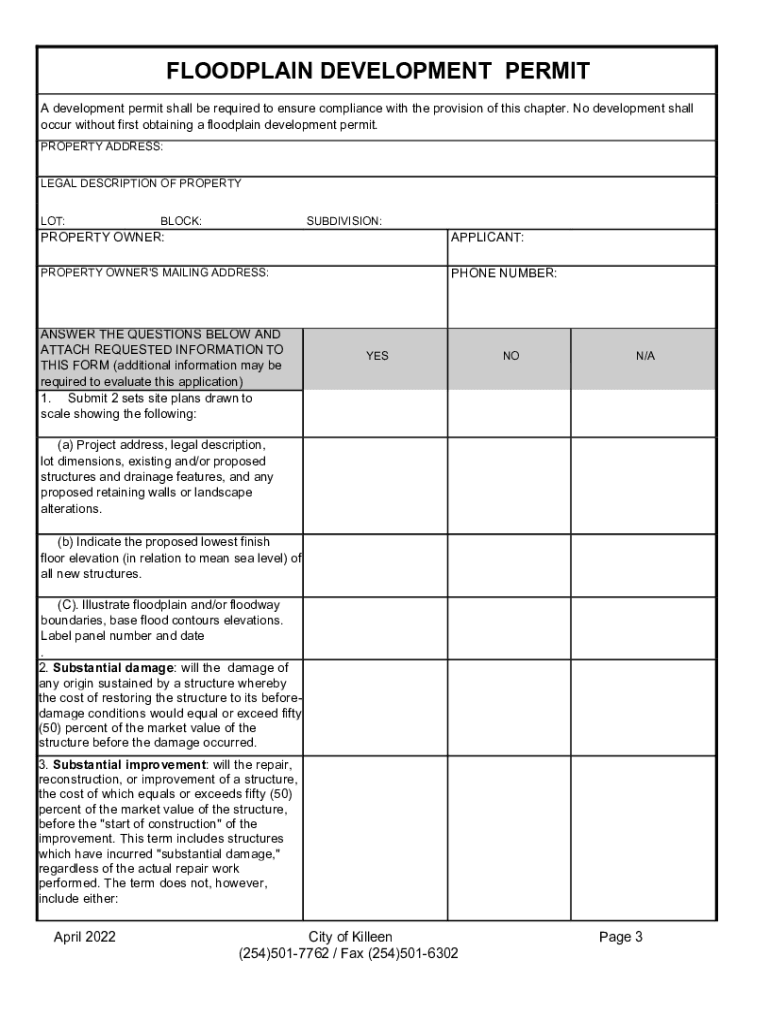
FLOODPLAIN DEVELOPMENT PERMIT
A development permit shall be required to ensure compliance with the provision of this chapter. No development shall
occur without first obtaining a floodplain development
pdfFiller is not affiliated with any government organization
Get, Create, Make and Sign TX Floodplain Development Permit - City
Edit your TX Floodplain Development Permit - City form online
Type text, complete fillable fields, insert images, highlight or blackout data for discretion, add comments, and more.
Add your legally-binding signature
Draw or type your signature, upload a signature image, or capture it with your digital camera.
Share your form instantly
Email, fax, or share your TX Floodplain Development Permit - City form via URL. You can also download, print, or export forms to your preferred cloud storage service.
Editing TX Floodplain Development Permit - City online
Here are the steps you need to follow to get started with our professional PDF editor:
1
Register the account. Begin by clicking Start Free Trial and create a profile if you are a new user.
2
Prepare a file. Use the Add New button to start a new project. Then, using your device, upload your file to the system by importing it from internal mail, the cloud, or adding its URL.
3
Edit TX Floodplain Development Permit - City. Add and change text, add new objects, move pages, add watermarks and page numbers, and more. Then click Done when you're done editing and go to the Documents tab to merge or split the file. If you want to lock or unlock the file, click the lock or unlock button.
4
Save your file. Select it in the list of your records. Then, move the cursor to the right toolbar and choose one of the available exporting methods: save it in multiple formats, download it as a PDF, send it by email, or store it in the cloud.
With pdfFiller, dealing with documents is always straightforward. Try it now!
Uncompromising security for your PDF editing and eSignature needs
Your private information is safe with pdfFiller. We employ end-to-end encryption, secure cloud storage, and advanced access control to protect your documents and maintain regulatory compliance.
How to fill out TX Floodplain Development Permit - City
How to fill out TX Floodplain Development Permit - City of Killeen
01
Obtain the TX Floodplain Development Permit application form from the City of Killeen's official website or local government office.
02
Provide property information including address, parcel number, and legal description.
03
Identify the type of development or construction planned in the floodplain.
04
Attach any required site plans, drawings, or documents that illustrate the proposed development.
05
Include details about floodproofing measures if applicable.
06
Calculate the required permit fees and prepare payment.
07
Submit the completed application along with all supporting documents to the City of Killeen's planning department.
08
Await feedback or approval from the city’s floodplain management staff.
Who needs TX Floodplain Development Permit - City of Killeen?
01
Individuals or businesses looking to undertake construction or development activities in designated floodplain areas of Killeen require a TX Floodplain Development Permit.
Fill
form
: Try Risk Free
For pdfFiller’s FAQs
Below is a list of the most common customer questions. If you can’t find an answer to your question, please don’t hesitate to reach out to us.
How do I complete TX Floodplain Development Permit - City online?
Filling out and eSigning TX Floodplain Development Permit - City is now simple. The solution allows you to change and reorganize PDF text, add fillable fields, and eSign the document. Start a free trial of pdfFiller, the best document editing solution.
How do I make changes in TX Floodplain Development Permit - City?
With pdfFiller, the editing process is straightforward. Open your TX Floodplain Development Permit - City in the editor, which is highly intuitive and easy to use. There, you’ll be able to blackout, redact, type, and erase text, add images, draw arrows and lines, place sticky notes and text boxes, and much more.
How do I fill out the TX Floodplain Development Permit - City form on my smartphone?
On your mobile device, use the pdfFiller mobile app to complete and sign TX Floodplain Development Permit - City. Visit our website (https://edit-pdf-ios-android.pdffiller.com/) to discover more about our mobile applications, the features you'll have access to, and how to get started.
What is TX Floodplain Development Permit - City of Killeen?
The TX Floodplain Development Permit is a regulatory requirement in the City of Killeen that ensures any development within the designated floodplain areas complies with local, state, and federal floodplain management regulations.
Who is required to file TX Floodplain Development Permit - City of Killeen?
Any individual or entity planning to undertake construction, alteration, or any form of development in a designated floodplain area within the City of Killeen is required to file for a TX Floodplain Development Permit.
How to fill out TX Floodplain Development Permit - City of Killeen?
To fill out the TX Floodplain Development Permit, applicants must provide detailed project information, including site plans, floodplain information, and descriptions of the proposed work. The form can typically be obtained from the City of Killeen's website or the planning department.
What is the purpose of TX Floodplain Development Permit - City of Killeen?
The purpose of the TX Floodplain Development Permit is to minimize flood risks, ensure the safety of developments, protect property, and comply with federal and state regulations regarding floodplain management.
What information must be reported on TX Floodplain Development Permit - City of Killeen?
The information that must be reported includes the project location, type of development, elevation of the structure, flood zone designation, and any other relevant details that may affect floodplain management.
Fill out your TX Floodplain Development Permit - City online with pdfFiller!
pdfFiller is an end-to-end solution for managing, creating, and editing documents and forms in the cloud. Save time and hassle by preparing your tax forms online.
TX Floodplain Development Permit - City is not the form you're looking for?Search for another form here.
Relevant keywords
Related Forms
If you believe that this page should be taken down, please follow our DMCA take down process
here
.
This form may include fields for payment information. Data entered in these fields is not covered by PCI DSS compliance.