
Get the free Cleanup Site ID: 6691
Show details
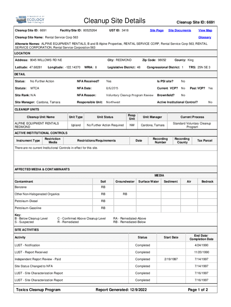
Cleanup Site Details Cleanup Site ID: 6691Facility/Site ID: 80525264Cleanup Site ID: 6691UST ID: 3418Site Page Site Documentaries Cleanup Site Name: Rental Service Corp 563GlossaryAlternate Names:
We are not affiliated with any brand or entity on this form
Get, Create, Make and Sign cleanup site id 6691

Edit your cleanup site id 6691 form online
Type text, complete fillable fields, insert images, highlight or blackout data for discretion, add comments, and more.

Add your legally-binding signature
Draw or type your signature, upload a signature image, or capture it with your digital camera.

Share your form instantly
Email, fax, or share your cleanup site id 6691 form via URL. You can also download, print, or export forms to your preferred cloud storage service.
How to edit cleanup site id 6691 online
Follow the steps below to benefit from the PDF editor's expertise:
1
Log in. Click Start Free Trial and create a profile if necessary.
2
Prepare a file. Use the Add New button. Then upload your file to the system from your device, importing it from internal mail, the cloud, or by adding its URL.
3
Edit cleanup site id 6691. Text may be added and replaced, new objects can be included, pages can be rearranged, watermarks and page numbers can be added, and so on. When you're done editing, click Done and then go to the Documents tab to combine, divide, lock, or unlock the file.
4
Save your file. Select it from your records list. Then, click the right toolbar and select one of the various exporting options: save in numerous formats, download as PDF, email, or cloud.
pdfFiller makes working with documents easier than you could ever imagine. Register for an account and see for yourself!
Uncompromising security for your PDF editing and eSignature needs
Your private information is safe with pdfFiller. We employ end-to-end encryption, secure cloud storage, and advanced access control to protect your documents and maintain regulatory compliance.
How to fill out cleanup site id 6691

How to fill out cleanup site id 6691
01
Locate the cleanup site id 6691 form.
02
Fill out the required fields such as name, date, address, and contact information.
03
Provide a detailed description of the cleanup site and any relevant information.
04
Attach any supporting documents or photos if necessary.
05
Review the form for accuracy and completeness before submitting.
Who needs cleanup site id 6691?
01
Individuals or organizations responsible for cleaning up site id 6691 would need this information to properly document and track the cleanup process.
Fill
form
: Try Risk Free
For pdfFiller’s FAQs
Below is a list of the most common customer questions. If you can’t find an answer to your question, please don’t hesitate to reach out to us.
How do I execute cleanup site id 6691 online?
pdfFiller has made it easy to fill out and sign cleanup site id 6691. You can use the solution to change and move PDF content, add fields that can be filled in, and sign the document electronically. Start a free trial of pdfFiller, the best tool for editing and filling in documents.
How can I fill out cleanup site id 6691 on an iOS device?
Make sure you get and install the pdfFiller iOS app. Next, open the app and log in or set up an account to use all of the solution's editing tools. If you want to open your cleanup site id 6691, you can upload it from your device or cloud storage, or you can type the document's URL into the box on the right. After you fill in all of the required fields in the document and eSign it, if that is required, you can save or share it with other people.
How do I complete cleanup site id 6691 on an Android device?
Use the pdfFiller Android app to finish your cleanup site id 6691 and other documents on your Android phone. The app has all the features you need to manage your documents, like editing content, eSigning, annotating, sharing files, and more. At any time, as long as there is an internet connection.
What is cleanup site id 6691?
Cleanup site id 6691 is a unique identifier for a specific location that requires cleanup due to environmental contamination.
Who is required to file cleanup site id 6691?
The responsible party or owner of the contaminated site is required to file cleanup site id 6691.
How to fill out cleanup site id 6691?
To fill out cleanup site id 6691, the responsible party must provide information about the site, the nature and extent of contamination, and the proposed cleanup plan.
What is the purpose of cleanup site id 6691?
The purpose of cleanup site id 6691 is to track and monitor the cleanup progress of contaminated sites to ensure environmental protection and public health.
What information must be reported on cleanup site id 6691?
Information such as site location, contamination source, contamination level, cleanup activities, and monitoring results must be reported on cleanup site id 6691.
Fill out your cleanup site id 6691 online with pdfFiller!
pdfFiller is an end-to-end solution for managing, creating, and editing documents and forms in the cloud. Save time and hassle by preparing your tax forms online.

Cleanup Site Id 6691 is not the form you're looking for?Search for another form here.
Relevant keywords
Related Forms
If you believe that this page should be taken down, please follow our DMCA take down process
here
.
This form may include fields for payment information. Data entered in these fields is not covered by PCI DSS compliance.