Get the free Staff Report - Transit-Supported Development Text Amendment
Show details
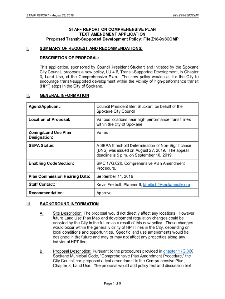
STAFF REPORT August 28, 2019File Z18958COMPSTAFF REPORT ON COMPREHENSIVE PLAN TEXT AMENDMENT APPLICATION Proposed TransitSupported Development Policy; File Z18958COMP I.SUMMARY OF REQUEST AND RECOMMENDATIONS:
We are not affiliated with any brand or entity on this form
Get, Create, Make and Sign staff report - transit-supported
Edit your staff report - transit-supported form online
Type text, complete fillable fields, insert images, highlight or blackout data for discretion, add comments, and more.
Add your legally-binding signature
Draw or type your signature, upload a signature image, or capture it with your digital camera.
Share your form instantly
Email, fax, or share your staff report - transit-supported form via URL. You can also download, print, or export forms to your preferred cloud storage service.
How to edit staff report - transit-supported online
To use the professional PDF editor, follow these steps:
1
Register the account. Begin by clicking Start Free Trial and create a profile if you are a new user.
2
Prepare a file. Use the Add New button. Then upload your file to the system from your device, importing it from internal mail, the cloud, or by adding its URL.
3
Edit staff report - transit-supported. Rearrange and rotate pages, insert new and alter existing texts, add new objects, and take advantage of other helpful tools. Click Done to apply changes and return to your Dashboard. Go to the Documents tab to access merging, splitting, locking, or unlocking functions.
4
Save your file. Select it from your list of records. Then, move your cursor to the right toolbar and choose one of the exporting options. You can save it in multiple formats, download it as a PDF, send it by email, or store it in the cloud, among other things.
It's easier to work with documents with pdfFiller than you could have ever thought. You may try it out for yourself by signing up for an account.
Uncompromising security for your PDF editing and eSignature needs
Your private information is safe with pdfFiller. We employ end-to-end encryption, secure cloud storage, and advanced access control to protect your documents and maintain regulatory compliance.
How to fill out staff report - transit-supported
How to fill out staff report - transit-supported
01
Gather all necessary information such as employee details, work schedule, and transit usage.
02
Complete the sections on the staff report form including employee name, job title, department, and transit support needed.
03
Provide a detailed explanation of why transit support is needed for each employee.
04
Submit the completed staff report to the appropriate department for review and approval.
Who needs staff report - transit-supported?
01
Employees who rely on public transit to get to and from work.
02
Employers who want to provide support for their employees' transit needs.
Fill
form
: Try Risk Free
For pdfFiller’s FAQs
Below is a list of the most common customer questions. If you can’t find an answer to your question, please don’t hesitate to reach out to us.
How do I modify my staff report - transit-supported in Gmail?
The pdfFiller Gmail add-on lets you create, modify, fill out, and sign staff report - transit-supported and other documents directly in your email. Click here to get pdfFiller for Gmail. Eliminate tedious procedures and handle papers and eSignatures easily.
How do I edit staff report - transit-supported in Chrome?
Install the pdfFiller Google Chrome Extension in your web browser to begin editing staff report - transit-supported and other documents right from a Google search page. When you examine your documents in Chrome, you may make changes to them. With pdfFiller, you can create fillable documents and update existing PDFs from any internet-connected device.
How can I fill out staff report - transit-supported on an iOS device?
In order to fill out documents on your iOS device, install the pdfFiller app. Create an account or log in to an existing one if you have a subscription to the service. Once the registration process is complete, upload your staff report - transit-supported. You now can take advantage of pdfFiller's advanced functionalities: adding fillable fields and eSigning documents, and accessing them from any device, wherever you are.
What is staff report - transit-supported?
Staff report - transit-supported is a report filed by transit-supported businesses detailing their staff and operations.
Who is required to file staff report - transit-supported?
Transit-supported businesses are required to file staff report - transit-supported.
How to fill out staff report - transit-supported?
Staff report - transit-supported can be filled out online or submitted via mail following the guidelines provided by the transit authority.
What is the purpose of staff report - transit-supported?
The purpose of staff report - transit-supported is to track and monitor the staff and operations of transit-supported businesses.
What information must be reported on staff report - transit-supported?
Information such as staff count, revenue, expenses, and service details must be reported on staff report - transit-supported.
Fill out your staff report - transit-supported online with pdfFiller!
pdfFiller is an end-to-end solution for managing, creating, and editing documents and forms in the cloud. Save time and hassle by preparing your tax forms online.
Staff Report - Transit-Supported is not the form you're looking for?Search for another form here.
Relevant keywords
Related Forms
If you believe that this page should be taken down, please follow our DMCA take down process
here
.
This form may include fields for payment information. Data entered in these fields is not covered by PCI DSS compliance.