Get the free Online Partnership AgreementENERGY STAR
Show details
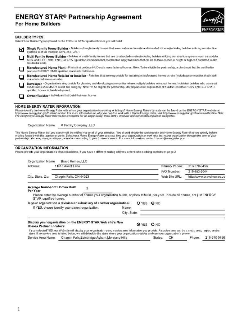
ENERGY STAR Partnership Agreement For Home Builders BUILDER TYPES Select Your Builder Type(s) based on the ENERGY STAR qualified homes you will build:Single Family Home Builder Builders of single
We are not affiliated with any brand or entity on this form
Get, Create, Make and Sign online partnership agreementenergy star
Edit your online partnership agreementenergy star form online
Type text, complete fillable fields, insert images, highlight or blackout data for discretion, add comments, and more.
Add your legally-binding signature
Draw or type your signature, upload a signature image, or capture it with your digital camera.
Share your form instantly
Email, fax, or share your online partnership agreementenergy star form via URL. You can also download, print, or export forms to your preferred cloud storage service.
Editing online partnership agreementenergy star online
Here are the steps you need to follow to get started with our professional PDF editor:
1
Log in. Click Start Free Trial and create a profile if necessary.
2
Upload a file. Select Add New on your Dashboard and upload a file from your device or import it from the cloud, online, or internal mail. Then click Edit.
3
Edit online partnership agreementenergy star. Rearrange and rotate pages, add new and changed texts, add new objects, and use other useful tools. When you're done, click Done. You can use the Documents tab to merge, split, lock, or unlock your files.
4
Get your file. Select your file from the documents list and pick your export method. You may save it as a PDF, email it, or upload it to the cloud.
The use of pdfFiller makes dealing with documents straightforward. Try it now!
Uncompromising security for your PDF editing and eSignature needs
Your private information is safe with pdfFiller. We employ end-to-end encryption, secure cloud storage, and advanced access control to protect your documents and maintain regulatory compliance.
How to fill out online partnership agreementenergy star
How to fill out online partnership agreementenergy star
01
Access the Energy Star website and locate the partnership agreement form.
02
Read through the agreement carefully to understand the terms and conditions.
03
Fill in the required information such as your company details, contact information, and partnership goals.
04
Review the completed agreement for accuracy and completeness.
05
Submit the agreement online as per the instructions provided.
Who needs online partnership agreementenergy star?
01
Companies or organizations looking to partner with Energy Star program to promote energy efficiency and sustainability.
02
Businesses interested in leveraging the Energy Star brand to demonstrate their commitment to environmental stewardship.
Fill
form
: Try Risk Free
For pdfFiller’s FAQs
Below is a list of the most common customer questions. If you can’t find an answer to your question, please don’t hesitate to reach out to us.
How can I modify online partnership agreementenergy star without leaving Google Drive?
pdfFiller and Google Docs can be used together to make your documents easier to work with and to make fillable forms right in your Google Drive. The integration will let you make, change, and sign documents, like online partnership agreementenergy star, without leaving Google Drive. Add pdfFiller's features to Google Drive, and you'll be able to do more with your paperwork on any internet-connected device.
How do I edit online partnership agreementenergy star on an iOS device?
Use the pdfFiller mobile app to create, edit, and share online partnership agreementenergy star from your iOS device. Install it from the Apple Store in seconds. You can benefit from a free trial and choose a subscription that suits your needs.
How can I fill out online partnership agreementenergy star on an iOS device?
Install the pdfFiller app on your iOS device to fill out papers. Create an account or log in if you already have one. After registering, upload your online partnership agreementenergy star. You may now use pdfFiller's advanced features like adding fillable fields and eSigning documents from any device, anywhere.
What is online partnership agreementenergy star?
Online partnership agreementenergy star is an agreement between the U.S. Environmental Protection Agency (EPA) and a partner organization to promote energy efficiency and sustainability.
Who is required to file online partnership agreementenergy star?
Any organization interested in promoting energy efficiency and sustainability can file an online partnership agreement with ENERGY STAR.
How to fill out online partnership agreementenergy star?
To fill out an online partnership agreement with ENERGY STAR, organizations need to provide information about their energy efficiency goals, strategies, and outcomes.
What is the purpose of online partnership agreementenergy star?
The purpose of online partnership agreement with ENERGY STAR is to encourage organizations to improve their energy efficiency and reduce their environmental impact.
What information must be reported on online partnership agreementenergy star?
Organizations must report on their energy use, emissions reductions, and other sustainability practices in their online partnership agreements with ENERGY STAR.
Fill out your online partnership agreementenergy star online with pdfFiller!
pdfFiller is an end-to-end solution for managing, creating, and editing documents and forms in the cloud. Save time and hassle by preparing your tax forms online.
Online Partnership Agreementenergy Star is not the form you're looking for?Search for another form here.
Relevant keywords
Related Forms
If you believe that this page should be taken down, please follow our DMCA take down process
here
.
This form may include fields for payment information. Data entered in these fields is not covered by PCI DSS compliance.