
Get the free Builders & DevelopersENERGY STAR
Show details
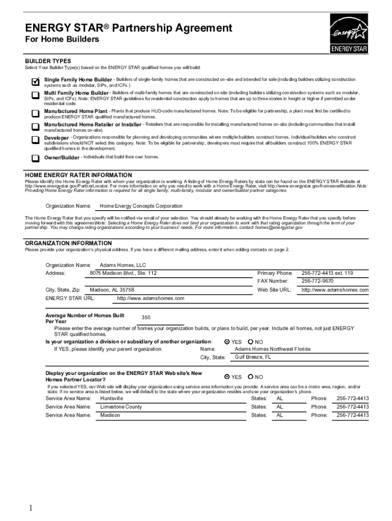
ENERGY STAR Partnership Agreement For Home Builders BUILDER TYPES Select Your Builder Type(s) based on the ENERGY STAR qualified homes you will build:Single Family Home Builder Builders of single
We are not affiliated with any brand or entity on this form
Get, Create, Make and Sign builders ampamp developersenergy star

Edit your builders ampamp developersenergy star form online
Type text, complete fillable fields, insert images, highlight or blackout data for discretion, add comments, and more.

Add your legally-binding signature
Draw or type your signature, upload a signature image, or capture it with your digital camera.

Share your form instantly
Email, fax, or share your builders ampamp developersenergy star form via URL. You can also download, print, or export forms to your preferred cloud storage service.
Editing builders ampamp developersenergy star online
Follow the guidelines below to take advantage of the professional PDF editor:
1
Create an account. Begin by choosing Start Free Trial and, if you are a new user, establish a profile.
2
Upload a file. Select Add New on your Dashboard and upload a file from your device or import it from the cloud, online, or internal mail. Then click Edit.
3
Edit builders ampamp developersenergy star. Rearrange and rotate pages, add and edit text, and use additional tools. To save changes and return to your Dashboard, click Done. The Documents tab allows you to merge, divide, lock, or unlock files.
4
Get your file. Select your file from the documents list and pick your export method. You may save it as a PDF, email it, or upload it to the cloud.
With pdfFiller, it's always easy to work with documents. Check it out!
Uncompromising security for your PDF editing and eSignature needs
Your private information is safe with pdfFiller. We employ end-to-end encryption, secure cloud storage, and advanced access control to protect your documents and maintain regulatory compliance.
How to fill out builders ampamp developersenergy star

How to fill out builders ampamp developersenergy star
01
Visit the official ENERGY STAR website for builders and developers.
02
Create an account if you do not already have one.
03
Access the online tool for submitting your project information.
04
Fill out all the required fields accurately, including project details and energy efficiency measures.
05
Upload any supporting documentation or verification required for ENERGY STAR certification.
06
Review your submission for any errors or missing information before finalizing.
07
Submit your application and await approval from ENERGY STAR.
Who needs builders ampamp developersenergy star?
01
Builders and developers who want to showcase their commitment to energy efficiency and sustainability in their projects.
02
Home buyers and renters looking for eco-friendly and energy-efficient housing options.
Fill
form
: Try Risk Free
For pdfFiller’s FAQs
Below is a list of the most common customer questions. If you can’t find an answer to your question, please don’t hesitate to reach out to us.
How do I execute builders ampamp developersenergy star online?
pdfFiller makes it easy to finish and sign builders ampamp developersenergy star online. It lets you make changes to original PDF content, highlight, black out, erase, and write text anywhere on a page, legally eSign your form, and more, all from one place. Create a free account and use the web to keep track of professional documents.
Can I edit builders ampamp developersenergy star on an iOS device?
You certainly can. You can quickly edit, distribute, and sign builders ampamp developersenergy star on your iOS device with the pdfFiller mobile app. Purchase it from the Apple Store and install it in seconds. The program is free, but in order to purchase a subscription or activate a free trial, you must first establish an account.
Can I edit builders ampamp developersenergy star on an Android device?
The pdfFiller app for Android allows you to edit PDF files like builders ampamp developersenergy star. Mobile document editing, signing, and sending. Install the app to ease document management anywhere.
What is builders & developers energy star?
Builders & Developers Energy Star is a program that recognizes builders and developers for constructing energy-efficient homes.
Who is required to file builders & developers energy star?
Builders and developers who want to showcase their energy-efficient homes are required to file for the Energy Star certification.
How to fill out builders & developers energy star?
Builders and developers can fill out the Energy Star certification application online through the Energy Star website.
What is the purpose of builders & developers energy star?
The purpose of Builders & Developers Energy Star is to promote the construction of energy-efficient homes and reduce energy consumption.
What information must be reported on builders & developers energy star?
Builders and developers need to report on the energy-efficient features of the homes they have constructed.
Fill out your builders ampamp developersenergy star online with pdfFiller!
pdfFiller is an end-to-end solution for managing, creating, and editing documents and forms in the cloud. Save time and hassle by preparing your tax forms online.

Builders Ampamp Developersenergy Star is not the form you're looking for?Search for another form here.
Relevant keywords
Related Forms
If you believe that this page should be taken down, please follow our DMCA take down process
here
.
This form may include fields for payment information. Data entered in these fields is not covered by PCI DSS compliance.