Get the free SEQR Short Environmental Assessment Form - Nassau County
Show details
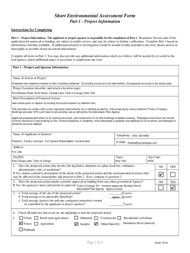
Short Environmental Assessment Form Part 1 Project Information Instructions for Completing Part 1 Project Information. The applicant or project sponsor is responsible for the completion of Part 1.
We are not affiliated with any brand or entity on this form
Get, Create, Make and Sign seqr short environmental assessment
Edit your seqr short environmental assessment form online
Type text, complete fillable fields, insert images, highlight or blackout data for discretion, add comments, and more.
Add your legally-binding signature
Draw or type your signature, upload a signature image, or capture it with your digital camera.
Share your form instantly
Email, fax, or share your seqr short environmental assessment form via URL. You can also download, print, or export forms to your preferred cloud storage service.
Editing seqr short environmental assessment online
To use our professional PDF editor, follow these steps:
1
Set up an account. If you are a new user, click Start Free Trial and establish a profile.
2
Prepare a file. Use the Add New button to start a new project. Then, using your device, upload your file to the system by importing it from internal mail, the cloud, or adding its URL.
3
Edit seqr short environmental assessment. Replace text, adding objects, rearranging pages, and more. Then select the Documents tab to combine, divide, lock or unlock the file.
4
Get your file. Select the name of your file in the docs list and choose your preferred exporting method. You can download it as a PDF, save it in another format, send it by email, or transfer it to the cloud.
Dealing with documents is always simple with pdfFiller.
Uncompromising security for your PDF editing and eSignature needs
Your private information is safe with pdfFiller. We employ end-to-end encryption, secure cloud storage, and advanced access control to protect your documents and maintain regulatory compliance.
How to fill out seqr short environmental assessment
How to fill out seqr short environmental assessment
01
Obtain the SEQRA Short Environmental Assessment Form from the relevant environmental agency or department.
02
Fill out the form completely and accurately, providing detailed information about the proposed project and its potential environmental impacts.
03
Attach any supporting documentation or studies that may be required, such as maps, surveys, or impact assessments.
04
Submit the completed form and all relevant materials to the appropriate environmental agency or department for review.
Who needs seqr short environmental assessment?
01
Any individual or entity planning a project that may have potential environmental impacts needs to fill out a SEQRA Short Environmental Assessment.
Fill
form
: Try Risk Free
For pdfFiller’s FAQs
Below is a list of the most common customer questions. If you can’t find an answer to your question, please don’t hesitate to reach out to us.
How do I execute seqr short environmental assessment online?
Easy online seqr short environmental assessment completion using pdfFiller. Also, it allows you to legally eSign your form and change original PDF material. Create a free account and manage documents online.
How do I make changes in seqr short environmental assessment?
With pdfFiller, you may not only alter the content but also rearrange the pages. Upload your seqr short environmental assessment and modify it with a few clicks. The editor lets you add photos, sticky notes, text boxes, and more to PDFs.
How can I edit seqr short environmental assessment on a smartphone?
You can easily do so with pdfFiller's apps for iOS and Android devices, which can be found at the Apple Store and the Google Play Store, respectively. You can use them to fill out PDFs. We have a website where you can get the app, but you can also get it there. When you install the app, log in, and start editing seqr short environmental assessment, you can start right away.
What is seqr short environmental assessment?
SEQR Short Environmental Assessment Form is a simplified environmental review form used in New York State to determine if a project may have a significant impact on the environment.
Who is required to file seqr short environmental assessment?
Developers, agencies, and municipalities in New York State are required to file the SEQR Short Environmental Assessment Form for projects that may have significant environmental impacts.
How to fill out seqr short environmental assessment?
The SEQR Short Environmental Assessment Form can be filled out by providing information on the project location, description, potential environmental impacts, and mitigation measures.
What is the purpose of seqr short environmental assessment?
The purpose of the SEQR Short Environmental Assessment Form is to assess the potential environmental impacts of a project and identify ways to minimize or avoid those impacts.
What information must be reported on seqr short environmental assessment?
The SEQR Short Environmental Assessment Form requires information on the project description, location, potential impacts on land, air, and water, and proposed mitigation measures.
Fill out your seqr short environmental assessment online with pdfFiller!
pdfFiller is an end-to-end solution for managing, creating, and editing documents and forms in the cloud. Save time and hassle by preparing your tax forms online.
Seqr Short Environmental Assessment is not the form you're looking for?Search for another form here.
Relevant keywords
Related Forms
If you believe that this page should be taken down, please follow our DMCA take down process
here
.
This form may include fields for payment information. Data entered in these fields is not covered by PCI DSS compliance.