Get the free Vacancy Rebate Application Form - City Of Sarnia - Fill and Sign ...
Show details
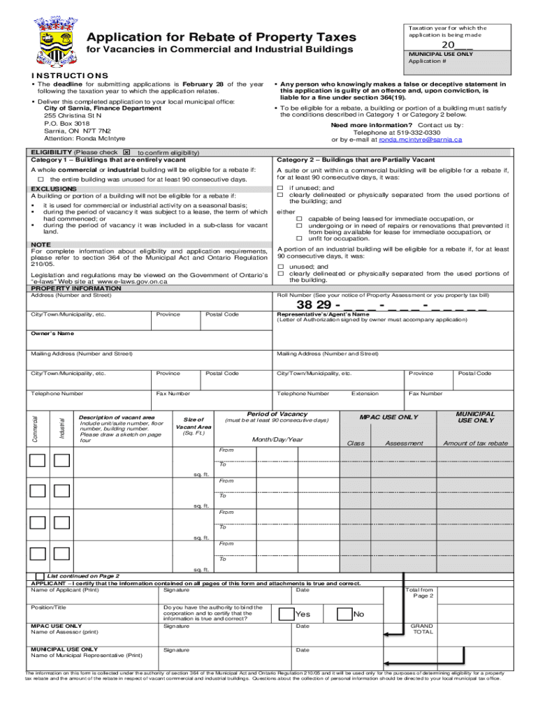
THE CORPORATION OF THE CITY OF NARNIA Finance Department 255 Christina Street N. PO Box 3018 Narnia ON Canada N7T 7N2 519 3320330 519 3321644 (fax) 519 3322664 (TTY) ronda.mcintyre@sarnia.ca www.sarnia.caWhen
We are not affiliated with any brand or entity on this form
Get, Create, Make and Sign vacancy rebate application form
Edit your vacancy rebate application form form online
Type text, complete fillable fields, insert images, highlight or blackout data for discretion, add comments, and more.
Add your legally-binding signature
Draw or type your signature, upload a signature image, or capture it with your digital camera.
Share your form instantly
Email, fax, or share your vacancy rebate application form form via URL. You can also download, print, or export forms to your preferred cloud storage service.
Editing vacancy rebate application form online
Here are the steps you need to follow to get started with our professional PDF editor:
1
Log in to your account. Start Free Trial and register a profile if you don't have one yet.
2
Prepare a file. Use the Add New button to start a new project. Then, using your device, upload your file to the system by importing it from internal mail, the cloud, or adding its URL.
3
Edit vacancy rebate application form. Text may be added and replaced, new objects can be included, pages can be rearranged, watermarks and page numbers can be added, and so on. When you're done editing, click Done and then go to the Documents tab to combine, divide, lock, or unlock the file.
4
Save your file. Select it in the list of your records. Then, move the cursor to the right toolbar and choose one of the available exporting methods: save it in multiple formats, download it as a PDF, send it by email, or store it in the cloud.
Dealing with documents is always simple with pdfFiller.
Uncompromising security for your PDF editing and eSignature needs
Your private information is safe with pdfFiller. We employ end-to-end encryption, secure cloud storage, and advanced access control to protect your documents and maintain regulatory compliance.
How to fill out vacancy rebate application form
How to fill out vacancy rebate application form
01
Obtain a copy of the vacancy rebate application form from the relevant local government office.
02
Fill out the property details section with information such as the address, property identification number, and owner details.
03
Provide the relevant vacancy period dates and details, including the date the property became vacant and the date it was reoccupied.
04
Submit any additional supporting documents or evidence that may be required, such as lease agreements or utility bills.
05
Review the completed form for accuracy and completeness before submitting it to the local government office.
Who needs vacancy rebate application form?
01
Property owners who have vacant commercial or industrial properties may need to fill out a vacancy rebate application form in order to apply for a rebate on property taxes paid during periods of vacancy.
Fill
form
: Try Risk Free
For pdfFiller’s FAQs
Below is a list of the most common customer questions. If you can’t find an answer to your question, please don’t hesitate to reach out to us.
How can I send vacancy rebate application form to be eSigned by others?
Once you are ready to share your vacancy rebate application form, you can easily send it to others and get the eSigned document back just as quickly. Share your PDF by email, fax, text message, or USPS mail, or notarize it online. You can do all of this without ever leaving your account.
How do I complete vacancy rebate application form online?
Completing and signing vacancy rebate application form online is easy with pdfFiller. It enables you to edit original PDF content, highlight, blackout, erase and type text anywhere on a page, legally eSign your form, and much more. Create your free account and manage professional documents on the web.
How do I complete vacancy rebate application form on an iOS device?
Install the pdfFiller iOS app. Log in or create an account to access the solution's editing features. Open your vacancy rebate application form by uploading it from your device or online storage. After filling in all relevant fields and eSigning if required, you may save or distribute the document.
What is vacancy rebate application form?
The vacancy rebate application form is a form used to apply for a property tax rebate on vacant commercial or industrial properties.
Who is required to file vacancy rebate application form?
Property owners of vacant commercial or industrial properties are required to file the vacancy rebate application form.
How to fill out vacancy rebate application form?
The vacancy rebate application form can be filled out by providing property details, dates of vacancy, and any required supporting documentation.
What is the purpose of vacancy rebate application form?
The purpose of the vacancy rebate application form is to claim a property tax rebate for vacant commercial or industrial properties.
What information must be reported on vacancy rebate application form?
Information such as property details, dates of vacancy, and supporting documentation must be reported on the vacancy rebate application form.
Fill out your vacancy rebate application form online with pdfFiller!
pdfFiller is an end-to-end solution for managing, creating, and editing documents and forms in the cloud. Save time and hassle by preparing your tax forms online.
Vacancy Rebate Application Form is not the form you're looking for?Search for another form here.
Relevant keywords
Related Forms
If you believe that this page should be taken down, please follow our DMCA take down process
here
.
This form may include fields for payment information. Data entered in these fields is not covered by PCI DSS compliance.