
Get the free Building PermitCity of Milwaukie Oregon Official Website
Show details
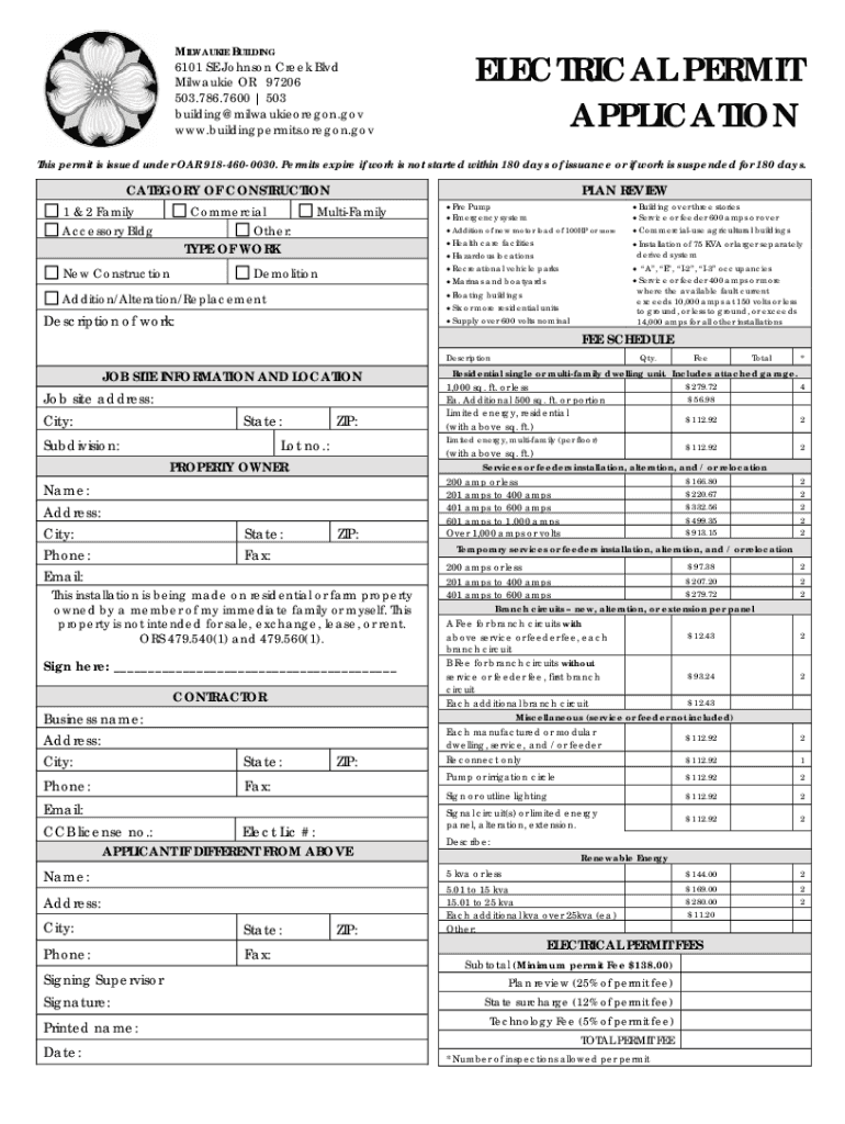
MILWAUKEE BUILDING
6101 SE Johnson Creek Blvd
Milwaukee OR 97206
503.786.7600 | 503
building@milwaukieoregon.gov
www.buildingpermits.oregon.govELECTRICAL PERMIT
Applications permit is issued under
We are not affiliated with any brand or entity on this form
Get, Create, Make and Sign building permitcity of milwaukie

Edit your building permitcity of milwaukie form online
Type text, complete fillable fields, insert images, highlight or blackout data for discretion, add comments, and more.

Add your legally-binding signature
Draw or type your signature, upload a signature image, or capture it with your digital camera.

Share your form instantly
Email, fax, or share your building permitcity of milwaukie form via URL. You can also download, print, or export forms to your preferred cloud storage service.
Editing building permitcity of milwaukie online
To use the professional PDF editor, follow these steps:
1
Create an account. Begin by choosing Start Free Trial and, if you are a new user, establish a profile.
2
Prepare a file. Use the Add New button. Then upload your file to the system from your device, importing it from internal mail, the cloud, or by adding its URL.
3
Edit building permitcity of milwaukie. Add and replace text, insert new objects, rearrange pages, add watermarks and page numbers, and more. Click Done when you are finished editing and go to the Documents tab to merge, split, lock or unlock the file.
4
Save your file. Select it from your records list. Then, click the right toolbar and select one of the various exporting options: save in numerous formats, download as PDF, email, or cloud.
With pdfFiller, it's always easy to work with documents.
Uncompromising security for your PDF editing and eSignature needs
Your private information is safe with pdfFiller. We employ end-to-end encryption, secure cloud storage, and advanced access control to protect your documents and maintain regulatory compliance.
How to fill out building permitcity of milwaukie

How to fill out building permitcity of milwaukie
01
Download the building permit application form from the City of Milwaukie website.
02
Fill out all required sections of the application, including project details, property owner information, contractor information, and any necessary permits or approvals.
03
Attach any required documentation, such as site plans, construction drawings, or engineer's reports.
04
Submit the completed application and documentation to the City of Milwaukie Building Department along with the applicable fee.
05
Wait for the building department to review and approve your permit application before starting any construction work.
Who needs building permitcity of milwaukie?
01
Anyone who plans to construct, alter, repair, move, demolish, or change the occupancy of a building or structure in the City of Milwaukie needs to obtain a building permit.
Fill
form
: Try Risk Free
For pdfFiller’s FAQs
Below is a list of the most common customer questions. If you can’t find an answer to your question, please don’t hesitate to reach out to us.
How can I send building permitcity of milwaukie to be eSigned by others?
Once your building permitcity of milwaukie is ready, you can securely share it with recipients and collect eSignatures in a few clicks with pdfFiller. You can send a PDF by email, text message, fax, USPS mail, or notarize it online - right from your account. Create an account now and try it yourself.
How do I make changes in building permitcity of milwaukie?
The editing procedure is simple with pdfFiller. Open your building permitcity of milwaukie in the editor. You may also add photos, draw arrows and lines, insert sticky notes and text boxes, and more.
How do I complete building permitcity of milwaukie on an Android device?
Use the pdfFiller mobile app to complete your building permitcity of milwaukie on an Android device. The application makes it possible to perform all needed document management manipulations, like adding, editing, and removing text, signing, annotating, and more. All you need is your smartphone and an internet connection.
What is building permitcity of milwaukie?
Building permitcity of Milwaukie is a legal document issued by the city of Milwaukie that allows individuals or companies to start construction or renovation projects.
Who is required to file building permitcity of milwaukie?
Anyone planning to undertake construction or renovation work in Milwaukie is required to file a building permit.
How to fill out building permitcity of milwaukie?
To fill out a building permit in Milwaukie, applicants need to provide information about the project, such as the scope of work, building plans, and property details.
What is the purpose of building permitcity of milwaukie?
The purpose of the building permit in Milwaukie is to ensure that construction projects comply with local building codes and safety regulations.
What information must be reported on building permitcity of milwaukie?
The building permit application in Milwaukie typically requires information about the project, including the property address, type of work being done, and contractor details.
Fill out your building permitcity of milwaukie online with pdfFiller!
pdfFiller is an end-to-end solution for managing, creating, and editing documents and forms in the cloud. Save time and hassle by preparing your tax forms online.

Building Permitcity Of Milwaukie is not the form you're looking for?Search for another form here.
Relevant keywords
Related Forms
If you believe that this page should be taken down, please follow our DMCA take down process
here
.
This form may include fields for payment information. Data entered in these fields is not covered by PCI DSS compliance.