
Get the free Access to Public Records - Assessor - Tulare County - CA.gov
Show details
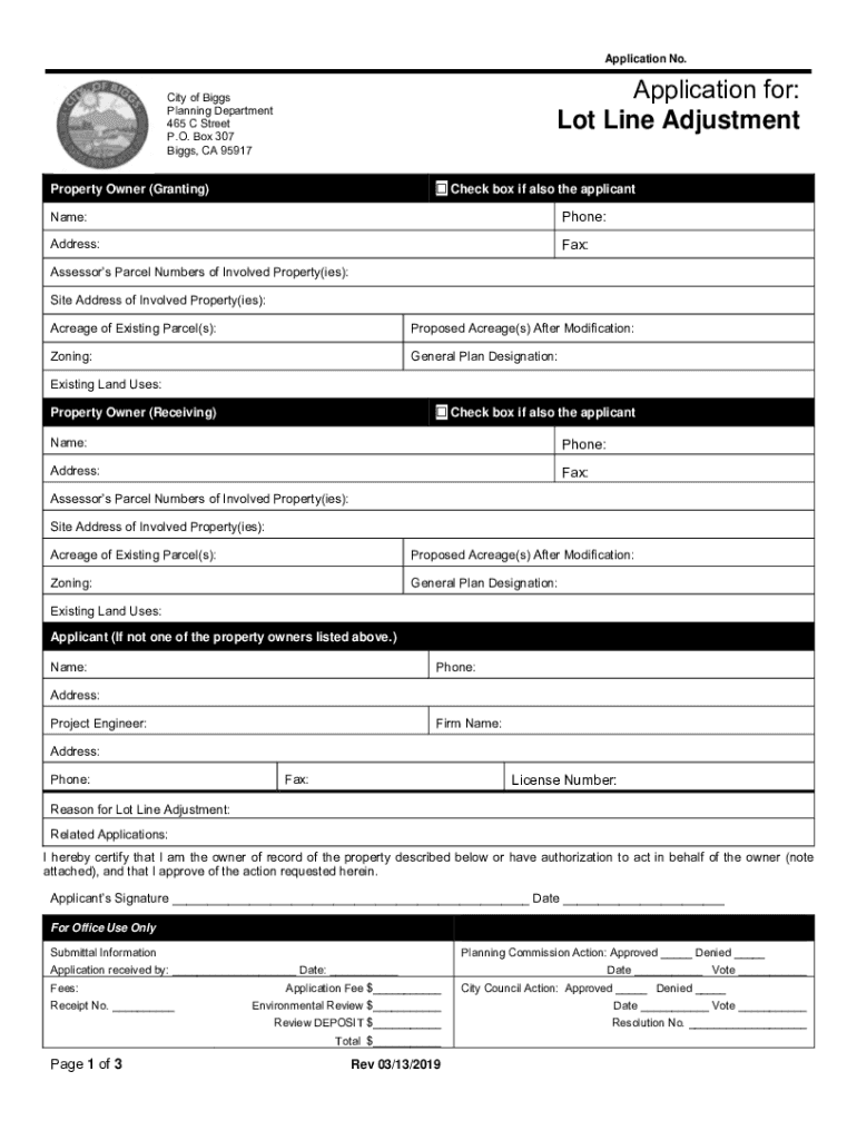
Application No. Application for: Lot Line AdjustmentCity of Biggs Planning Department 465 C Street P.O. Box 307 Biggs, CA 95917 Check box if also the applicantProperty Owner (Granting) Name:Phone:Address:Fax:Assessors
We are not affiliated with any brand or entity on this form
Get, Create, Make and Sign access to public records

Edit your access to public records form online
Type text, complete fillable fields, insert images, highlight or blackout data for discretion, add comments, and more.

Add your legally-binding signature
Draw or type your signature, upload a signature image, or capture it with your digital camera.

Share your form instantly
Email, fax, or share your access to public records form via URL. You can also download, print, or export forms to your preferred cloud storage service.
How to edit access to public records online
In order to make advantage of the professional PDF editor, follow these steps:
1
Sign into your account. If you don't have a profile yet, click Start Free Trial and sign up for one.
2
Upload a document. Select Add New on your Dashboard and transfer a file into the system in one of the following ways: by uploading it from your device or importing from the cloud, web, or internal mail. Then, click Start editing.
3
Edit access to public records. Rearrange and rotate pages, add new and changed texts, add new objects, and use other useful tools. When you're done, click Done. You can use the Documents tab to merge, split, lock, or unlock your files.
4
Get your file. Select your file from the documents list and pick your export method. You may save it as a PDF, email it, or upload it to the cloud.
With pdfFiller, it's always easy to work with documents. Try it out!
Uncompromising security for your PDF editing and eSignature needs
Your private information is safe with pdfFiller. We employ end-to-end encryption, secure cloud storage, and advanced access control to protect your documents and maintain regulatory compliance.
How to fill out access to public records

How to fill out access to public records
01
Identify the agency or organization that you need to request records from.
02
Determine the specific information you are looking for and provide as much detail as possible in your request.
03
Draft a formal written request for the records, including your name, contact information, and a detailed description of the records you are seeking.
04
Submit your request to the designated public records officer or department within the agency.
05
Wait for a response from the agency, including any fees associated with fulfilling the request.
06
Review the records provided and follow any procedures for appealing a denial or requesting additional information.
Who needs access to public records?
01
Journalists and media outlets seeking information for news stories.
02
Researchers and academics conducting studies or writing reports.
03
Government officials and employees for official business purposes.
04
Legal professionals preparing for court cases or conducting investigations.
05
Members of the public interested in transparency and accountability of government actions.
Fill
form
: Try Risk Free
For pdfFiller’s FAQs
Below is a list of the most common customer questions. If you can’t find an answer to your question, please don’t hesitate to reach out to us.
How do I edit access to public records in Chrome?
Get and add pdfFiller Google Chrome Extension to your browser to edit, fill out and eSign your access to public records, which you can open in the editor directly from a Google search page in just one click. Execute your fillable documents from any internet-connected device without leaving Chrome.
How do I edit access to public records straight from my smartphone?
You can easily do so with pdfFiller's apps for iOS and Android devices, which can be found at the Apple Store and the Google Play Store, respectively. You can use them to fill out PDFs. We have a website where you can get the app, but you can also get it there. When you install the app, log in, and start editing access to public records, you can start right away.
How do I edit access to public records on an Android device?
The pdfFiller app for Android allows you to edit PDF files like access to public records. Mobile document editing, signing, and sending. Install the app to ease document management anywhere.
What is access to public records?
Access to public records is the ability for citizens to obtain information held by government agencies.
Who is required to file access to public records?
Government agencies are required to file access to public records.
How to fill out access to public records?
Access to public records can typically be filled out online or by submitting a formal request to the relevant government agency.
What is the purpose of access to public records?
The purpose of access to public records is to promote transparency and accountability in government actions and decisions.
What information must be reported on access to public records?
Access to public records typically requires information such as the requester's name, contact information, and specific information being requested.
Fill out your access to public records online with pdfFiller!
pdfFiller is an end-to-end solution for managing, creating, and editing documents and forms in the cloud. Save time and hassle by preparing your tax forms online.

Access To Public Records is not the form you're looking for?Search for another form here.
Relevant keywords
Related Forms
If you believe that this page should be taken down, please follow our DMCA take down process
here
.
This form may include fields for payment information. Data entered in these fields is not covered by PCI DSS compliance.