Get the free Map and directions - Montgomery Planning
Show details
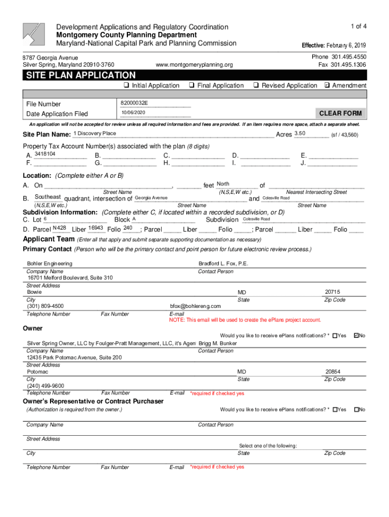
1 of 4Development Applications and Regulatory Coordination Montgomery County Planning Department MarylandNational Capital Park and Planning Commission 8787 Georgia Avenue Silver Spring, Maryland 209103760Effective:
We are not affiliated with any brand or entity on this form
Get, Create, Make and Sign map and directions
Edit your map and directions form online
Type text, complete fillable fields, insert images, highlight or blackout data for discretion, add comments, and more.
Add your legally-binding signature
Draw or type your signature, upload a signature image, or capture it with your digital camera.
Share your form instantly
Email, fax, or share your map and directions form via URL. You can also download, print, or export forms to your preferred cloud storage service.
Editing map and directions online
To use our professional PDF editor, follow these steps:
1
Check your account. If you don't have a profile yet, click Start Free Trial and sign up for one.
2
Prepare a file. Use the Add New button to start a new project. Then, using your device, upload your file to the system by importing it from internal mail, the cloud, or adding its URL.
3
Edit map and directions. Rearrange and rotate pages, add new and changed texts, add new objects, and use other useful tools. When you're done, click Done. You can use the Documents tab to merge, split, lock, or unlock your files.
4
Get your file. Select your file from the documents list and pick your export method. You may save it as a PDF, email it, or upload it to the cloud.
It's easier to work with documents with pdfFiller than you can have believed. You can sign up for an account to see for yourself.
Uncompromising security for your PDF editing and eSignature needs
Your private information is safe with pdfFiller. We employ end-to-end encryption, secure cloud storage, and advanced access control to protect your documents and maintain regulatory compliance.
How to fill out map and directions
How to fill out map and directions
01
Start by determining the starting point and destination of your journey.
02
Use a reliable map service or application to get an accurate map and directions.
03
Enter the starting point and destination addresses into the map service.
04
Follow the provided directions, paying attention to landmarks and road signs along the way.
05
Make sure to update the directions if there are any road closures or detours that may affect your route.
06
Arrive at your destination safely and enjoy your journey!
Who needs map and directions?
01
People who are traveling to a new location for the first time.
02
Tourists exploring a new city or country.
03
Delivery drivers who need to navigate unfamiliar areas.
04
Hikers or outdoor enthusiasts looking for specific trails or landmarks.
05
Anyone who wants to ensure they arrive at their destination efficiently and without getting lost.
Fill
form
: Try Risk Free
For pdfFiller’s FAQs
Below is a list of the most common customer questions. If you can’t find an answer to your question, please don’t hesitate to reach out to us.
How can I get map and directions?
The premium subscription for pdfFiller provides you with access to an extensive library of fillable forms (over 25M fillable templates) that you can download, fill out, print, and sign. You won’t have any trouble finding state-specific map and directions and other forms in the library. Find the template you need and customize it using advanced editing functionalities.
Can I sign the map and directions electronically in Chrome?
Yes. By adding the solution to your Chrome browser, you can use pdfFiller to eSign documents and enjoy all of the features of the PDF editor in one place. Use the extension to create a legally-binding eSignature by drawing it, typing it, or uploading a picture of your handwritten signature. Whatever you choose, you will be able to eSign your map and directions in seconds.
How do I edit map and directions straight from my smartphone?
You can easily do so with pdfFiller's apps for iOS and Android devices, which can be found at the Apple Store and the Google Play Store, respectively. You can use them to fill out PDFs. We have a website where you can get the app, but you can also get it there. When you install the app, log in, and start editing map and directions, you can start right away.
What is map and directions?
Map and directions provide information on how to reach a specific location.
Who is required to file map and directions?
Individuals or organizations who need to provide location information to others are required to file map and directions.
How to fill out map and directions?
Map and directions can be filled out by providing detailed instructions, landmarks, and address information.
What is the purpose of map and directions?
The purpose of map and directions is to help others navigate and reach a specific location easily and accurately.
What information must be reported on map and directions?
Map and directions must include detailed instructions on how to reach a specific location, landmarks, and address information.
Fill out your map and directions online with pdfFiller!
pdfFiller is an end-to-end solution for managing, creating, and editing documents and forms in the cloud. Save time and hassle by preparing your tax forms online.
Map And Directions is not the form you're looking for?Search for another form here.
Relevant keywords
Related Forms
If you believe that this page should be taken down, please follow our DMCA take down process
here
.
This form may include fields for payment information. Data entered in these fields is not covered by PCI DSS compliance.