
Get the free Weber County Board of Equalization - Appeal Application
Show details
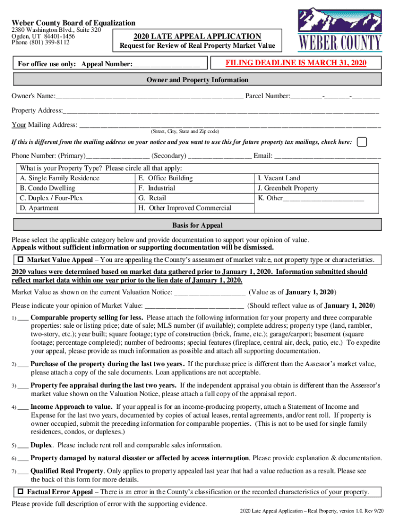
Weber County Board of Equalization 2380 Washington Blvd., Suite 320 Ogden, UT 844011456 Phone (801) 39981122020 LATE APPEAL APPLICATION Request for Review of Real Property Market Valuer office use
We are not affiliated with any brand or entity on this form
Get, Create, Make and Sign weber county board of

Edit your weber county board of form online
Type text, complete fillable fields, insert images, highlight or blackout data for discretion, add comments, and more.

Add your legally-binding signature
Draw or type your signature, upload a signature image, or capture it with your digital camera.

Share your form instantly
Email, fax, or share your weber county board of form via URL. You can also download, print, or export forms to your preferred cloud storage service.
Editing weber county board of online
Here are the steps you need to follow to get started with our professional PDF editor:
1
Set up an account. If you are a new user, click Start Free Trial and establish a profile.
2
Simply add a document. Select Add New from your Dashboard and import a file into the system by uploading it from your device or importing it via the cloud, online, or internal mail. Then click Begin editing.
3
Edit weber county board of. Replace text, adding objects, rearranging pages, and more. Then select the Documents tab to combine, divide, lock or unlock the file.
4
Get your file. Select your file from the documents list and pick your export method. You may save it as a PDF, email it, or upload it to the cloud.
Uncompromising security for your PDF editing and eSignature needs
Your private information is safe with pdfFiller. We employ end-to-end encryption, secure cloud storage, and advanced access control to protect your documents and maintain regulatory compliance.
How to fill out weber county board of

How to fill out weber county board of
01
Go to the official Weber County Board of website
02
Locate the section for filling out board applications
03
Click on the application form
04
Fill in all required information accurately
05
Review the completed form for any errors or missing information
06
Submit the form as per the specified instructions
Who needs weber county board of?
01
Individuals interested in serving on the Weber County Board of
02
Residents of Weber County looking to get involved in local government
03
Community members passionate about making a difference in their area
Fill
form
: Try Risk Free
For pdfFiller’s FAQs
Below is a list of the most common customer questions. If you can’t find an answer to your question, please don’t hesitate to reach out to us.
How can I send weber county board of to be eSigned by others?
Once you are ready to share your weber county board of, you can easily send it to others and get the eSigned document back just as quickly. Share your PDF by email, fax, text message, or USPS mail, or notarize it online. You can do all of this without ever leaving your account.
How can I get weber county board of?
The premium version of pdfFiller gives you access to a huge library of fillable forms (more than 25 million fillable templates). You can download, fill out, print, and sign them all. State-specific weber county board of and other forms will be easy to find in the library. Find the template you need and use advanced editing tools to make it your own.
Can I create an electronic signature for signing my weber county board of in Gmail?
You can easily create your eSignature with pdfFiller and then eSign your weber county board of directly from your inbox with the help of pdfFiller’s add-on for Gmail. Please note that you must register for an account in order to save your signatures and signed documents.
What is weber county board of?
The Weber County Board of Commissioners is the governing body of Weber County in the state of Utah.
Who is required to file weber county board of?
Candidates running for public office in Weber County are required to file the Weber County Board of Commissioners.
How to fill out weber county board of?
To fill out the Weber County Board of Commissioners, candidates must complete the necessary forms and submit them to the appropriate office.
What is the purpose of weber county board of?
The purpose of the Weber County Board of Commissioners is to ensure transparency and accountability in local government.
What information must be reported on weber county board of?
Candidates must report information about their campaign contributions, expenditures, and other financial information on the Weber County Board of Commissioners.
Fill out your weber county board of online with pdfFiller!
pdfFiller is an end-to-end solution for managing, creating, and editing documents and forms in the cloud. Save time and hassle by preparing your tax forms online.

Weber County Board Of is not the form you're looking for?Search for another form here.
Relevant keywords
Related Forms
If you believe that this page should be taken down, please follow our DMCA take down process
here
.
This form may include fields for payment information. Data entered in these fields is not covered by PCI DSS compliance.