Form preview

Get the free P-demo - DT-27 - 207-209 S Marion - 92-00568 - DEMO

Get Form
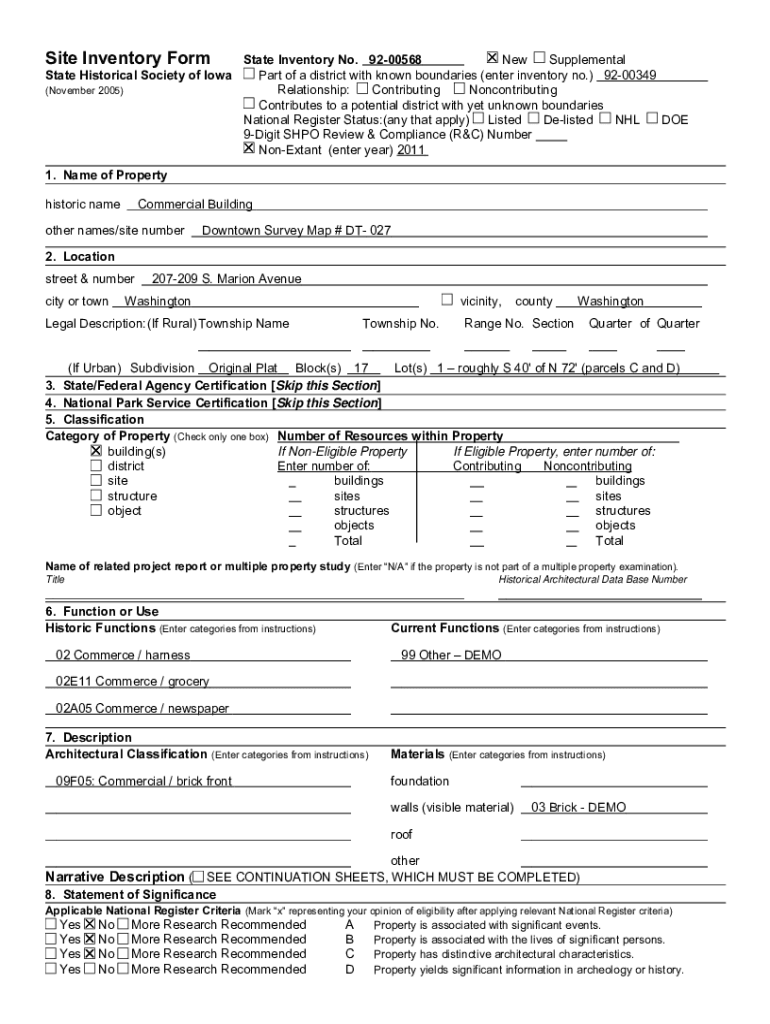
Site Inventory Form State Historical Society of Iowa (November 2005)State Inventory No. 9200568 New Supplemental Part of a district with known boundaries (enter inventory no.) 9200349 Relationship: Contributing Noncontributing Contributes
We are not affiliated with any brand or entity on this form

Get, Create, Make and Sign p-demo - dt-27

Edit
Edit your p-demo - dt-27 form online
Type text, complete fillable fields, insert images, highlight or blackout data for discretion, add comments, and more.
Add
Add your legally-binding signature
Draw or type your signature, upload a signature image, or capture it with your digital camera.
Share
Share your form instantly
Email, fax, or share your p-demo - dt-27 form via URL. You can also download, print, or export forms to your preferred cloud storage service.

How to edit p-demo - dt-27 online

9.5
Ease of Setup
pdfFiller User Ratings on G2
9.0
Ease of Use
pdfFiller User Ratings on G2
To use the professional PDF editor, follow these steps:
1
Register the account. Begin by clicking Start Free Trial and create a profile if you are a new user.
2
Prepare a file. Use the Add New button to start a new project. Then, using your device, upload your file to the system by importing it from internal mail, the cloud, or adding its URL.
3
Edit p-demo - dt-27. Replace text, adding objects, rearranging pages, and more. Then select the Documents tab to combine, divide, lock or unlock the file.
4
Save your file. Select it from your records list. Then, click the right toolbar and select one of the various exporting options: save in numerous formats, download as PDF, email, or cloud.
pdfFiller makes dealing with documents a breeze. Create an account to find out!

Uncompromising security for your PDF editing and eSignature needs

Your private information is safe with pdfFiller. We employ end-to-end encryption, secure cloud storage, and advanced access control to protect your documents and maintain regulatory compliance.
GDPR
AICPA SOC 2
PCI
HIPAA
CCPA
FDA

How to fill out p-demo - dt-27

Illustration

How to fill out p-demo - dt-27

01
Obtain the p-demo form dt-27 from the relevant authority or website.
02
Fill out your personal information such as name, address, contact details, etc.
03
Provide any required details or information related to the purpose of the form.
04
Review the form for accuracy and completeness before submitting.
05
Submit the filled out p-demo form dt-27 to the designated office or authority.

Who needs p-demo - dt-27?

01
Individuals who are required to provide demographic information for a specific purpose such as government records, surveys, or research studies.
Fill form : Try Risk Free
Users Most Likely To Recommend - Summer 2025
Grid Leader in Small-Business - Summer 2025
High Performer - Summer 2025
Regional Leader - Summer 2025
Easiest To Do Business With - Summer 2025
Best Meets Requirements- Summer 2025
Rate the form
4.9
Satisfied
20 Votes

For pdfFiller’s FAQs

Below is a list of the most common customer questions. If you can’t find an answer to your question, please don’t hesitate to reach out to us.

Simplify your document workflows and create fillable forms right in Google Drive by integrating pdfFiller with Google Docs. The integration will allow you to create, modify, and eSign documents, including p-demo - dt-27, without leaving Google Drive. Add pdfFiller’s functionalities to Google Drive and manage your paperwork more efficiently on any internet-connected device.
pdfFiller makes it easy to finish and sign p-demo - dt-27 online. It lets you make changes to original PDF content, highlight, black out, erase, and write text anywhere on a page, legally eSign your form, and more, all from one place. Create a free account and use the web to keep track of professional documents.
Create, modify, and share p-demo - dt-27 using the pdfFiller iOS app. Easy to install from the Apple Store. You may sign up for a free trial and then purchase a membership.
p-demo - dt-27 is a tax form used for reporting information on certain financial transactions.
Entities and individuals engaged in the specified financial transactions are required to file p-demo - dt-27.
p-demo - dt-27 must be filled out with accurate information regarding the financial transactions, following the instructions provided in the form.
The purpose of p-demo - dt-27 is to report relevant financial information to the tax authorities.
Information such as transaction details, parties involved, and amounts must be reported on p-demo - dt-27.
Fill out your p-demo - dt-27 online with pdfFiller!

pdfFiller is an end-to-end solution for managing, creating, and editing documents and forms in the cloud. Save time and hassle by preparing your tax forms online.

Get started now
Form preview
If you believe that this page should be taken down, please follow our DMCA take down process here .
This form may include fields for payment information. Data entered in these fields is not covered by PCI DSS compliance.