
Get the free Enrollment Form - City of Saint Albans
Show details
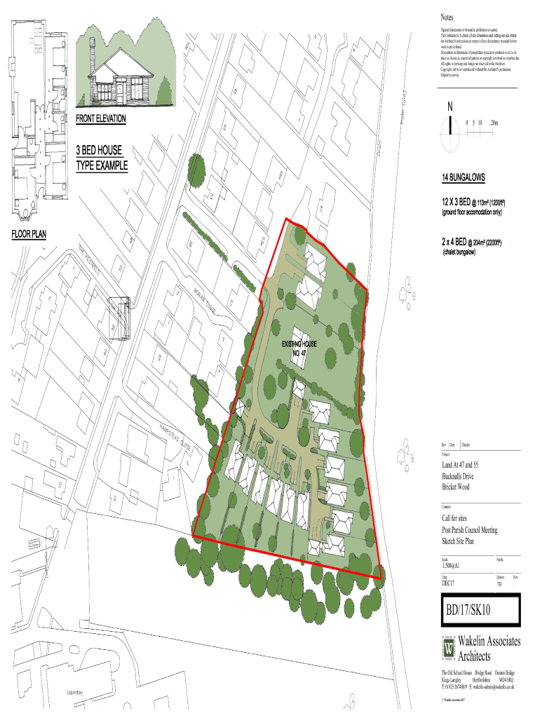
SS12 SS12 SS12 SS12SS13HELAA Reference (Internal use only)|25 January to 5pm 8 March 2021 Call for Sites 2021 Site Identification Form St Albany City and District Council is in the process of preparing
We are not affiliated with any brand or entity on this form
Get, Create, Make and Sign enrollment form - city

Edit your enrollment form - city form online
Type text, complete fillable fields, insert images, highlight or blackout data for discretion, add comments, and more.

Add your legally-binding signature
Draw or type your signature, upload a signature image, or capture it with your digital camera.

Share your form instantly
Email, fax, or share your enrollment form - city form via URL. You can also download, print, or export forms to your preferred cloud storage service.
How to edit enrollment form - city online
To use the professional PDF editor, follow these steps:
1
Log in to your account. Start Free Trial and sign up a profile if you don't have one yet.
2
Upload a document. Select Add New on your Dashboard and transfer a file into the system in one of the following ways: by uploading it from your device or importing from the cloud, web, or internal mail. Then, click Start editing.
3
Edit enrollment form - city. Rearrange and rotate pages, add new and changed texts, add new objects, and use other useful tools. When you're done, click Done. You can use the Documents tab to merge, split, lock, or unlock your files.
4
Save your file. Select it in the list of your records. Then, move the cursor to the right toolbar and choose one of the available exporting methods: save it in multiple formats, download it as a PDF, send it by email, or store it in the cloud.
It's easier to work with documents with pdfFiller than you can have ever thought. Sign up for a free account to view.
Uncompromising security for your PDF editing and eSignature needs
Your private information is safe with pdfFiller. We employ end-to-end encryption, secure cloud storage, and advanced access control to protect your documents and maintain regulatory compliance.
How to fill out enrollment form - city

How to fill out enrollment form - city
01
Start by entering your personal information such as name, address, date of birth, etc.
02
Specify the name of the city where you reside in the designated field.
03
Double-check all the information entered to ensure accuracy before submitting the form.
Who needs enrollment form - city?
01
Residents of a particular city who wish to enroll in a program or service offered within that city.
Fill
form
: Try Risk Free
For pdfFiller’s FAQs
Below is a list of the most common customer questions. If you can’t find an answer to your question, please don’t hesitate to reach out to us.
Can I create an electronic signature for the enrollment form - city in Chrome?
Yes. By adding the solution to your Chrome browser, you may use pdfFiller to eSign documents while also enjoying all of the PDF editor's capabilities in one spot. Create a legally enforceable eSignature by sketching, typing, or uploading a photo of your handwritten signature using the extension. Whatever option you select, you'll be able to eSign your enrollment form - city in seconds.
Can I edit enrollment form - city on an iOS device?
Use the pdfFiller mobile app to create, edit, and share enrollment form - city from your iOS device. Install it from the Apple Store in seconds. You can benefit from a free trial and choose a subscription that suits your needs.
How do I fill out enrollment form - city on an Android device?
Complete your enrollment form - city and other papers on your Android device by using the pdfFiller mobile app. The program includes all of the necessary document management tools, such as editing content, eSigning, annotating, sharing files, and so on. You will be able to view your papers at any time as long as you have an internet connection.
What is enrollment form - city?
Enrollment form - city is a form that residents of a city need to fill out to register for various city services or programs.
Who is required to file enrollment form - city?
All residents of the city are required to file the enrollment form.
How to fill out enrollment form - city?
Residents can fill out the enrollment form online or by visiting the city's administration office in person.
What is the purpose of enrollment form - city?
The purpose of the enrollment form is to gather information about the city's residents for planning and service delivery purposes.
What information must be reported on enrollment form - city?
The enrollment form typically requires information such as name, address, contact information, number of household members, and any special needs or preferences.
Fill out your enrollment form - city online with pdfFiller!
pdfFiller is an end-to-end solution for managing, creating, and editing documents and forms in the cloud. Save time and hassle by preparing your tax forms online.

Enrollment Form - City is not the form you're looking for?Search for another form here.
Relevant keywords
Related Forms
If you believe that this page should be taken down, please follow our DMCA take down process
here
.
This form may include fields for payment information. Data entered in these fields is not covered by PCI DSS compliance.