Get the free Notice of Intent (NO!) for Stormwater Discharges i:Phone: g
Show details
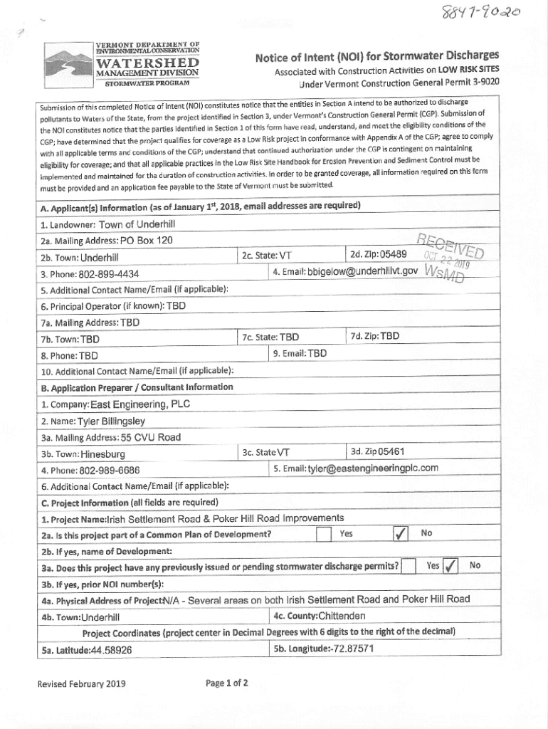
VERMONT DEPARTMENT OF BNyiRONMENrALOaNSERVATTONWATERSHEDNotice of Intent(NOI)for Stormwater Discharges Associated with Construction Activities on LOW RISK SITES Under Vermont Construction General
We are not affiliated with any brand or entity on this form
Get, Create, Make and Sign notice of intent no
Edit your notice of intent no form online
Type text, complete fillable fields, insert images, highlight or blackout data for discretion, add comments, and more.
Add your legally-binding signature
Draw or type your signature, upload a signature image, or capture it with your digital camera.
Share your form instantly
Email, fax, or share your notice of intent no form via URL. You can also download, print, or export forms to your preferred cloud storage service.
Editing notice of intent no online
Here are the steps you need to follow to get started with our professional PDF editor:
1
Create an account. Begin by choosing Start Free Trial and, if you are a new user, establish a profile.
2
Upload a document. Select Add New on your Dashboard and transfer a file into the system in one of the following ways: by uploading it from your device or importing from the cloud, web, or internal mail. Then, click Start editing.
3
Edit notice of intent no. Replace text, adding objects, rearranging pages, and more. Then select the Documents tab to combine, divide, lock or unlock the file.
4
Get your file. Select your file from the documents list and pick your export method. You may save it as a PDF, email it, or upload it to the cloud.
With pdfFiller, it's always easy to deal with documents.
Uncompromising security for your PDF editing and eSignature needs
Your private information is safe with pdfFiller. We employ end-to-end encryption, secure cloud storage, and advanced access control to protect your documents and maintain regulatory compliance.
How to fill out notice of intent no
How to fill out notice of intent no
01
Obtain a notice of intent form from the appropriate agency or organization.
02
Fill out the form completely and accurately with all required information.
03
Include any supporting documentation or attachments as necessary.
04
Review the completed form for any errors or missing information.
05
Submit the notice of intent form according to the instructions provided by the agency or organization.
Who needs notice of intent no?
01
Any individual or organization planning to engage in a specific activity that requires prior notice or approval may need to fill out a notice of intent form.
02
This could include businesses seeking to open a new location, individuals planning to host an event on public property, or organizations looking to conduct research in a protected area.
Fill
form
: Try Risk Free
For pdfFiller’s FAQs
Below is a list of the most common customer questions. If you can’t find an answer to your question, please don’t hesitate to reach out to us.
Can I create an electronic signature for the notice of intent no in Chrome?
Yes. You can use pdfFiller to sign documents and use all of the features of the PDF editor in one place if you add this solution to Chrome. In order to use the extension, you can draw or write an electronic signature. You can also upload a picture of your handwritten signature. There is no need to worry about how long it takes to sign your notice of intent no.
How can I edit notice of intent no on a smartphone?
The pdfFiller apps for iOS and Android smartphones are available in the Apple Store and Google Play Store. You may also get the program at https://edit-pdf-ios-android.pdffiller.com/. Open the web app, sign in, and start editing notice of intent no.
Can I edit notice of intent no on an iOS device?
Create, modify, and share notice of intent no using the pdfFiller iOS app. Easy to install from the Apple Store. You may sign up for a free trial and then purchase a membership.
What is notice of intent no?
Notice of intent is a formal declaration to notify an action or decision that will be taken.
Who is required to file notice of intent no?
Any individual or entity who needs to inform others about their intentions or plans should file a notice of intent.
How to fill out notice of intent no?
To fill out a notice of intent, you need to provide specific details about the action or decision you are planning to take.
What is the purpose of notice of intent no?
The purpose of a notice of intent is to inform relevant parties about an upcoming action or decision.
What information must be reported on notice of intent no?
Information such as the nature of the action or decision, timeline, and parties involved must be included in a notice of intent.
Fill out your notice of intent no online with pdfFiller!
pdfFiller is an end-to-end solution for managing, creating, and editing documents and forms in the cloud. Save time and hassle by preparing your tax forms online.
Notice Of Intent No is not the form you're looking for?Search for another form here.
Relevant keywords
Related Forms
If you believe that this page should be taken down, please follow our DMCA take down process
here
.
This form may include fields for payment information. Data entered in these fields is not covered by PCI DSS compliance.