Get the free SF1442, Solicitation, Offer - U.S. Embassy in South Sudan
Show details
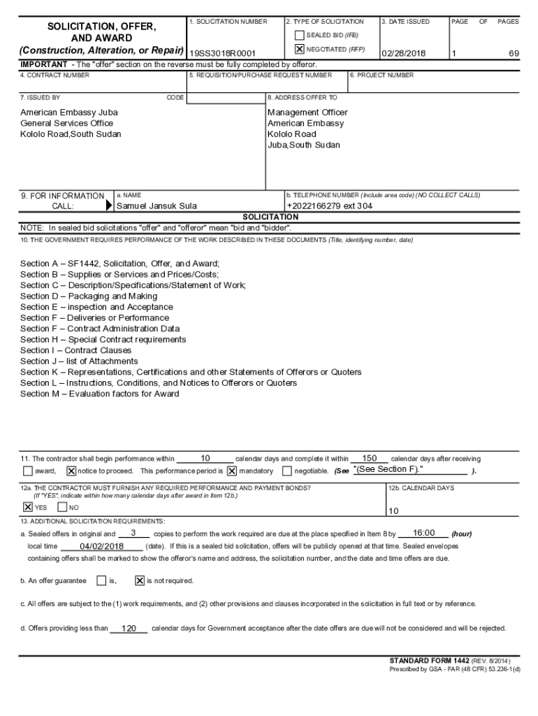
1. SOLICITATION NUMBER2. TYPE OF SOLICITATIONSOLICITATION, OFFER, AND AWARD (Construction, Alteration, or Repair) 19SS3018R0001NEGOTIATED (RFP)5. REQUISITION/PURCHASE REQUEST NUMBER7. ISSUED BYCODE02/28/20181OFPAGES696.
We are not affiliated with any brand or entity on this form
Get, Create, Make and Sign sf1442 solicitation offer
Edit your sf1442 solicitation offer form online
Type text, complete fillable fields, insert images, highlight or blackout data for discretion, add comments, and more.
Add your legally-binding signature
Draw or type your signature, upload a signature image, or capture it with your digital camera.
Share your form instantly
Email, fax, or share your sf1442 solicitation offer form via URL. You can also download, print, or export forms to your preferred cloud storage service.
Editing sf1442 solicitation offer online
To use our professional PDF editor, follow these steps:
1
Set up an account. If you are a new user, click Start Free Trial and establish a profile.
2
Upload a file. Select Add New on your Dashboard and upload a file from your device or import it from the cloud, online, or internal mail. Then click Edit.
3
Edit sf1442 solicitation offer. Rearrange and rotate pages, add new and changed texts, add new objects, and use other useful tools. When you're done, click Done. You can use the Documents tab to merge, split, lock, or unlock your files.
4
Get your file. Select your file from the documents list and pick your export method. You may save it as a PDF, email it, or upload it to the cloud.
pdfFiller makes working with documents easier than you could ever imagine. Register for an account and see for yourself!
Uncompromising security for your PDF editing and eSignature needs
Your private information is safe with pdfFiller. We employ end-to-end encryption, secure cloud storage, and advanced access control to protect your documents and maintain regulatory compliance.
How to fill out sf1442 solicitation offer
How to fill out sf1442 solicitation offer
01
Identify the relevant SF1442 solicitation offer form that needs to be filled out.
02
Carefully read all instructions provided on the form.
03
Fill in all required information accurately and completely.
04
Double-check the form for any errors or missing information before submitting.
Who needs sf1442 solicitation offer?
01
Government contractors who are responding to a specific solicitation for goods or services.
Fill
form
: Try Risk Free
For pdfFiller’s FAQs
Below is a list of the most common customer questions. If you can’t find an answer to your question, please don’t hesitate to reach out to us.
How do I modify my sf1442 solicitation offer in Gmail?
It's easy to use pdfFiller's Gmail add-on to make and edit your sf1442 solicitation offer and any other documents you get right in your email. You can also eSign them. Take a look at the Google Workspace Marketplace and get pdfFiller for Gmail. Get rid of the time-consuming steps and easily manage your documents and eSignatures with the help of an app.
How do I execute sf1442 solicitation offer online?
pdfFiller has made it easy to fill out and sign sf1442 solicitation offer. You can use the solution to change and move PDF content, add fields that can be filled in, and sign the document electronically. Start a free trial of pdfFiller, the best tool for editing and filling in documents.
How do I edit sf1442 solicitation offer on an Android device?
You can make any changes to PDF files, such as sf1442 solicitation offer, with the help of the pdfFiller mobile app for Android. Edit, sign, and send documents right from your mobile device. Install the app and streamline your document management wherever you are.
What is sf1442 solicitation offer?
SF1442 solicitation offer is a standard form used by the government to solicit offers for various types of contracts.
Who is required to file sf1442 solicitation offer?
Contractors who are interested in bidding on government contracts are required to file SF1442 solicitation offer.
How to fill out sf1442 solicitation offer?
SF1442 solicitation offer can be filled out electronically or manually, following the instructions provided on the form.
What is the purpose of sf1442 solicitation offer?
The purpose of SF1442 solicitation offer is to collect information from potential contractors who are interested in bidding on government contracts.
What information must be reported on sf1442 solicitation offer?
SF1442 solicitation offer typically requires information such as contractor details, pricing, delivery schedules, and terms and conditions.
Fill out your sf1442 solicitation offer online with pdfFiller!
pdfFiller is an end-to-end solution for managing, creating, and editing documents and forms in the cloud. Save time and hassle by preparing your tax forms online.
sf1442 Solicitation Offer is not the form you're looking for?Search for another form here.
Relevant keywords
Related Forms
If you believe that this page should be taken down, please follow our DMCA take down process
here
.
This form may include fields for payment information. Data entered in these fields is not covered by PCI DSS compliance.